前言:
谁说有限的面积是对一切的束缚,而事实是,每一平米的实际应用性远比想象中大的多了。面积小又能怎样呢,有两室,居住足够了,有客厅餐厅,有小阳台,有一厨一卫,卫生间阔一阔还有宽敞的淋浴房,这已经是多少人对一个小家的梦想了。
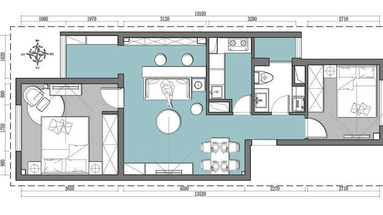
改造前问题:
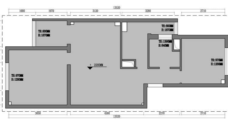
原始吊顶设计过低
客厅细长,导致空间浪费
厨房卫生间划分不合理,两个空间得不到有效利用
对于沙发的选择,业主更倾向纯北欧简单大气的纯色沙发,脏粉色沙发既美观又舒适,也客厅墙壁颜色相呼应。餐厅设置在客厅里面正对着厨房,餐桌餐椅都是选用宜家系列。
设计师用裸粉色墙面来代替电视背景墙,给整个客厅带来视觉上的冲击,变得更加活力四射。除了电视机,设计师还为业主安置了一个投影仪,晚上来看电影效果很棒!幕布尺寸一般不建议低于100寸,因为80寸的液晶电视已经很多了,小尺寸的幕布很难达到身临其境的效果。一般而言,30平米的居室,安装16:9的120寸-133寸幕布是可以的,而40平米往上的居室,一般就得133寸以上为佳。
原始户型没有办公的地方,设计师在客厅打造了一个长形吧台,供业主短时间办公。吧台后面是一组柜子,可以储物,也可用来遮挡裸露的管道。
卫生间整体采用浅灰色背景,而橘色浴柜让灰白的浴室豁然一亮。有人说室内装修最重要的就是卫生间装修,其实不无道理,假如你没有一个舒适敞亮的卫生间,你会不会觉得生活都无趣了。
相关案例推荐
新加坡恺天设计-北京
设计师相关作品

粤公网安备 44010602000156号