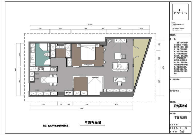
前言: 该户型的采光不均,除了一个落地阳台和客卧一个窗户,其他居室没有采光条件。此外这个户型为开放式布局,没有划分功能区域。所以在装修的过程中,需要设计师和业主确定好空间规划方案,确定好功能居室之后才能进行硬装施工。开放式空间有一个好处就是可以根据业主自己的需求进行设计,限制少很适合那些对于居室有很多想法的人士。
客厅是长方形布局,设计师将客厅分为两部分,前一部分是会客休闲区,以沙发为隔断后半部分空间规划为工作区。
客厅落地窗让室内采光丰富,办公空间设置在客厅是很好的选择。在寒冷的冬天坐在窗户旁都能看到窗外的雪景,一杯淡茶,静听飘雪,窗外的世界打扰不了我的小生活。办公空间收纳了很多书,整整齐齐的排放在书架上,拿取方便查找也很方便。落地窗玻璃的选择上要注意选用隔音效果好承载效果好的材质。
大面积的落地窗减少了客厅灯光照明需求。
厨房设为开放式,L型布局。中心区设有吧台作为就餐区。
岛台兼具就餐和收纳功能,业主有很多书,喜欢阅读对于阅读的环境没有很大要求,因此岛台也可充当一个阅读角。值得住户们注意的是,对于经常做饭的住户最后不要在厨房摆放书籍不利于书籍的保存,也有很大的安全隐患。
另一边用来收纳厨房小电器。
没有窗户的主卧;设计师将原有的开放式卧室改造成半开放式空间,采用钛合金推拉门来引入客厅光线。推拉门旁装有窗帘来遮蔽隐私。业主入住之后会在背景墙相框放结婚照。主卧对面的空间规划成休息兼办公的客卧。客卧采用榻榻米衣柜和书架一体的形式,这种形式的设计能创造更多的储物条件。
相关案例推荐
新加坡恺天设计-北京
设计师相关作品

粤公网安备 44010602000156号