前言:
此案例是简约美式风,贵气加大气而又不失自在与随意,造就了一种休闲式的浪漫。
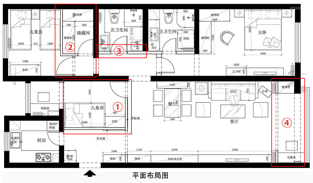
家中是业主夫妻和他们的龙凤胎宝宝一家四口居住,对储物有着明确的需求。并且,原始户型中给孩子准备的两个卧室大小不一,如何分配给龙凤胎是一个问题。
业主家有一对可爱的龙凤胎,但①②两个卧室一个大一个小,不好分配。设计师通过墙体改建将①空间扩大,在②卧室改造出一个衣帽间,缩小②卧室面积,使①②两个卧室面积基本一样大。因为目前龙凤胎的年纪比较小,还可以住在同一间卧室,在②中设置了两张儿童床,另一间卧室可暂时作为玩具房。
③移动了次卫生间门的位置,暖气移位后在原位置设计洗漱台和浴室柜,使空间更合理地利用。
④原始户型中没有阳台,只有一扇落地窗。业主有晾晒衣物的需求,设计师在此区域设计了一个假阳台,放置了新风机器,同时增加储物柜和电脑桌,一举多得。
▲本案的业主对储物要求很高,电视墙打造整体定制柜,电视柜与储物柜融为一体,使整个空间看起来更加融洽又不失美观。
▲在落地窗这个区域做了个假阳台,设计了栏杆满足晾晒衣物的需求,同时还可以摆放绿植。
▲客厅沙发背景墙采用美式常见的石膏线条,划分出客厅与餐厅的区域,添加不同的颜色风格,会营造出一种令人称羡的意景,让时尚、温馨、舒适变成家的一大亮点。
▲浴室柜是卫生间收纳的主力军,常用的洗涤用品、抹布、刷鞋用品、多买的卷纸都会堆放在浴室柜中。封闭式镜柜整洁又美观,常用来存储护肤用品、头发护理用品等。洗漱台采用了双盆设计,夫妻俩洗漱时互不干扰。
▲美式家居的卧室布置较为温馨,作为主人的私密空间,主要以功能性和实用舒适为考虑的重点。墙面采用石膏线造型搭配壁纸,使空间更富有层次感。
▲卧室设计了L型储物柜,满足业主夫妻日常衣物及被子床单等床上用品的储物需求。
相关案例推荐
JORYA玖雅
设计师相关作品

粤公网安备 44010602000156号