前言: 改善型住房的屋主,往往会有更多对于生活的真实体验,也寄托了更多的对于新生活的期盼。在这个案子中,我们选择了天然的材质和质朴的设计手法,去营造生活原本美好的样子。我们相信,虽然不断粉饰翻新的名贵与华丽,更容易成为时尚的标签,但令我们恒久眷恋和无限回味的,一定是心中最初的那一道风景。
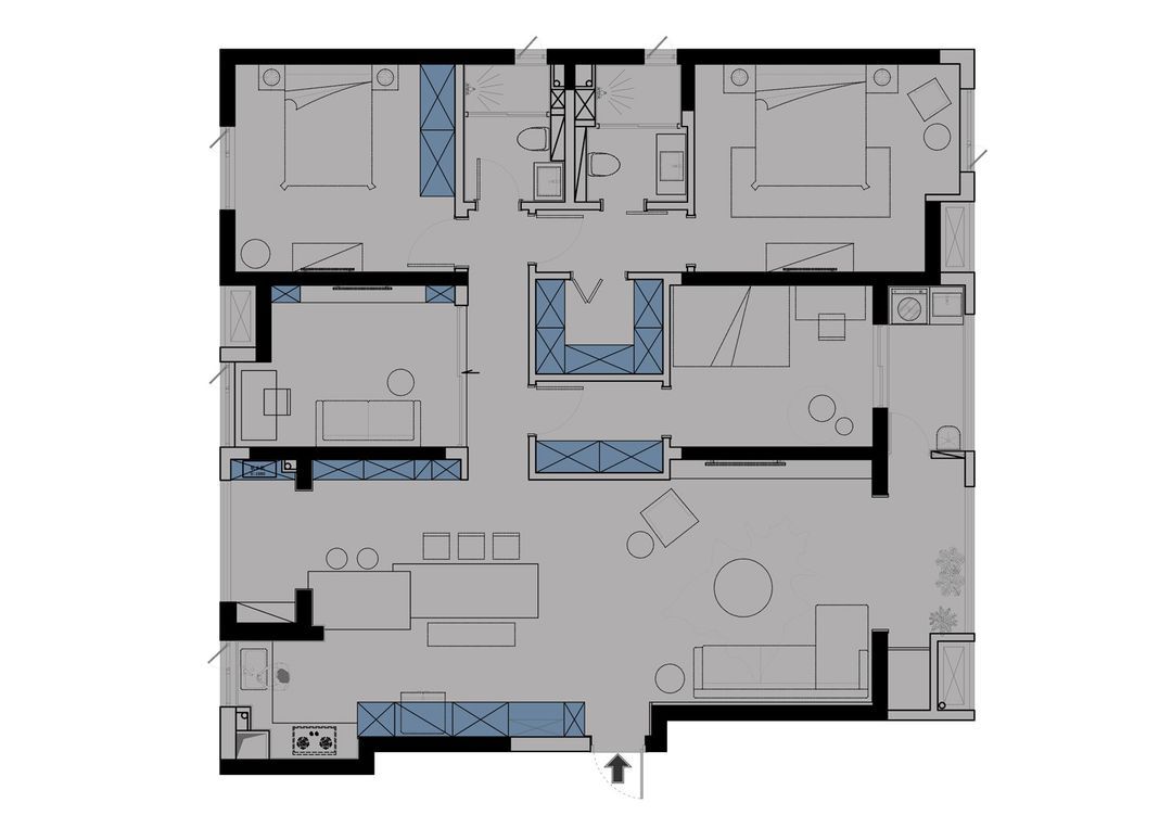
原始户型整体来说还是比较方正通透的,但是入户的一侧是储物间,阻碍了视野,使餐厅显得比较狭长。
户型宽敞通透,更需要好好地规划功能空间与生活动线,能让生活更方便,视觉也更舒适。
我们舍弃了入门处的储物间,做成了开放式厨房,视野更加开阔;
厨房处把原先的阳台容纳进来,让客餐厅和厨房形成了一个大通厅,空间更加通透,也极大地增强了空间的互动性;
主卧做了和卫生间、衣帽间一体的套房,使用更方便,同时也保证了私密性;
书房用了半开放式和地面抬高来做,整面的铁艺玻璃门,不锈钢的书架,精致干练。
粗犷的水泥肌理,质朴的木地板,文艺feel十足的文化砖......用质朴的材质和简单的配色,摒弃复杂的装饰品,于简洁中散发出低调而有内涵的文化质感。
水泥质感本真而简洁,却有着一种高贵的朴素,看似简单,却比金碧辉煌更有气韵独在。
精致的软装细节,让家能够一步一景,每一个角落自成一体,让人享受放松的悠闲时光。
厨房中岛与阳台墙体,餐桌连为一体,形成一个非常实用的互动空间。延展了操作台面,补充了厨房的收纳空间,同时也可以容纳多位亲朋好友聚餐和游戏。
孔雀绿的柜体大大增加了收纳空间,也为黑白灰基调的空间增添了勃勃生气。
你在身边吃水果做点心,我在这里工作和休闲,眼光的追逐,愉快地交谈,一个有互动感的空间,让爱无处不在。
卧室空间宽阔,没有进行多余的装饰,白与灰的搭配营造静谧空间,温润木质带来温馨与安宁。
原本的飘窗区域装扮成舒适的阅读角,绿植为空间带来生机与愉悦。
男主人有着一颗难得的童心,喜欢收集手办,喜欢游戏,喜欢天马行空的小天地。黑色皮质沙发沉稳帅气,蓝色墙面更为这个空间增添了科幻感,这是专属于你的不羁天地。
相关案例推荐
武汉诗享家设计
设计师相关作品

粤公网安备 44010602000156号