前言:
塑造心中的静谧的丛林 成为抵御都市节奏中 那可以暂缓的力量.
充满了自己各种想法的女业主是位英语老师,工作之余,有着充足的假期可以安排自己想去的地方。身为软件工程师的男业主话不多,只是提出给他留个书房,要能放下很多书。他们多才多艺的女儿平时会练习钢琴。
方案上,设计师把地下室部分天井旁作为品茶区域,增加了一块写字区域。一楼部分重新梳理了厨餐区原有的动线关系,也应业主需求增设了入户玄关。二楼卧室分别做了舒适的套房的处理,也满足了业主对于书房的功能的要求。
户型图
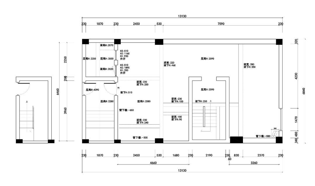
地下室原始结构图
地下室方案设计图
一层原始结构图
一层方案设计图
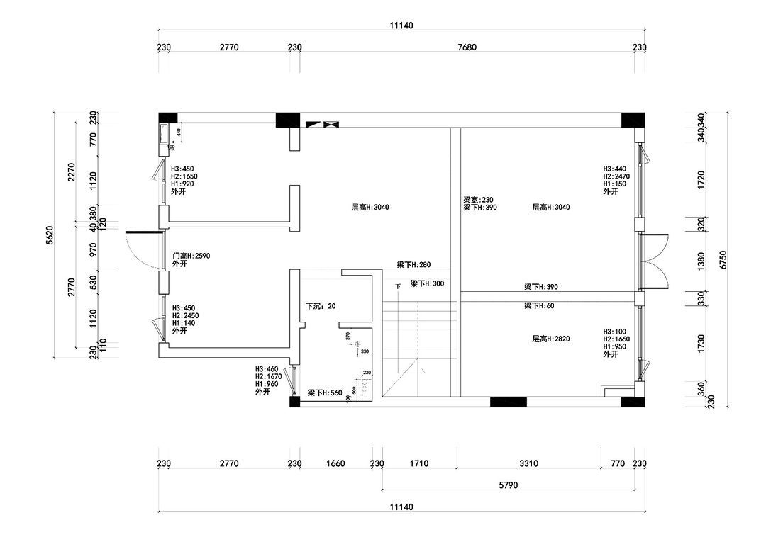
二层原始结构图
二层方案设计图
客厅
”巧克力“一个听见钢琴声就特别激动的小家伙
相关案例推荐
网友评论
上北设计
设计师相关作品

粤公网安备 44010602000156号