前言:
									业主期待
1门口进来有起码可以并排坐2个人的换鞋位置,避免高峰期挤在一起
2楼起居室作为他的书房,3楼也要求有个书桌作为亲子活动区
3主卫要有淋浴和浴缸,更衣室要求有化妆台
4一楼安排老人房和客房,2楼安排主卧和小孩房,阁楼安排沙发床,偶尔有客人可以当临时客房
5美式风格,要求古典素雅
6客厅太小沙发不好摆,要求视觉开阔
7不在客厅阳台晒衣服避免影响视觉效果,晒衣阳台安排在餐厅阳台,要有独立的洗衣房
8阁楼要有足够的储物空间,买个活动的电视架有视听室功能,有书桌,安排出一间客房
									
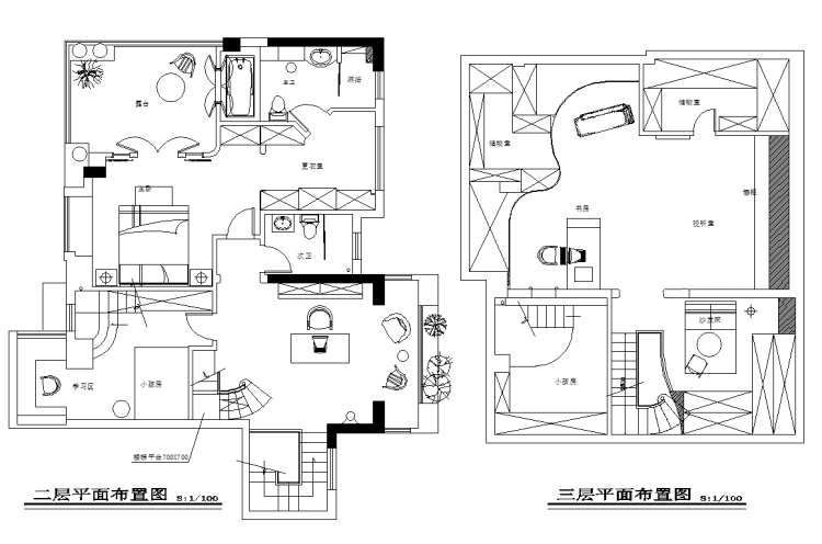
原户型的缺陷:
1玄关如果做了换鞋凳,没位置做鞋柜,即使不做换鞋凳,那位置做鞋柜也放不了几双鞋子
2厨房封闭后进入客厅的走道很狭长
3客厅上空梁太多,封了又太矮,不封压在头顶,错开梁的位置太小,安排不下沙发区
4餐厅如果按照6人位安排不够宽裕
改造后解决的问题:
1开放式厨房让客厅和厨房互相借景,钢琴区外墙打掉改为楼梯,扩大客厅视觉感
2鞋柜改到走道区,玄关做个飘窗形式的换鞋长凳
3厨房做成斜顶,避开梁往上提,尽量保住楼层高度
4餐厅往老人房扩一些,优先考虑公用区域
5客厅往阳台扩多摆下一个沙发,客厅顶上多做一根假梁,形成3根装饰梁解决客厅被压在角落的问题
二楼和阁楼的原户型缺陷:
1业主本打算阳台家人共用,导致主卧非常小,主卫和更衣室都被划到主卧外
2小孩房光线不够
3阁楼斜屋顶,四周太矮会碰头
改造后解决的问题:
1二楼说服业主把阳台包入室内形成大空间
2小孩房外墙打掉,把户外面积包进来形成学习区,顺便多开个窗户采光会好一些,小孩房上空的阁楼包进小孩房,加强空间趣味性,小孩房的上空光线不够,在它和阁楼之间开个圆窗户采光
3阳台倒楼板包入书房,书房重心右移,避开顶部梁
4阁楼围绕4个天窗设计,保证所有功能区都有光线,太矮的位置通通安排为储物空间
5阁楼的备用客房没有独立规划出一间,利用楼梯口的位置安排个沙发床,没有客人直接当阅读角落或者聊天区
1图中左边灰色的柜子其实是鞋柜,看平面可以发现,玄关是没位置安排的
2用一体灶解决油烟问题,厨房开放出来让视觉通透些
3看户型图会发现厨房顶有梁,不想封平,只封了走道部分,其他的以斜屋顶的形式让厨房看过去比较高
这是入口玄关往内看,梁上空的楼板倒掉改造为二楼的小孩房,走道吊顶按梁底封平,把厨房做木吊顶把高度提上去
1客厅面积局促,只能向阳台扩些多摆下个单人沙发
2看户型图可以发现客厅顶有2根梁,干脆多加根假的,让梁暴露成装饰梁
1为了避免梁太厚的压抑,用文化石拱顶修饰了落差。
2楼梯部分开放出来作为客厅背景,视觉宽敞些
客厅的原始模样,2根大梁卡着,而且客厅宽度不够,沙发都不好摆,从这张图也可以看到贯穿到厨房的大梁,也就是说,这顶是很难处理的,当然如果不怕压抑封平就可以,或者不在乎视觉效果和地面造型对不起来,各做各的就没有难度
1入户玄关做个假飘窗,解决业主要求坐着换鞋的问题,飘窗红色软垫,下面是黑色矮柜,矮柜有抽屉,可以放置鞋油之类零碎物品
2厨房岛台增加操作台的长度,同时也可以直接当早餐台,人少的情况不需要搬到餐厅
餐盘/餐垫还有黑白格子的这些装饰品,通通都是业主直接从国外购买回来,由于玻璃陶瓷品易碎,如果不是不好代替的,一般还是考虑国内买。
餐厅往老人房扩,顶上梁暴露,太矮的封平漆白,中间部分做个木头顶装饰
因为洗衣房外面包了铝合金窗户,这门不会被雨水淋到,我把原建筑的铝合金门改为木头的亲和些
餐厅正对的这门内是洗衣房,油漆工现场做的木漆,制造斑驳的年代感
这推拉门就是餐厅完工照里那木头门的位置,餐厅区域顶部是完整的,但走道梁也很矮,我把这部分做成木斜顶加强区域感
1这是二楼主卫,业主太太想要个化妆台,更衣室内面积有限,我建议把这功能丢进主卫和洗手台合并。
2和露台之间留个窗户,这窗户是内外两层,外面的是玻璃的,内部百页,满足不同情况下的隐私需求
1淘宝上有这类型家具,别说木材油漆质感差一大堆,比例也不靠谱,糟糕的是,大部分店家的诚信度有限,照片都是拷贝正版的·····购物拼的是运气(本案大部分家具和软装都是国外直接运回来的)
2房间木门这些都是现场做的,更容易色调统一
3主卧打通后空间宽敞,形成大套房的感觉
装修期业主在国外出差3个月,看到家具店就拍照片发我确定,当然说得容易,做起来并不容易,实际是这样的,每次他逛街看满意的店就拍几样回来晚上和我核对,我看风格符合的他再去店里认真一个个拍过去,顺便量具体尺寸,然后我输入电脑核对,有时候一个东西都要反复好几次
1主卧的规划我们争执了很久,按照原户型,这房间只到左边墙的位置,业主希望露台留给家人共享,如果留出走道,更衣室和卫生间就被丢到主卧外,我觉得不如全部划入形成大套间看过去有气势。改造后房间看过去非常大气,露台窗外是江景,不存在被对面楼偷窥的问题
2主卧往小孩房扩了些,为了遮盖梁四周做吊顶
3不同色漆的运用空间看过去层次更丰富
主卧的原始状态是上图中梁以内的区域,实际房间只能摆下床和床头柜,而这房子就是业主一家3口住老人都很少过来,我觉得楼下就是小区花园,没必要因为因小失大,更衣室和主卫隔到走道外面很不方便的,况且即使关着主卧门也没有屏蔽功能,小孩子一样会敲门,最后说服业主全部打通,主卧占了半层楼
1二楼的起居室兼书房,阳台被包入室内作为阅读区。找不到适合的书柜,让木工现场做了个
2书房往窗户方向推,中间没有梁的地方可以做个圆造型提高些
3书桌和旁边的矮柜都是国外运回来的,灯也是,对比以往在淘宝购买过的灯,明显的重量不同,玻璃质感差异大,近看工艺细节也很有差别
阁楼的布局是围绕天窗安排的,太矮或者光线不好的地方通通规划为储物空间,包括书桌背后这面弧墙,内部也是储物柜
1右边白色砖墙内是储物室,照片没拍到房门。因为这角落太矮,释放出来利用率不高还容易碰头不如封了看过去干净
2门洞上空有大梁,砌墙掩盖掉,外面那间也就是楼梯口的位置,摆个沙发床,平时可以当成阅读区或者聊天区,有客人的时候当备用客房。
3这层主要是家人的亲子活动区,父母工作的时候也可以顺便看孩子嬉闹,加强互动
阁楼兼视听室功能,这层一共4个天窗,所有的设计都围绕天窗进行
阁楼的原始模样,上面那张左边的第一个窗户是以后的书桌区域,右边的窗户是完工照里摆个阅读椅的位置,下图中梁以内的位置被封到储物室,窗户的位置比较矮,我在前面做个矮柜,这样人的活动区会往外移,这个区域在完工照中是摆着地毯的视听室
相关案例推荐
连君曼
设计师相关作品
 
 
 
												
													
														
															
																 
												
													
														
															
																 
												
													
														
															
																 
												
													
														
															
																 
												
													
														
															
																 
												
													
														
															
																 
												
													
														
															
																 
												
													
														
															
																 
												
													
														
															
																 
												
													
														
															
																 
												
													
														
															
																 
												
													
														
															
																 
												
													
														
															
																 
												
													
														
															
																 
												
													
														
															
																 
												
													
														
															
																 
												
													
														
															
																 
												
													
														
															
																 
												
													
														
															
																 
												
													
														
															
																 
												
													
														
															
																 
												
													
														
															
																 
												
													
														
															
																 
												
													
														
															
																 
												
													
														
															
																 
												
													
														
															
																 
												
													
														
															
																 
												
													
														
															
																 
												
													
														
															
																 
												
													
														
															
																 
                                                     
                                                         
                                                     
                                                         
                                                     
                                                     
                                                         
                                                     
                                                     
											
										 
											 
											 
											 
											 
											 
														 
														 
														 
														 
														 
				 
                
 粤公网安备 44010602000156号
粤公网安备 44010602000156号