前言: 业主的上套房子装修完很平庸非常失望,她期待中的家是与众不同的,给我打电话问有没接后期软装改造的,我说:“木有”于是她决定卖掉找我重新设计,要求风格独特鲜明。
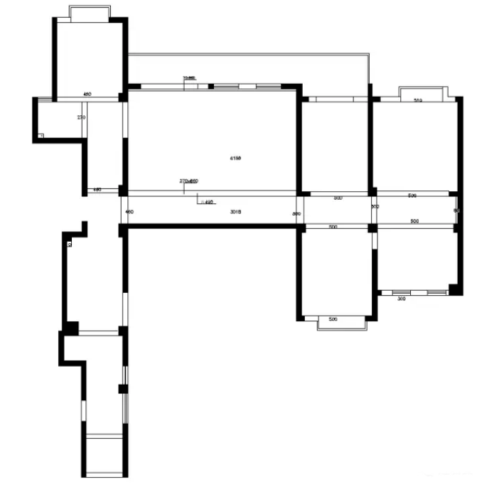
原始户型颇有缺陷,1站在入口玄关处往左看老人房,狭长!往右看厨房,狭长!透过客厅看卧室区走道,狭长!2厨房距离餐厅太远
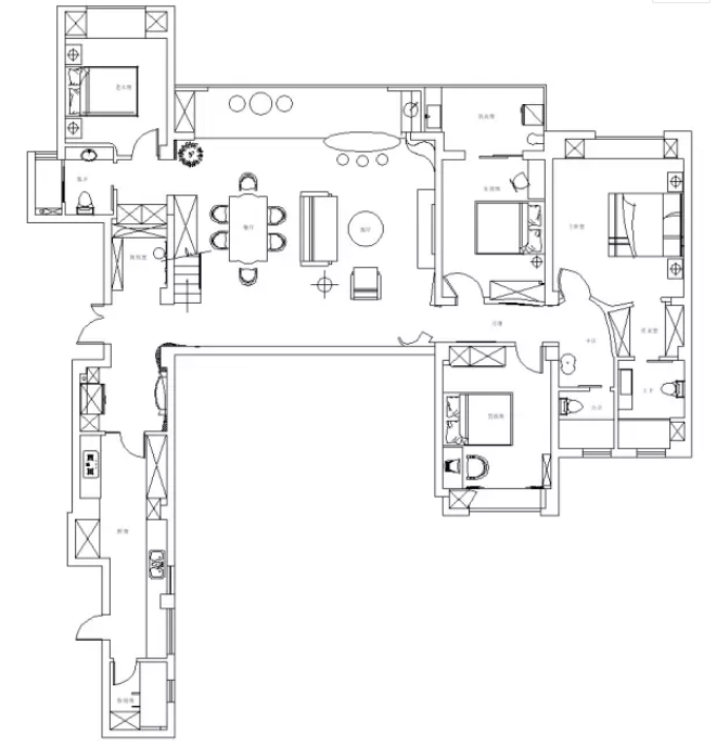
改造后打掉客厅和阳台的隔墙,规划为吧台区,弥补了厨房太远的缺陷。楼梯下的储物柜解决解决客厅储物空间不够的问题,厨房内保姆房床安排在上铺,床下为储物柜,没请保姆的情况下厨房内能多个储物室。
客厅挑高位置倒完楼板改为二楼,沿着窗户规划空间,首先要保证卫生间/书房/客房都有采光通风
业主经常在家举办聚会,希望有个BulinBulin的吧台
厨房距离比较远,就近安排个洗涤池方便冲洗水果及餐具,吧台内部的储物空间兼餐具柜功能
倒完楼板后客厅左右各有根大梁,这类型的常规解决手法是梁以外封平,中间凹上去走圈灯带,我把客厅吊顶设计成螺旋式平缓爬升,保持楼层高度又比较灵动。
灯带弥补了入口处的光线不足,同时避免重心集中在客厅的死板
原户型厨房面积只到灶台左边的柱子,外面是阳台,走道尽头保姆房(黑色字母门内)原本是设备间。重新规划后把阳台包入厨房,暴露出来的柱子用高柜掩饰避免凌乱。大面积的白弱化狭长空间的压迫感,黑色地柜和红色墙砖跳跃错开分散了注意力。
花砖和保姆门的图案,呼应了红色主墙和黑色地柜。
一楼储物量不足,二楼书柜背后多增补出一间储物室
一楼客厅和吧台间有根大梁,二楼这位置同样有,我不希望把整层封平高度下降,所以顺着梁包个圆弧顶,弧度的平缓过渡弱化了落差产生的不舒服
相关案例推荐
连君曼
设计师相关作品
 
 
 
												
													
														
															
																 
												
													
														
															
																 
												
													
														
															
																 
												
													
														
															
																 
												
													
														
															
																 
												
													
														
															
																 
												
													
														
															
																 
												
													
														
															
																 
												
													
														
															
																 
												
													
														
															
																 
												
													
														
															
																 
												
													
														
															
																 
												
													
														
															
																 
												
													
														
															
																 
												
													
														
															
																 
												
													
														
															
																 
												
													
														
															
																 
												
													
														
															
																 
												
													
														
															
																 
												
													
														
															
																 
												
													
														
															
																 
												
													
														
															
																 
												
													
														
															
																 
                                                     
                                                         
                                                     
                                                     
                                                     
                                                         
                                                     
                                                     
											
										 
											 
											 
											 
											 
											 
														 
														 
														 
														 
														 
				 
                
 粤公网安备 44010602000156号
粤公网安备 44010602000156号