前言:
									刚收的精装新房,竟然要全部拆掉重新装?
没错,今天要和大家分享的这个作品,是一个精装改造的案例。
业主的房子是精装修交付的,属于轻奢风,有做了造型的电视墙,深色的木地板,房间里还贴了壁纸,但组合起来,还是会让人觉得有些压抑,不够明亮。
可房子明明在次顶层,其实采光还是很不错的。之所以会觉得有些压抑,主要是装修风格的问题,那么改变装修风格是势在必行了。
业主找到我们,最直接的需求就是:我要把这些拆了重新装,让房子看起来更亮堂一些。尽管预算有限,但是还是想要用一些好的家具电器。(业主最终选用了很多源氏木语的家具,还有一些进口品牌的电器。)
既然业主这么信任我们,那肯定要尽全力满足业主的需求了。这不,改造完成之后,业主表示,找我们果然没错,终于是理想中家的样子了。
									
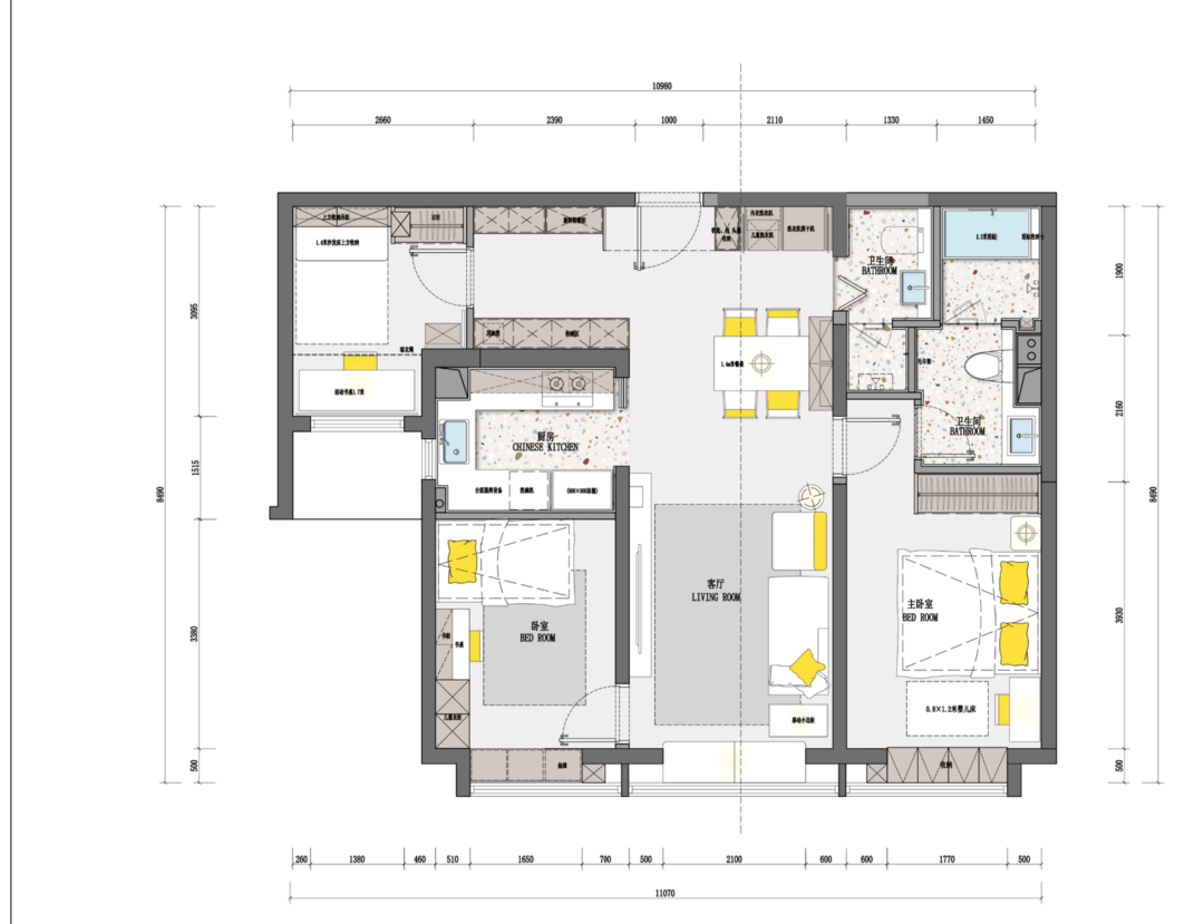
原始户型图
1.本案是个传统的三居两卫,两个卫生间都属于比较小的空间,不能满足放浴缸的需求,没有放洗烘套装的地方。
2.入户左右两侧不改格局的情况下会形成一定程度的空间浪费。
3.缺乏收纳的空间。
平面设计图
经过跟业主的充分沟通,我们不仅在改变风格的同时也要局部改造空间格局。
1.首先为了让入口左侧的空间避免浪费,我们把多功能房的门移到中间,这样就可以做两排收纳柜,入口右侧除了放一组鞋柜,还有洗衣机烘干机的位置。
2.把主卫和次卫的墙体拆除,经过设计重组,不仅把主卫的空间扩大出浴缸的空间,而次卫也满足了三分离的需求。
入户玄关柜作为日常使用收纳,侧面白色柜体则作为家政空间用于放置洗烘套装的以及日常清洁用品的空间,将玄关柜浅木色与邻侧柜体奶油白的材质拼接整合,既强化了入户区域的收纳功能,又通过材质对比提升空间层次,高效利用每一寸空间。
浅木色地板、原木电视柜、边柜,传递出自然温润的质感,为空间注入家的温度;沙发窗边卡座的组合,既满足日常休憩,又为三口之家提供了 “亲子阅读、阳光小憩” 的多元场景。
大窗配半透白纱帘,让光线柔和地铺满空间,营造出明亮且不刺眼的通透感。
以简洁的墙面线条、规整的家具造型为基底,摒弃冗余装饰,呈现 “少即是多” 的设计逻辑;原木玻璃边柜集展示 + 收纳 于一体,玻璃柜门可展示装饰摆件,抽屉则收纳日常杂物,在小体量中实现功能最大化。白色玻璃吊灯的圆润造型,为空间注入一丝灵动,与原木边柜的复古感形成呼应,强化风格的层次感。
黑色金属框玻璃推拉门实现餐厨空间的弹性分区:打开时,厨房与客餐厅形成通透的开放式格局,提升空间视觉感;关闭时,有效阻隔油烟,满足中式烹饪的实用需求。
以纯白、黑色、浅灰为主,低饱和度的黑白灰经典配色,营造出简洁且高级的视觉氛围。
实木餐桌的温润、岩板台面的细腻、玻璃柜门的通透,形成柔 - 硬 - 透 的触感对比,餐椅的棉麻坐垫,柔化了木质家具的冷感,提升空间的温馨度与包裹感。
自然却有质感,实用且具温度的空间,是现代自然风在小户型中美学与实用平衡的典型实践。
将床头背景与双侧书桌、收纳柜体连贯设计,既强化了空间的整体感,又满足 睡眠 + 阅读 / 办公 的双场景需求,最大化利用空间。
飘窗的位置不仅可以作为日常休息的空间,又通过底部的抽屉实现杂物收纳,在小空间里最大化利用每一处可塑空间。
儿童房的床放置在靠墙的一面,书桌以及吊柜、高柜、窗台柜的组合,最大化利用垂直与角落空间,解决儿童房杂物多、难整理的痛点,把空间更多的留给儿童玩耍。
相关案例推荐
							赫兹设计
设计师相关作品
												
													
														
															
																
												
													
														
															
																
												
													
														
															
																
												
													
														
															
																
												
													
														
															
																
												
													
														
															
																
												
													
														
															
																
												
													
														
															
																
												
													
														
															
																
												
													
														
															
																
												
													
														
															
																
												
													
														
															
																
												
													
														
															
																
												
													
														
															
																
												
													
														
															
																
												
													
														
															
																
												
													
														
															
																
												
													
														
															
																
												
													
														
															
																
												
													
														
															
																
												
													
														
															
																
												
													
														
															
																
												
													
														
															
																
												
													
														
															
																
												
													
														
															
																
												
													
														
															
																
												
													
														
															
																
												
													
														
															
																
												
													
														
															
																
                                                    
                                                        
                                                    
                                                        
                                                    
                                                        
                                                    
                                                        
                                                    
                                                        
                                                    
											
											
										
											
											
											
											
											
														
														
														
														
														
				
                
粤公网安备 44010602000156号