前言: 业主是一对90后的小夫妻,两人从事航空行业,有个3岁的儿子,因为明年儿子要上学,今年想要把自己的房子装修一下,夫妻两个都比较喜欢现代简约的风格,哑光质感和精致的通透感是两个人共同的诉求,因为原户型厨房面积比较小,希望我们能对户型进行一定的改造,把厨房空间扩大,让整个空间变得更为通透,提高互动性,让亲朋好友过来玩耍时能够更为舒适自由惬意。
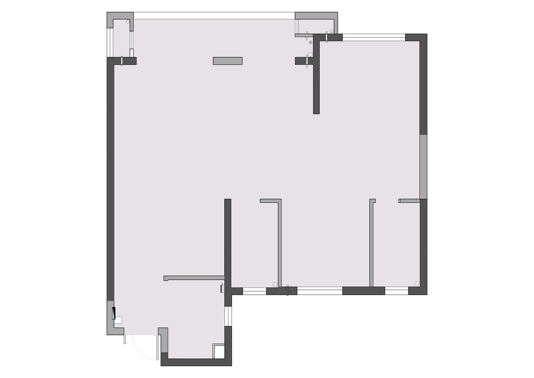
改造前的平面图:1、厨房面积偏小,冰箱纳入厨房后,操作台面不够。2、除了卫生间的隔墙,其余隔墙都未砌,这就意味着这个空间有很多种可能性。3、入户没有鞋柜位置,全屋需要考虑收纳系统。
改造后的平面图:1、拆除餐厨空间的隔墙,厨房做了开放式,餐厨空间一体化。通透性也大大增加。2、入户左侧做了一整面的鞋柜,屋主可以根据需求,给鞋子合理摆放。3、细长的阳台一分为二,一部分开放划分到客厅,一部分做洗衣、晾晒区域。相邻的小孩房与阳台、走廊形成洄游动线,孩子们玩耍有足够的空间。4、次卫做了干湿分区,家人洗漱和上卫生间互不打扰,5、主卧室与小孩房中间的用"s"隔断墙,满足两个卧室的储物空间,做完后的储物空间和墙面平齐,不显压抑。
客厅拆除了原始的隔断和阳台的推拉门,整体连通后整个瓷砖通铺,吊顶贯穿到底,线条流畅。电视背景墙采用整墙的白色墙柜,无拉手的按压式柜门最大程度上保证了空间表面的整体性。
客厅的走廊利用横梁高度,在这里做了一个圆拱造型,这样去到卧室空间,更加有仪式感。
无大地毯,无茶几,主打一个黑白简约,喜欢这种利落通透的感觉。黑色的豆腐块放在客厅耐看舒适,搭配线条感十足的钓鱼灯,慵懒自在,高低搭配空间更有层次。
黑色的皮质沙发是空间中比较少有的深色物品,高光的质感与空间的白色亚光质感层次叠加对比,相得益彰。
墙壁上挂置的日月星异,还原月阴晴圆缺的真实状态,每一个画面都是独一无二的。同样是黑白色调,在空间能达到一种微妙而平衡的氛围。
开间3.7米的空间,这个收纳“小能手”的满墙电视柜,谁用谁喜欢,特别是家里有小朋友的家庭,收纳空间很强大。机顶盒和插座都藏在抽屉里面,避免杂乱的线外露。
厨房拆除隔断后,空间上与客厅融合,极为宽敞,布置也变得更加灵活,1.8米的餐桌搭配上简约的黑色餐椅,看起来更加优雅自如。在开放式厨房做饭,视线可遍及客厅、餐厅,可以边烹饪美食边和家人聊天。
冰箱
现代
油烟机
烤箱
瓷砖
橱柜
厨房
嵌入式家电
开放式厨房
地柜与高柜空间的墙面和台面可以安装搁架,可以放置消毒柜微波炉或安装搁板、挂钩、杯、调料瓶、铲子、勺子等。餐厅增设岛台,增加收纳空间,橱柜放不下的锅碗瓢盆都可以放到岛台里。岛台侧面安装导轨插座,火锅烤肉安排上。
主卫搭配墙地同色砖和白色浴室柜,有扩大视觉的效果。用超白玻璃做隔断,防止淋浴时候水流飞溅,视觉效果通透不压抑。淋浴区域利用包管的位置,做了一组壁龛,洗浴用品有了容身之处。下沉20mm的淋浴区域,找坡10-22mm,不用担心排水问题,瓷砖收口对师傅手艺要求高,但颜值还是不错,卫生好清洁。
干区通过墙体的改造后,把干区并到公共区域,不规则的镜,让空间的通透感和艺术性增强,台盆柜体采用悬空设计,打扫卫生无死角。
主卧的设计以温馨舒适为理念,采用白色作为整屋的色彩主调,搭配上木质地板,深色半墙护墙板,柔和的氛围灯营造出极为居家的卧室氛围。
主卧室床头搭配丹麦品牌&Tradition的花苞灯,颜色清新,很有质感。
衣柜+梳妆台一体式设计,靠近梳妆台位置做了分段式柜门,深色的梳妆台柜门穿插点缀,既整体又实用。
书房以榻榻米多功能房呈现,一体式衣柜和书桌增强了空间的连贯性,兼具美观和功能性。靠床上方是储物柜,平常不使用的衣服或者生活用品都可以收纳起来。
相关案例推荐
希雅设计-杨小年
设计师相关作品

粤公网安备 44010602000156号