前言:
这套位于安徽宿州的110㎡顶层住宅,是一位妈妈和女儿的共同小家。我们根据两人的生活节奏和相处模式,重新思考了家的布局。
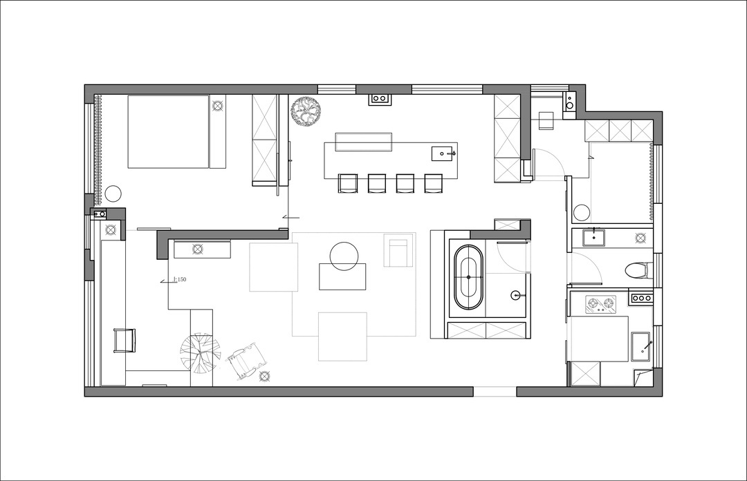
妈妈工作忙碌,希望休息时间能多陪女儿,也更注重彼此之间的互动交流。原本的三房结构略显封闭,餐厅客厅连通但缺少玄关,储物也不够。
于是我们打破原有格局,只保留两间卧室,把一个房间改为独立玄关+三分离卫生间,让回家更有仪式感,日常洗漱也更高效。
同时,我们取消了传统餐厅,用一张西厨岛台代替餐桌——这里不仅是吃饭的地方,更是母女一起做烘焙、聊天的核心区。中厨满足基本烹饪需求,简洁实用。
整个家现在变得更开放、通透,无论是她在西厨准备轻食,女儿在旁边书桌写作业,还是在客厅放松,都能随时看到对方、随时说话。
我们为这个家注入了更多的陪伴与互动可能,也留出了每个人独处的角落。这是一个真正为母女俩量身打造的自由小世界。
脚底是温润的木地板,墙面和地面选择了微水泥,质感细腻又好打理。其中还点缀了枫叶棕色的大理石,像秋天落叶一样的色调,自然又高级。
这些材料自带的手感与纹理,让整个家变得格外有温度,简单中透着细节。我们希望回到这里,就能卸下忙碌,感受一种安静、本真的生活气息。整个家是那种很柔和的大地色氛围,墙和顶面都刷了带有细微肌理的涂料,摸上去有自然的触感。我们搭配了很多藤编、原木和软软的绒面家居,没有做传统的固定沙发或者背景墙,一切都是自由灵活的。
这样设计是想让空间更松弛、更呼吸,你待在这里会不由自主地放松下来,安静而踏实。它不仅是一个客厅,更是一个能让你彻底安心、找回归属感的地方——不知不觉中,这个家也重新连接了人、空间与自然之间的关系。
当设计实现从小尺度到开阔场域的转化,“互通性” 就成为了核心密码:每个空间都是连接彼此的 “活态接口”。木板幽灵门和移门的设计既可以将各个空间尽收眼底,关闭门又可与空间氛围融为一体,也是此案的设计小灵感。
波浪形廊顶是餐厅的点睛之笔,灵动的韵律线,打破规整刻板,起伏姿态为空间注入层次与呼吸感。让视线游走时,在光影明暗、形态曲直间,自然的完成了通透与简洁的叙事
床头柜是用枫叶棕大理石做的。经过打磨和设计,不仅完美融入了卧室风格,还带有了一种独特的质感 。当晨光透过窗帘,幸福也从这一天开启,在「不完美」的质朴里生活,我有我的生活态度。
书房增设的地台,让空间层次由一变二,左侧长方体的花箱围合出的区域,赋予内部空间安全感,既能调和建筑空间,又可注入舒适感。
闫文强
设计师相关作品
编辑精选

粤公网安备 44010602000156号