前言:
本案是位于常州西太湖片区的中天度假别墅区,总体面积达1000㎡,包含了庭院/地下室等多功能区域。
整体别墅群都是以江南建筑风格为主,青瓦白黛,颇有中式韵味,我们受业主所托,整屋的室内设计也是以新中式为主,搭配现代化的工艺,打造了一个顶流审美的家。
1000㎡的别墅,除了有非常开阔的大庭院,室内空间也是很多面,我们分别设计了运动区/休闲区/娱乐室/以及卧室餐厅等等功能配套。
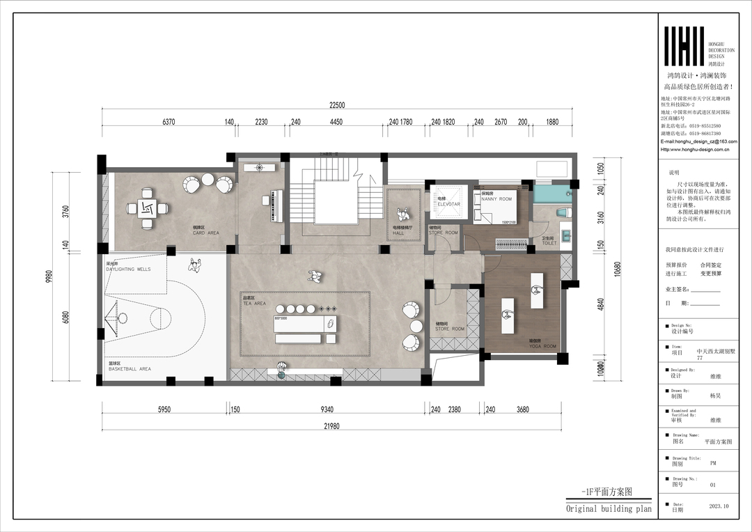
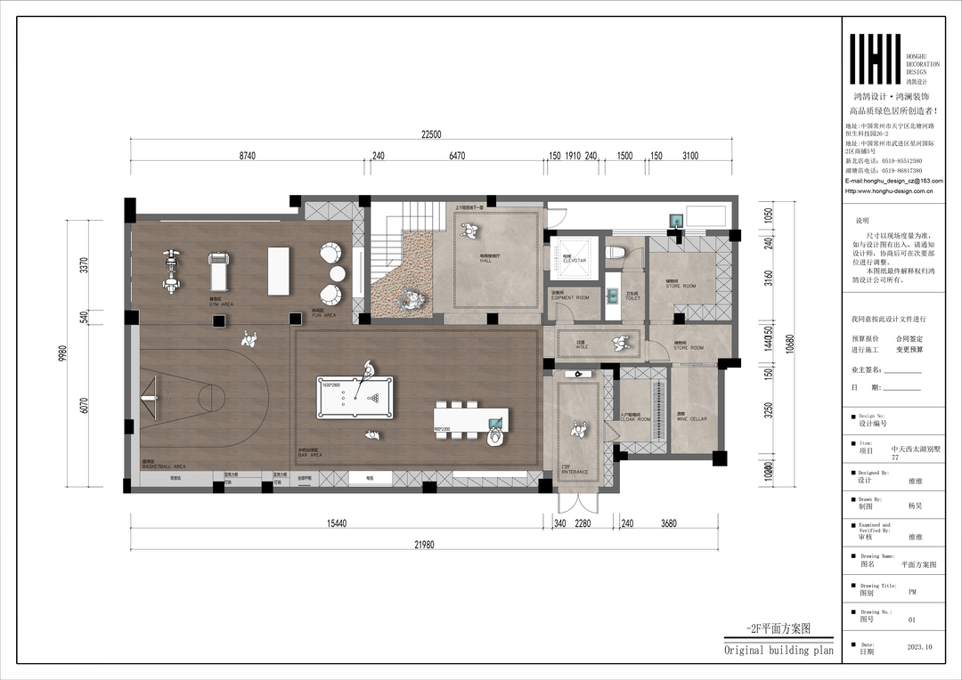
-1F--2F图片
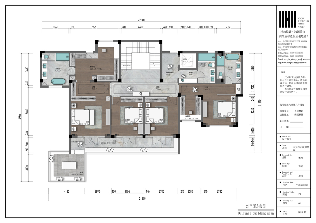
这个项目的每个空间都非常舒展,所以我们在设计的时候,可以兼顾这个家里每个人的爱好。重点在地下的-1F--2f空间,满足了一个三代同堂的爱好功能缩影。
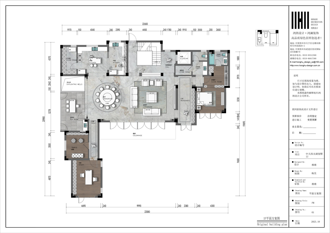
1F-2F图片
以家庭居住日常需求为主,整体的起居生活动作完成都在1F到2F。
步入玄关,一方大理石精琢的 “四叶草” 地景跃入眼帘,灵感源自梵克雅宝的经典图腾,以天然石纹为脉络,寓意幸运与奢美共生。光影透过水晶吊饰洒落,与金属包边的线条交织,为江南园林的婉约添了一笔现代锋芒。
黄铜镶边的案几、镂空屏风的金属骨架,与红木的温润形成碰撞,刚柔并济。
会客区环形布局,四四方方,大气舒展,东方待客之道与西方舒适主义并存;
整面落地窗借景庭院,室内外以一道 金属丝嵌玉屏风 为界,虚实相生,晨昏光影皆成画。
以 “方”为纲 的客厅,将中式建筑的轴线美学演绎到极致,而餐厅以“圆”为主旋律 的餐厅,以现代手法解构传统团圆意象。
“天圆地方非止于形,更是 东方生活的双生脉络——客厅的方,是礼制与规则;餐厅的圆,是烟火与包容。当岛台的香槟杯遇上灶台的松烟墨,方知此间江南,早已跨越时空的结界。
设计师在主卧的墙面做了圆弧造型,与中式的水墨画相融合,整个卧室仿佛是一个打开的中式卷轴艺术品,优雅,大方,娓娓动人。
这方主卧,是 一场关于睡眠的文人画创作。
两个儿童房我们都依据不同的审美和年龄层次
来打造,所有的设计都要关乎于“人”
不同于其他空间,设计师也为儿童房做了改变,更加迎合居住者的年龄和审美。
鸿鹄设计
设计师相关作品
编辑精选

粤公网安备 44010602000156号