前言:
车车一家从朝阳搬到海淀,他们喜欢这里的繁盛植被,也喜欢复式的户型设计——趣味性的结构动线让孩子在家也能自由跑动。
“我想家不一样,不想千篇一律,楼上楼下两种风格”,女主人车车对我们说道,创造由此展开。
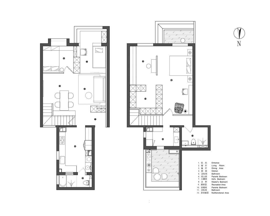
在空间布局上,我们的设计重点包括将原本开敞一览无余没有隐私遮挡的玄关调整为一个更封闭、实用的门厅。
家门口特意做了一个双面柜遮挡入口,这样在室内完全看不到门的位置。用来遮挡入口的柜门和其他柜体形成完整而流畅的收纳空间。
事实证明,这项新设计完美适配他们的需求,回家的落尘动作皆在此完成。
在北京,复式住宅很受房客欢迎。然而,尽管这幢房子面积不算小,二层又有很优越的层高,但一层层高不是很好且并不适合车车一家的居住要求,所以需要全部重新拆分。
“当我们走进去,看到阳光洒满室内时,我们对视了一眼,心照不宣:这就是我们在寻找的家。”找到这个家,对车车而言是一个完美的契机。“我并不想找很新潮的房子。我想要一个有个人特色的家,一个能让我们重新有归属感的地方。”她说。
于是,我们进行了一番改造,采用木质柜体分隔出各自的空间,一层分为客餐、老人房、儿童房;儿童房构建地台增加趣味感,沿窗下定制杂志架陈列儿童书,合适的高度可以培养孩子的阅读习惯。
设在门厅旁边的厨房,是车车喜欢的空间。“我热爱烹饪,尤其是那些我从小看着母亲制作的家常菜。”车车说。
原始厨房卫生间在同一空间,我们在改造上大胆的将卫生间移到厨房阳台,这样厨房就形成了一个方正的空间;扩大的台面和储物,更满足现代家庭的烹饪习惯。
最初为二层定调时,车车提了两个核心需求:
一是色彩,二是收纳。
生性活泼的她,希望家也和自己一样,是五彩斑斓、鲜活跃动的。
“每次走进我的房间,我就可以抛开外界的所有纷扰,这里让我感到身心安稳。”
主卧里的“装饰”是一壁挂置物架,上面摆放着这对夫妇旅行各地购买的工艺品,旁边的墙上还有一面俏皮的镜子,形状奇异,墙壁更活泼。
充斥着亮眼的色彩,在一片红黄蓝里,可以看到局部紫色沙发的点缀,还会有小面积克莱因蓝的椅子,跳跃却又合理。
蒙德里安的画作,代表也解释了空间搭配的原则和灵感来源
相关案例推荐
云深空间设计事务所
设计师相关作品

粤公网安备 44010602000156号