前言:
本案是一套带有60㎡小院的老房改造,屋主是一对中年夫妇,孩子即将读大学,他们喜欢栽种花草,我们希望为他们打造一处自然质朴、简单纯粹的居住空间。
设计中,我们深入物质和精神两个层面,在中古与现代极简主义的碰撞中塑造优雅与平衡,于自然质朴之中,营造自由惬意的居住空间。
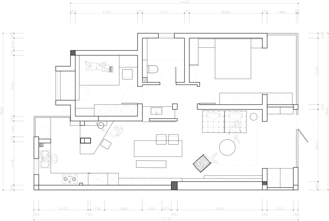
这是一个两室两厅一卫的户型,户型属于长方形户型,中间餐厅区域采光较差,客厅与主卧有一个互通的阳台,再加上有小院,朝南方向采光及视野都不错。
屋主要求主卧要有足够的衣柜收纳和梳妆台,小房间需要一个写字台、书架及展示架。
原户型痛点:
1、原来厨房空间封闭,遮挡了餐厅的采光及通风,入户门进来之后比较暗,还对着卫生间的门;
2、卫生间没有干湿分离,三个功能堆在一起,每个空间都比较局促;
3、两个卧室空间不是很大,储物功能有限;
定稿方案:
1、封闭原入户门,将餐厨空间打通,做统一规划设计,增加采光及通风,借助厨房原来的承重柱做岛台,增加厨房操作台面及储物功能;
2、将干区移出,在原去卫生间的过道处新砌墙体,做出一个独立的1.4m宽的洗漱台,方便实用,关键是这面墙体也避免了餐厅对着卫生间门的尴尬;
3、将主卧阳台纳入室内统一设计,在床尾做3.4m长的衣柜,大大增加储物空间;
4、将次卧门洞向右侧移动50公分,在次卧门后做了2.1m长的衣柜+1m的斗柜,增加了储物功能。
家,是一本书,时隔多年,也许书的封页会有岁月的痕迹,但是不变的是书中主人公对生活的爱和彼此的羁绊。心安的归属,松弛的场域,是“家”赋予居住者的意义。
客厅空间以简单留白为主,墙面、顶面统一用”古董白”乳胶漆通刷,顶面采用极简无边框的无主灯,让空间简洁显大。
电视做内嵌,没有满墙的储物柜,简单的洞石岩板墙面与电视便成就了客厅里一副留白的画卷,下方的黑胡桃电视柜轻轻“飘”离地面,烛光闪烁,让空间无端生出几分惬意的呼吸感。
雨露白的松软布艺沙发,充分展示松弛感的生活美学,墙面简单的线条+嵌入的洞石,让整面墙形成连贯一致的逻辑语言,而一副墨绿色的晕染挂画,让整个空间晕染出温雅内敛的生活意趣。
空间设计以体块穿插的构造手法,弱化梁的存在感,从框架落于细节,精雕细琢每一份细腻与思考,打开阳台,以自然光线勾勒,营造简单且自然的居家氛围。
将厨房空间打开,与餐厅进行串联,是感性的表达,借助承重柱,做一个斜岛台,弱化户型的狭长,将直饮水引入,增加生活的趣味及便捷性。
奶油白小砖,白色岩板台面,与黑胡桃柜体搭配,在硬朗与自然中碰撞、融合,回归本质,用温润的纹理诉说着时间的故事,阳光穿过百叶帘,在木纹上流淌出深浅不一的痕迹,仿佛时光在此处也有了形状。
设计中,兼顾实用和美学,在极简的轮廓里,藏着对柴米油盐的热爱。
设计,重新定义人与空间的相处模式,封闭原入户门,将这面墙做整体设计,双层书架敞开着胸怀,书籍与陶器在格子里错落成趣,最上层那盏复古小灯,会在书脊上投下温暖的光斑,像给每个故事都镀上了一道金边。
怀揣着对美与功能的无尽追求,我们将“形式追随功能”和“生活与艺术的结合”理念融入到整个空间的设计中,开放式书架墙+地柜取代餐边柜,搭配2.2米长的大板桌,小户型中构建出复合形态的生活场景,生活与美兼具。
立体几何造型的洗漱台,将透景发挥到极致,那道渐变绿色墙体的介入,为空间注入一抹清新的复古色彩,在感性与理性中达到平衡
推开主卧的门,黑胡桃木的床头背板带着骨骼般的线条,在低矮的床榻上延伸出沉稳的轮廓,右侧一盏线性吊灯垂下,灯光如细水般流淌,在夜晚铺开一片温柔的光域。
左侧的梳妆台做了穿插设计,简单却精致,圆镜映着微光,木屉里收着零散的耳坠与香水,每一件小物都沾染着生活的温度。
最动人的,是那扇大大的落地窗,晨起时,纱帘被风轻轻掀起,小院的绿意便漫进眼底——草叶上还挂着昨夜的露水,在阳光下闪烁如碎钻,美好的一天从这里开启~
相关案例推荐
方寸空间设计
设计师相关作品
编辑精选

粤公网安备 44010602000156号