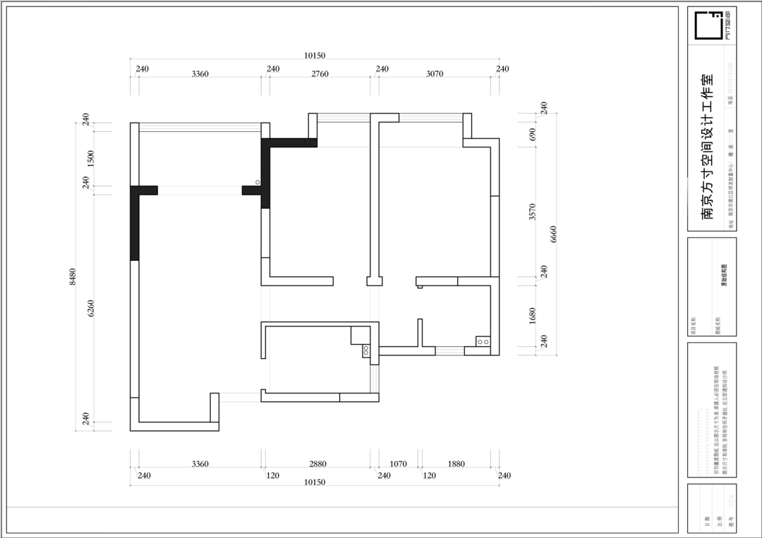
前言: 本案是南京长江边上一套75㎡二手公寓改造,屋主是一位年轻男士,这是他的第一套房,屋主喜欢暗色调的空间,沟通之后,我们想为他打造一个符合他生活方式的自由家居。
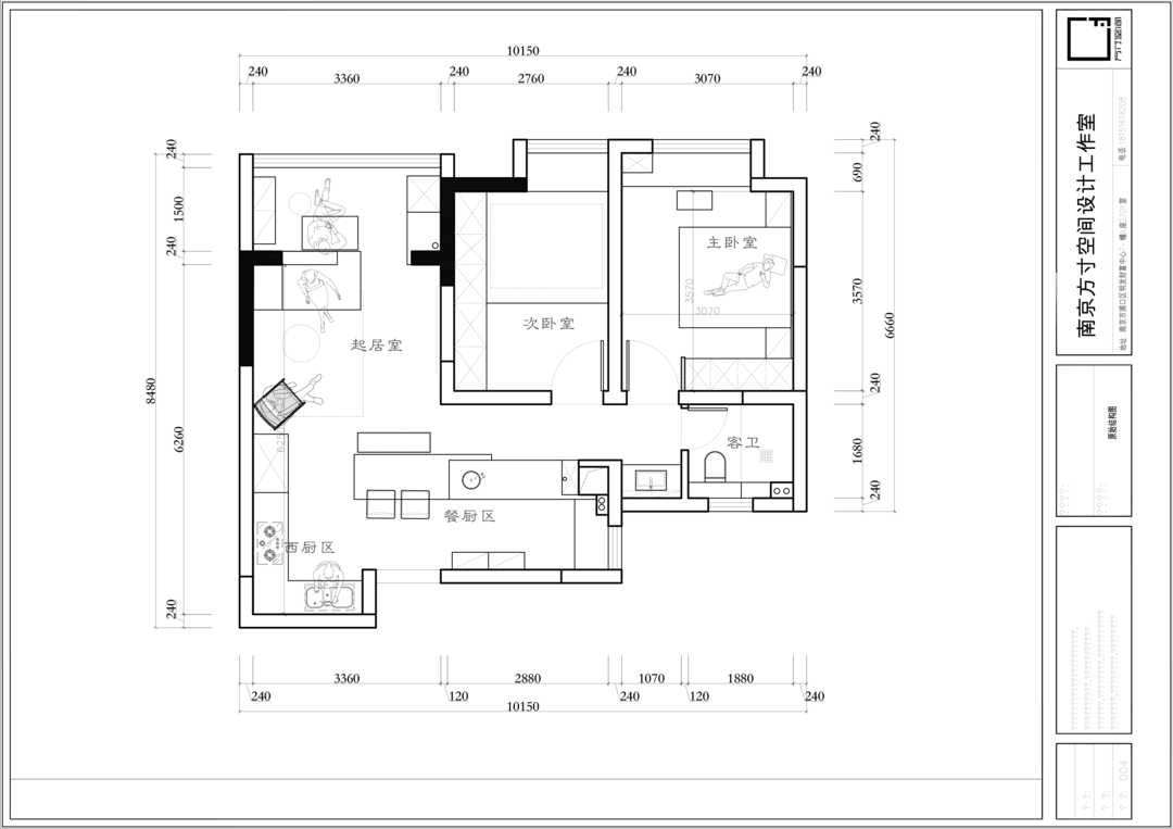
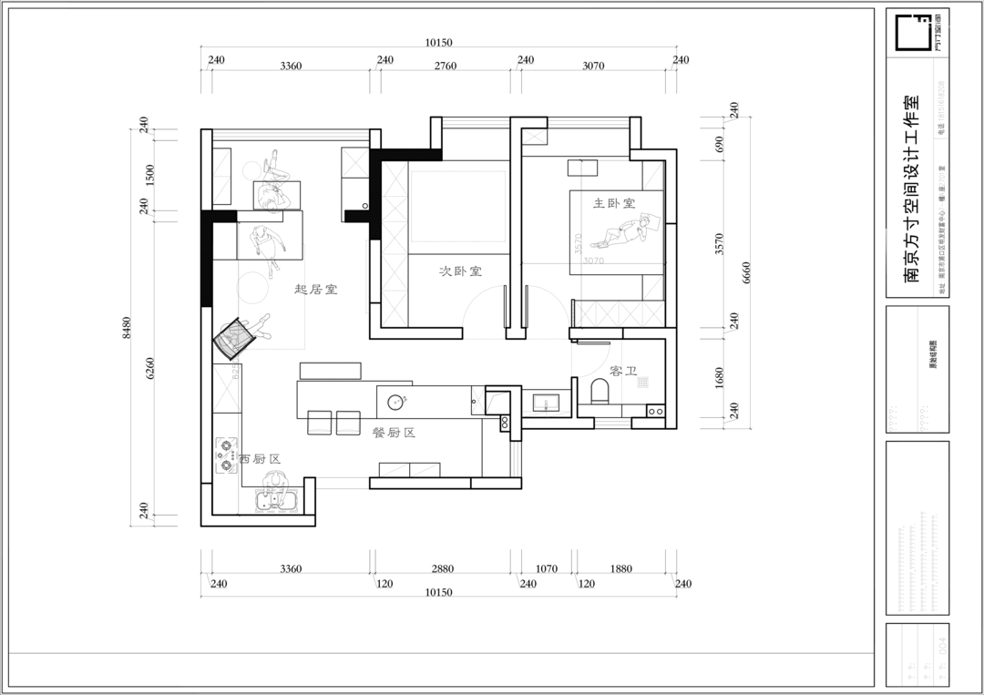
这是一个高层公寓,本身得房率不高,进门右手边就是一个封闭式厨房,左边是餐厅,通向卧室的过道比较暗。
1、封闭式厨房空间狭小,而且影响整个家居空间的采光;
2、餐厅空间也很小,无法满足屋主邀请朋友小聚;
3、次卧空间非常小,无法满足正常的卧室空间摆放。
定稿方案:
1、拆除入户右手边封闭式厨房,将厨房移至入户左手边,重新对餐厨空间定义,岛台+餐桌一体化设计;
2、借助阳台承重柱,定制岛屿模块沙发,因为阳台外面可以看到长江,让家居空间更自由;
3、客房空间狭小,为了满足更多储物收纳空间,将客房做成地台床,同时设计一整面墙的储物柜。
客厅不做过多的堆砌,简单的汝窑乳胶漆打底,量身定制的豆腐块岛屿沙发,充分体现空间的自由与慵懒,罗马帘打开,便能看到船只在江面上穿梭
致敬包豪斯美学,墙面鲜艳明快的唱片架及挂画,赋予了空间独特的视觉冲击力,不仅为原本空间沉稳的色调增加了趣味性,更彰显年轻人独有的热情以及对未知世界的追求
复古的包豪斯边几与绳编单椅,又为空间增加了些许岁月沉淀的艺术感,将审美与功能相融合,不去定义它的摆放形式,将自由与美进行到底
把不同时期的文化糅合
混中有序
空间重塑,小户型了也拥有了2.4m长岛台+1.7m长的餐桌,在这个空间里,将餐桌与岛台相结合,是对美好生活方式的期待
Prada绿天然大理石为空间注入了低调的高级感,而进门处不锈钢的展示架,则以其简洁明快的造型,为空间增添了年轻的气息
主卧空间以简洁的黑为主色调,一把紫色独特造型的单椅,让这个写字台多了几分艺术气息,展示架上摆满了屋主喜欢的香水,这里是属于他的私人领地
夜幕降临,灯光洒下,红色不锈钢材质的床头柜,热烈又冷静
相关案例推荐
方寸空间设计
设计师相关作品

粤公网安备 44010602000156号