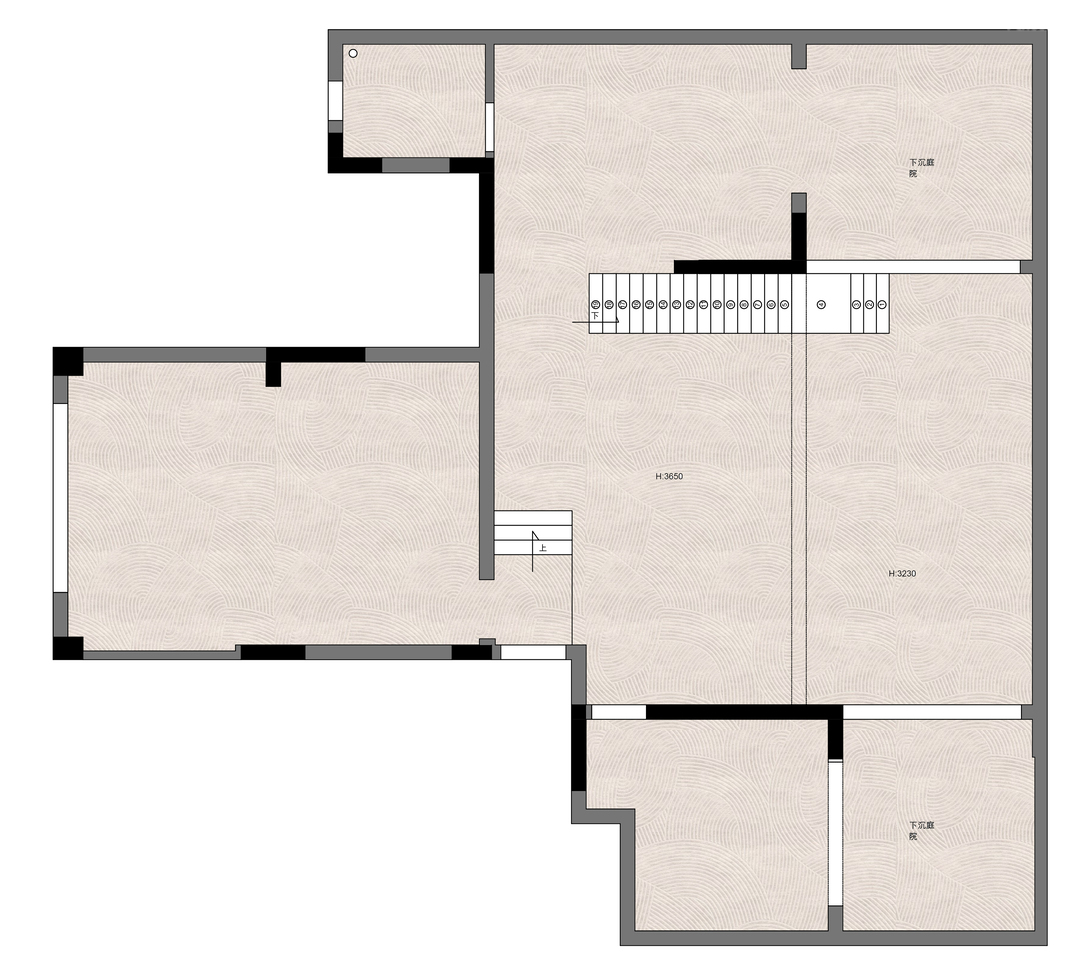
前言: 复式,是最受关注的豪宅户型,不说别的,光两层的居住空间,舒适度就堪比小别墅了~今天上线飞墨在【置地瑞玺】小区做的250㎡地复式案例,一楼带地下室,超开阔的空间搭配最合适的设计,探索家的更多可能。
设计亮点:
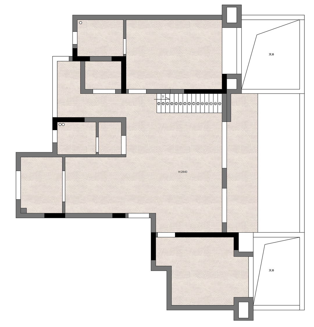
①一楼原始户型是三室两厅两卫,根据业主的需求,保留两个南卧室。
②扩大餐厨空间,将客卫与餐厅打通,原始北次卧改为卫生间。
③定制柜体,丰满每个空间的收纳力。
设计亮点:
①负一层功能包含:车库、多功能休闲区、健身区、卧室。
②重新规划布局,让空间联动性更高。
设计亮点:
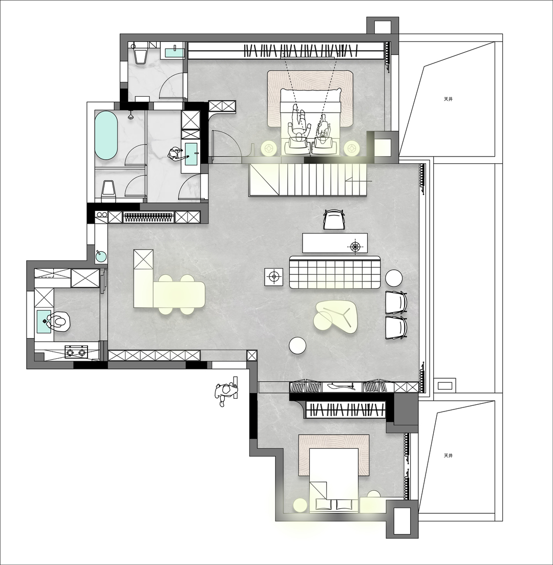
①电视墙靠边定制柜体,丰满收纳力。
②中间设计洞石地台,结合曲面造型,设计感更强。
③面向客厅的次卧门洞,做了隐形门处理,完善墙面完整性。
④顶面吊平顶与横梁之间用弧度造型过渡。
设计亮点:
①客厅开间较大,在沙发后方摆放长桌,可以作为家庭手作区、阅读区使用。
②与负一层连接的楼梯,做了玻璃扶手,最大程度的提升空间的通透度。
③楼梯后方的背景墙,定制护墙板,提升设计质感。
设计亮点:
①原始餐厅的面积不算大,业主想要更丰满的餐厨空间,于是将餐厅与次卫打通,扩大餐厅面积。
②扩大面积后,功能上沿两侧墙面定制柜体,一组鞋柜,一组餐边柜。
③中心空间增加岛台可以补充厨房台面,也可以作为西厨区、休闲吧台使用。
④与厨房之间用透明推拉门隔断,通透度最高。
设计亮点:
①材质上,餐桌岛台使用岩板,餐边柜则结合洞石,打造高质感家居。
②顶面吊平顶,用筒灯结合灯线,照明效果更好。
设计亮点:
①卧室拆除飘窗,扩大面积。
②床头背景墙设计护墙板墙裙与石膏线装饰,侧边增加玻璃砖隔断增添隐私。
③床尾定制一整排柜体,功能结合衣柜、日常收纳柜、梳妆台,实用度超高。
设计亮点:
①负一层保留一个卧室,卧室与天井采光区打通,光线更好。
②床头背景墙定制护墙板,提升家居质感。
③床尾定制一整排柜体,结合一组桌椅,可以作为书桌,也可以作为梳妆台使用。
相关案例推荐
合肥李秀玲设计师
设计师相关作品

粤公网安备 44010602000156号