前言:
“空间,让我们看见心境的模样,它用物性洞穿情感需求,将诗意铺垫于每个角落;交融语言,愉悦身心。”
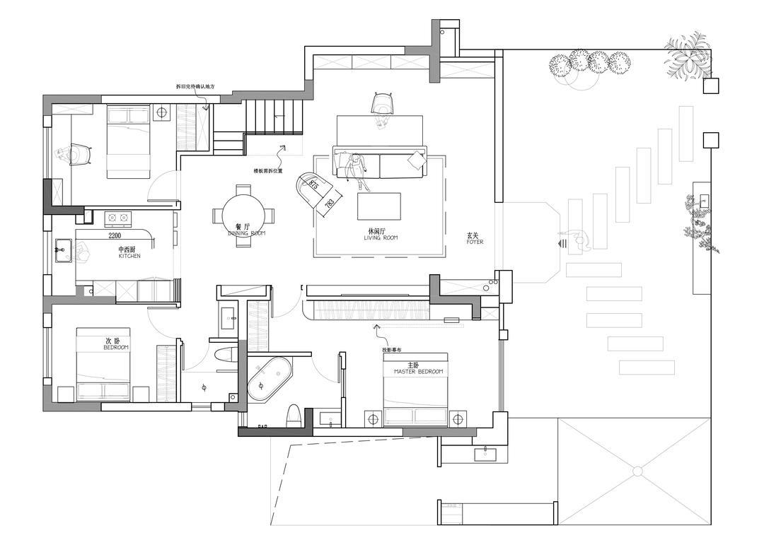
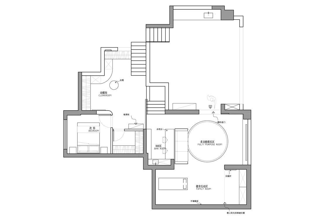
改造分析:
1.重新规划楼梯位置,显著优化上下层通行效率与空间连贯性;
2.采用灵活移门设计,实现便捷的半开放形态,增强餐厨互动;
3.极致拓展厨房使用空间,隐藏燃气管道与烟道,扩大操作面积;
4.科学规划天井采光,彻底解决地下室昏暗问题;
5.搭建夹层,增加地下室实用面积,丰富空间节奏;
6.结合舞蹈区与影音功能,打破传统格局,设计敞开交融式场景;
7.结合专业设备升级与结构改造措施,彻底消解地下室存在的漏水潮湿问题;
相关案例推荐
网友评论
付晓

粤公网安备 44010602000156号