前言: 本案是一套140㎡拥有毛细血管系统的精装房,将侘寂风与南洋风巧妙地融合在一起,形成了别具一格的居家环境。男主人和女主人的个性虽然不同,却在这个空间中找到了完美的平衡点。他们相互尊重对方的爱好,共同打造了一个既舒适又充满个性的家。
客厅以侘寂风为主,硬装方面极简主义风格搭配上弧形元素点缀,营造出一种简约温暖的氛围却又不失质感。墙面和顶面都采用暖白色调的艺术漆,强调了侘寂风的自然与朴素。
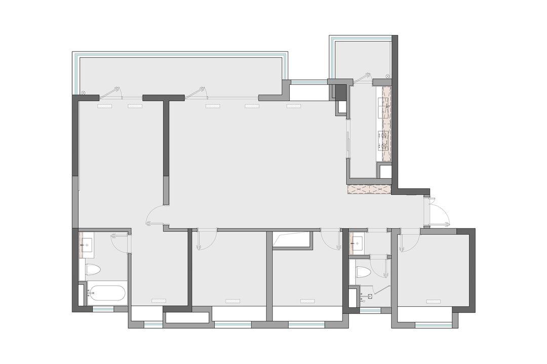
客厅比较长,但没有太多的收纳空间,于是在客厅走廊增加一长排柜体,保证了客厅的储物需求,且增加了一些弧形倒角,弱化空间的一通到底。
家具方面,设计师选择了偏中古风格的家具,木质元素让空间更具复古韵味。画框电视的点缀,让整个空间艺术氛围满满。
客厅与阳台采用木地板通铺,但在阳台的两端,我们分别设置了休闲区和洗衣区,休闲区有植物需要经常浇水,洗衣区也是用水较多的地方,为了减少木地板的损坏,以及考虑到便于打扫,于是设计师选择用六角瓷砖与木地板进行拼接。
原始厨房面积较小,可操作台面只有三米,设计师将厨房外的阳台合并进来,做了一个L形岛台,并且用一部分客厅的面积作为岛台与餐厅,厨房的操作面积基本上扩大了一倍。
原始的两个小次卧面积很小,还被飘窗占据了一部分面积,设计师将两个次卧打通形成一个开阔的儿童房,同时满足了小朋友的学习、兴趣爱好以及收纳等功能。
入户大门正对主卧门,隐私性比较差,且卧室开门方向会影响衣帽间的使用,于是设计师将主卧门往外推了40公分且改为右开,使得过道不会有过多的遮挡。
为了补充顶面的单一光源,增加了壁灯、墙面氛围灯以及落地灯。通过巧妙地选择和搭配不同类型的灯具,以及控制灯光的亮度和色温,可以为家居空间注入特定的氛围和个性。
原始卫生间面积较小,只有一个浴缸位,缺少淋浴,日常使用不太方便,设计师将卫生间外扩一部分,增加了淋浴区,外扩出来的墙体也刚好形成了主卧进门玄关,解决了隐私问题。
项目名称 Project Name - 熙境
项目地点 Location - 四川成都
项目面积 Area - 140㎡
完工时间 Project Year - 2023.09
设计公司 Design Agency - 季意空间设计
设计统筹 Design Coordinator - 李佳
设计团队 Designers - 李忠美、尹蔚瑾
摄影团队 Photographer - 季光
相关案例推荐
季意空间设计
设计师相关作品

粤公网安备 44010602000156号