前言:
家不是快消品,不能像衣服一样,一旦过时就立即舍去。而耐看性和包容性才是长期主义的真谛。
这套169㎡的四口之家,不定义风格,只诠释生活。空间和居者共同生长,仪式感和烟火气共存,在平实中传递温度——这才是家应该存在的模样。
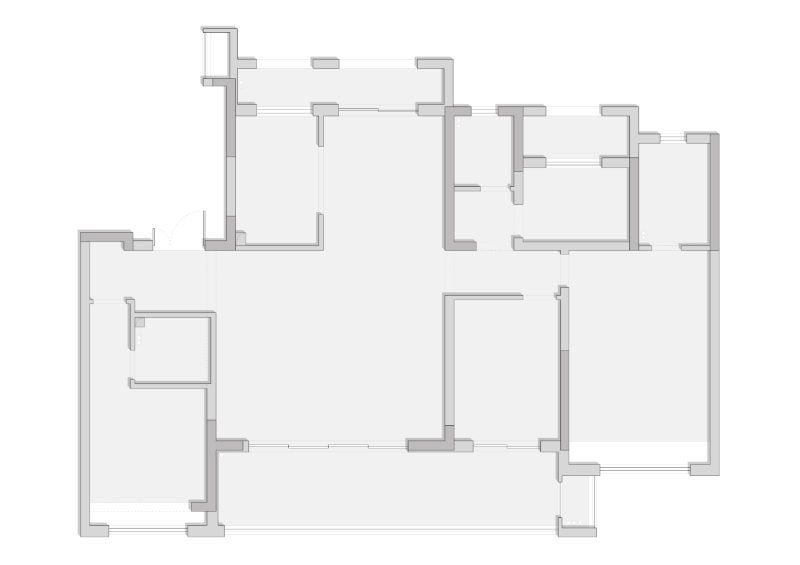
原始户型图&平面方案图
①保留了三间卧室+书房的配置,整合零碎空间提升居住舒适体验。
②餐厨空间打通做成一体化空间,四联动推拉门兼顾开放感和油烟阻隔。
③将正对玄关的卫生间改造成入户储物,完善全屋收纳系统。
④更改主卧的门洞方向,主卫干湿分离,干区外置梳妆台。
“长期主义的家,是不会被潮流裹挟前行的。”
从地中海到美式风,再到这几年流行的奶油风、中古风,装修风格总是轮回迭代。而新一代的居住者更加看重长期的审美和实用功能的平衡。
所以我们选择剥离风格标签,留下简洁直接的线条,不廉价、不浮夸,为空间预留生长弹性——无论未来流行什么样的装修风格,这个家里始终保持时尚和舒适的平衡。
客厅将居者对于品质感的考究发挥到了极致。米色和黑色交织的家具搭配,既突出了硬装的简洁高级,又让细节经得住推敲。
木饰面材质的温润巧妙中和空间配色的冷感,让家里少了点严肃,多了些松弛。沙发柜的不锈钢层板打造通透展示架,在延续现代格调的同时,又为未来的生活留白。入住后收藏摆件随时更换,家和居者一同成长。
本案中的餐厨突破了传统定位,成为家庭生活枢纽。U型布局的烹饪区延伸出用餐和社交,四联动黑玻推拉门实现开放和油烟管理的完美平衡,让颜值和实用得以并存。
公共空间的设计审美同样延续到主卧,在看到实景时,很多朋友都很难想象,这样一个充满结构美感的异形顶,其实是为了解决阳台梁体遮挡的难题。
相关案例推荐
合肥李秀玲设计师
设计师相关作品

粤公网安备 44010602000156号