前言:
家是生活与情感的容器,家居的设计,也是生活态度的表达。
从最初的设计思路到最终的实景落地,设计师用前沿的审美力把控家居的色调、材质、光影;用专业的设计笔触,将房屋与业主的生活轨迹相交融;打破传统思维对空间、生活制定的条条框框,让未来的故事在新家里重新生长,最终呈现符合生活逻辑,又独具美学辨识度的空间。
每个人想要的生活都是独特的,私人定制设计,还原每个业主心中的理想家。
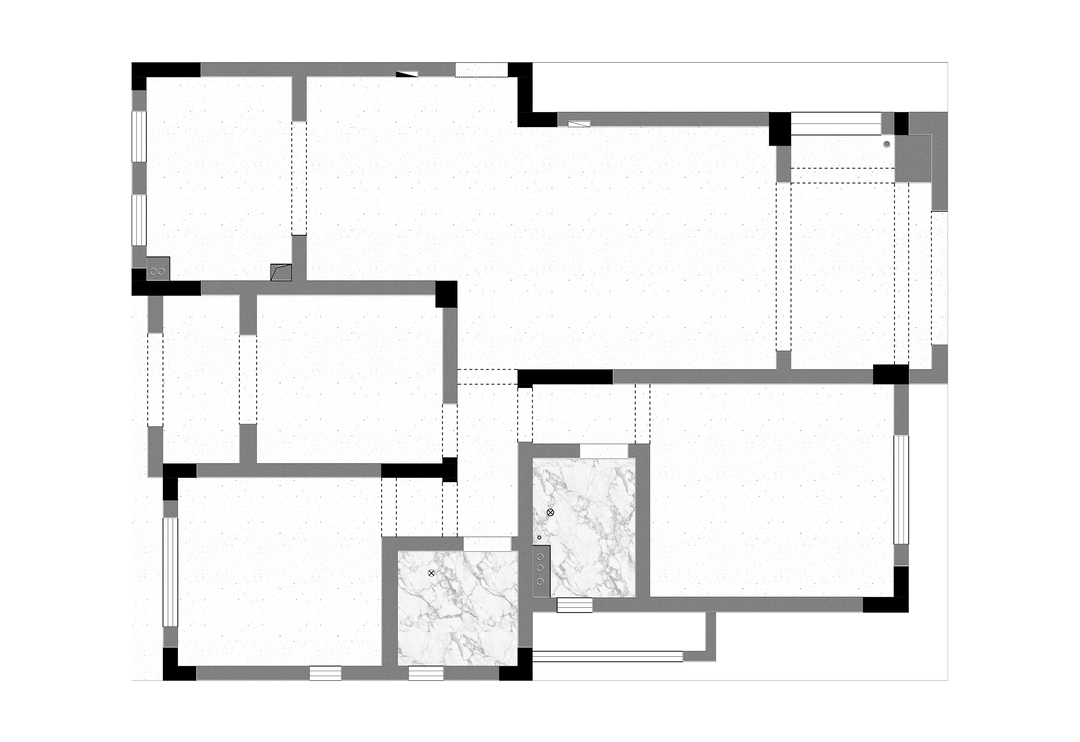
原始户型图&平面方案图
原始户型是三室两厅两卫,业主只需要保留一间主卧一间客房,其余的空间全都可以用来成全家居的舒适度。
拆除一个次卧,扩大整体起居空间;规划LDKB的通透布局,让房屋开阔通透。
客厅与阳台打通,足够开阔的空间给客厅布局更多的选择;沙发围合摆放,成全松弛自在的生活;石膏线简约精致,勾勒空间的线条感;一张斗柜,一幅挂画,每一件器物,都有自己独属的温度。
蜷缩在沙发小憩、在单椅上阅读,享受独处的静谧;理想的家,不过是将每一天的生活过得顺心顺意,自在安稳。
用设计来重新规划生活蓝图,不必堆砌高奢的材质,不必叠加缭乱的配色,一张家具的摆放,一个器物的收藏,一个普通又常见的生活场景,一个关于未来的生活畅想,这便是生活最本真的模样。
餐厨是全屋改动最大的地方,拆除一间卧室扩容空间,将原始的餐厨打通,实现开放式的布局。
重新规划餐厨空间后,定制橱柜丰满空间的收纳力,L型的柜体满足下厨、餐边柜、零食柜收纳,以及嵌入电器完善空间的动线与整洁度;搭配大长桌,满足所有的生活场景。
生活,可以是多姿多彩的;一个人研究美食,享受烹饪的过程,早起煮一杯咖啡,煎一个溏心蛋,打开音响放首蓝调,泡沫在咖啡杯里慢慢浮上来,和窗外的鸟鸣撞了个满怀。偶尔想节省时间,点个自己喜欢的外卖也不错;生活不疾不徐,简单美好。
客厅的双开门通往主卧, 奶油白与水波纹玻璃碰撞出法式的独特浪漫;主卧配色依然延续空间的奶油基调,搭配合适的软装配饰,温柔每一夜的好梦。
次卧是预留的客房,大部分时间都是没有人居住的,所以布局尽量简约处理,一张床,两个床头柜,简单又实用;与院子之间用折叠窗隔断,尽览室外美景。
相关案例推荐
合肥李秀玲设计师
设计师相关作品
编辑精选

粤公网安备 44010602000156号