前言:
									我从不相信
这个世界只有一个世界存在
——王澍
感官,从不局限于一个维度。将视角从具象的容器与元素中脱离,捕捉每一寸表层之下的内质,无所谓东方与西方、经典与现代、简约与奢华,以不受潮流约束的折衷思维,去剖析每一段时间线下隐藏的共性:以一场长期可持续的生活方式,探得生命中真正的优雅与价值。
									
01
“隐于形的诗意”
本案是湖州绿城·翠麓合院的样板房,外部结构以庭院为引,建筑作为主体,汀步连接一方闲亭,构成富有生命力的自然交互场。主建筑向外延伸露台,合理的开窗设计获得别墅应有的大气开阖,也让家和自然之间衍生天然的亲密关系。
 
室内设计的灵感来源于安达仕酒店的顶奢美学概念,提取东西方文化内涵,借设计之由,以西方的仪式秩序为“形”,东方的优雅内敛为“意”,在东西脉络的交界处制造平衡点,打破了线性空间的固有逻辑,缔造一场“隐于形的诗意”,从中感受时光的沉淀与革新。
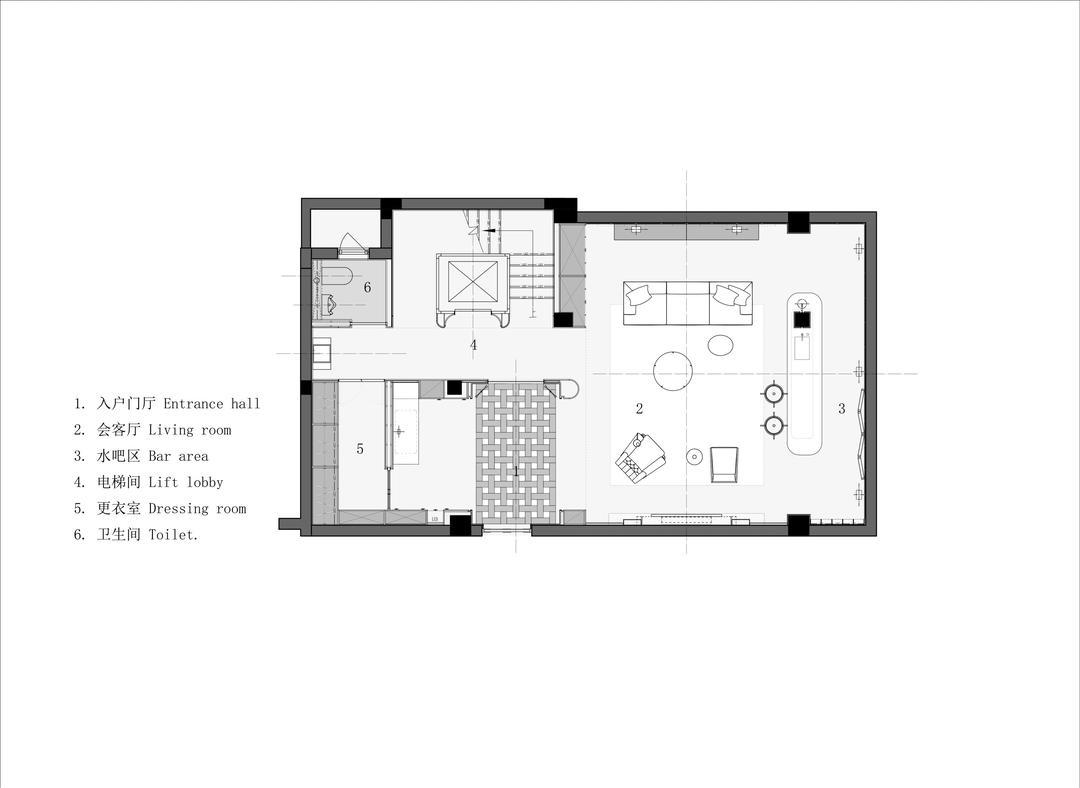
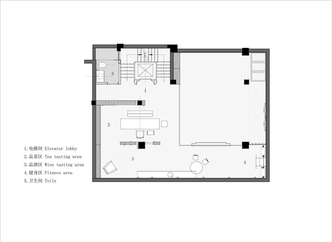
设计师从交流的属性出发,调度更具专属性的空间形态。别墅共为地面三层,地下两层挑空,通过对空间关系、动线布局、层界连接等内容的全面梳理,转承更舒适的生活节奏。地下室集客厅、水吧台等休闲属性,夹层设施健身区、茶室、品酒区,互相连接打造宴客与社交枢纽,借层高优势纵横挑空结构,搭建上下界面的交互与穿透。
地下空间铺展大面积的黑橡木,区别普通单一的材质,沉淀更具质感的暗调,与简白的对冲下带来明暗的层次感。软装搭配古典蓝,复古的红洞石作衬,规划结构与陈列的序然,既有东方古典的韵味又不失现代感,构建新的秩序与美学。
设计将场景的营造从框架落于细节,逐步调节功能性解决方案。吧台区巧妙融合承重柱,引入线形灯随柱体游走、连接、垂落,弱化柱体突兀的存在感,构成一处轻盈灵动的艺术装置,协调了整体感官。
 
侧墙铺展光膜,立面嵌合格栅,掩映于微光之中,视觉上形成明暗相协的层次切面,塑造朗阔秩序。
夹层和地下室共同组成宴客社交的完整链路,同时根据男女主人的生活喜好与需求进行功能分布。为男主人设置专属的品酒区,女主人喜好喝茶健身,各自独享一份舒适。这一分区的调度,同步也为不同性别、喜好的客人们设置恰宜的尺度感,带来舒适的社交体验。
夹层原始层高较矮,通过顶部的镜面反射,配合墙体光束的秩序排布,结构上延展纵深,给予开阔视感。
狭长的廊道贯穿整体场域,动线末端置入洗手台,红色洞石释放出动态的指引力量,在秩序中穿梭,经材质美学微妙叠加,演绎质感芳华的情景剧。
02
现代与写意映照
建筑是关于幸福的,人们希望在一个空间里感觉良好,建筑提供庇护,同时提供舒适。
——扎哈·哈迪德
一层作为日常的主要生活区,打通客餐厨全域布局,增强人与空间的流通互动。客厅混合更多木作元素,通过与庭院的交互汲取自然底色,铺展明亮温暖的基调。引入少量黑橡木,软装家具现代与写意映照,延续了东西方的清雅韵味,回归简约温润的语境,指向一场更明确的情绪关照,完成诗意的链接。
材质作为空间更直观的讯息,构成隐形的感知界面,赋予统一、和谐、多变的交互体验。柚木和红色洞石铺展于同一个视觉切面,相似的色泽之下流动着不同材质、肌理的碰撞,互成逻辑一致的设计语言。
柚木表皮随着时间沉淀,散发更深邃的质感,深入材质本身的纯粹,共和了一场静默的底色。
设计重新界定共享边界,以此完成对环境、区域关系的和谐疏导。为了扩大室内外的连接,将靠近庭院的整个墙面打造成宽阔的落地窗,落座客餐厅可以直接感受到与自然的互动。
 
厨房调度开放式比例,外侧延伸一方吧台,通过落地窗的开合,将环境与室内的关系将转化为更生动的场景体验。庭院开设派对、聚会等活动时,主人在厨房料理食材,宾客围合于餐厅或闲聚于庭院,人与人、人与自然皆能形成亲密的沟通交流,赋予无限意趣。
03
源于内里的生命力
从层界穿梭到结构承转,每一处角落和细微都汇聚了物质本源的生命力,达成与不同空间场的精彩偶遇。复古柚木包裹电梯入口,弧形饰面与黑色光面嵌合,构成极具设计感的结构体。
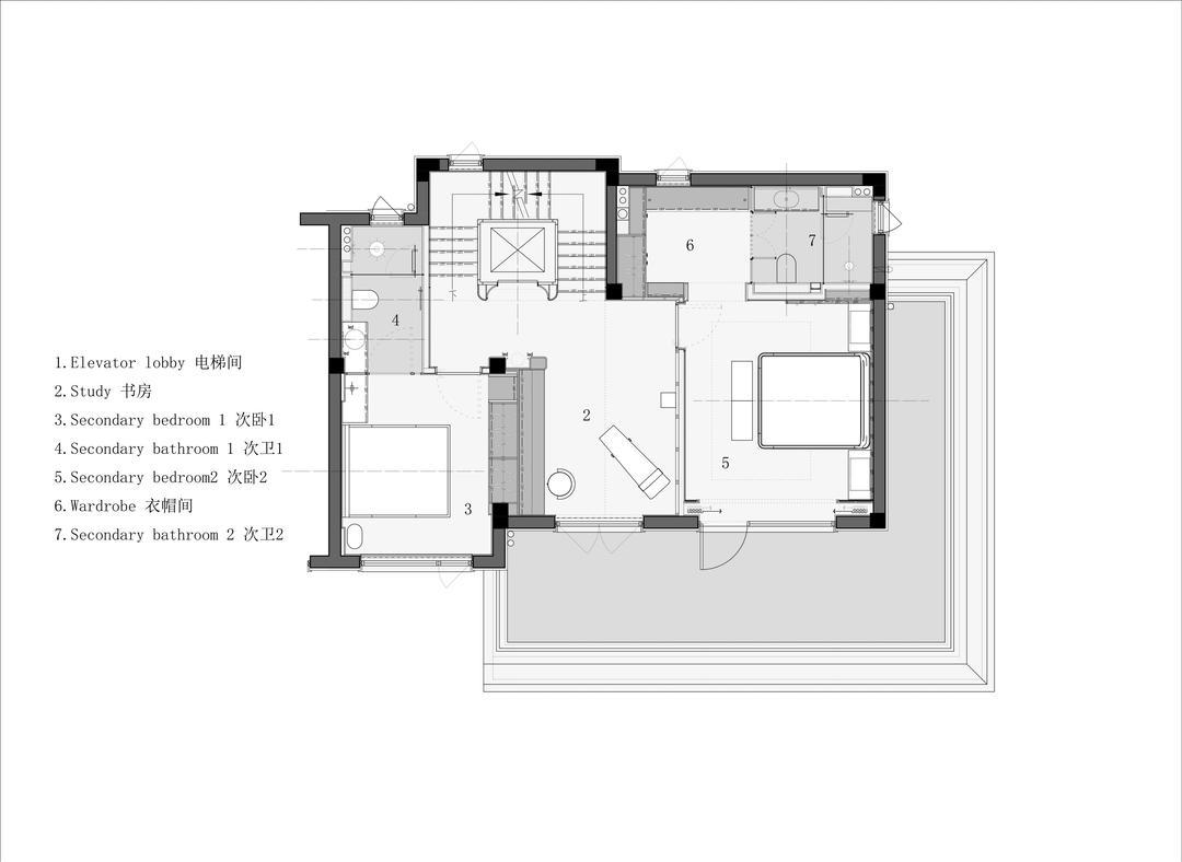
二层独立书房满足家人共享,与次卧形成秩序的洄游递进,打通空间流动性。光线抚触沉稳的内里,牵动了恒久与静止,赋予更深刻的张力。
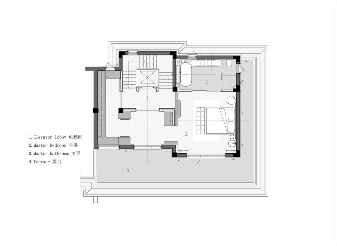
依循界面结构的动静划分,第二层的两间次卧套房皆独享衣帽间和卫生间,充分满足居住的舒适感和隐私性。主卧套房私享第三层整域面积,细节中妥帖关照居住者内心更深处的品质需求。
主卧套房入门通过内厅完成仪式感过渡,衣帽间和入寝区秩序分列两侧,调度宽阔舒宜的空间尺度,营造高雅而具有温度的精致美学空间。
向上纵横的斜顶通过灯带勾勒更清晰的结构感,仿佛悬浮的错落视觉,加深空间层次。炉火深入更浓郁的质感肌理,牵引空间独特的气质与印记,细细品味生活格调。
卫浴采用红黑石材拼接铺展,浓郁了复古质感,在纯白浴缸的灵动轻盈之中,重新定义精致格调,释放浪漫主义的生活态度。
当设计突破审美的惯性表达,便会捕捉到更为韵美的情感体验。次卧大量铺展复古柚木,任由它随着时间、空气、阳光慢慢发生变化,萦绕温厚触感与色泽,慢慢沉淀为岁月的痕迹。
独立卫浴拼接墨绿色方砖,复古氛围中尊享经典质感,优雅再度升级。落日暖光透过玻璃门,与艺术达成共鸣,释放丰富的生活华彩。
相关案例推荐
姜万静
设计师相关作品
 
 
 
												
													
														
															
																 
												
													
														
															
																 
												
													
														
															
																 
												
													
														
															
																 
												
													
														
															
																 
												
													
														
															
																 
												
													
														
															
																 
												
													
														
															
																 
												
													
														
															
																 
												
													
														
															
																 
												
													
														
															
																 
												
													
														
															
																 
												
													
														
															
																 
												
													
														
															
																 
												
													
														
															
																 
												
													
														
															
																 
												
													
														
															
																 
												
													
														
															
																 
												
													
														
															
																 
												
													
														
															
																 
												
													
														
															
																 
												
													
														
															
																 
												
													
														
															
																 
												
													
														
															
																 
												
													
														
															
																 
												
													
														
															
																 
												
													
														
															
																 
												
													
														
															
																 
												
													
														
															
																 
												
													
														
															
																 
												
													
														
															
																 
												
													
														
															
																 
												
													
														
															
																 
												
													
														
															
																 
												
													
														
															
																 
												
													
														
															
																 
												
													
														
															
																 
												
													
														
															
																 
												
													
														
															
																 
												
													
														
															
																 
												
													
														
															
																 
												
													
														
															
																 
												
													
														
															
																 
												
													
														
															
																 
												
													
														
															
																 
												
													
														
															
																 
												
													
														
															
																 
												
													
														
															
																 
												
													
														
															
																 
												
													
														
															
																 
												
													
														
															
																 
												
													
														
															
																 
												
													
														
															
																 
												
													
														
															
																 
												
													
														
															
																 
                                                     
                                                         
                                                     
                                                         
                                                     
                                                         
                                                     
                                                         
                                                     
                                                         
                                                     
											
										 
											 
											 
											 
											 
											 
														 
														 
														 
														 
														 
				 
                
 粤公网安备 44010602000156号
粤公网安备 44010602000156号