前言:
在光影交织中,生活的脉络缓缓浮现。
时间沉入日常,肌理在静默中生长。
每一寸空间,皆因真实而丰盈,因温度而长久。
让设计归于本心,让生活抵达安然。
本案以自然引光为线索,材质肌理为骨架,穿越四层交错的空间界面,在松弛与秩序的呼应中,铺展出一段丰盈而沉静的日常光景。光影与肌理交叠流动,生活在无声中悄然生长。
This residence, shaped by natural light and structured by material layers, spans four interwoven levels, where relaxation and order find quiet balance. Within the silent dialogue of light and matter, life quietly takes root.
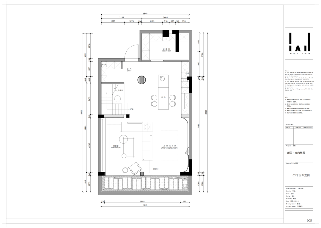
-2F平面布置图
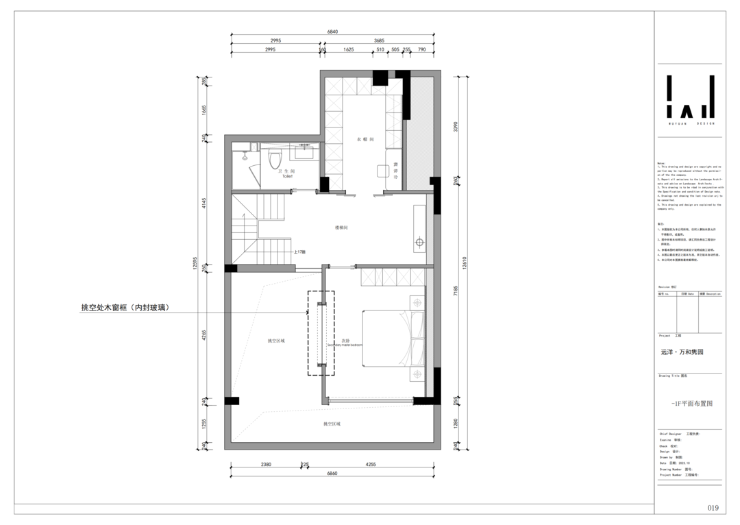
-1F平面布置图
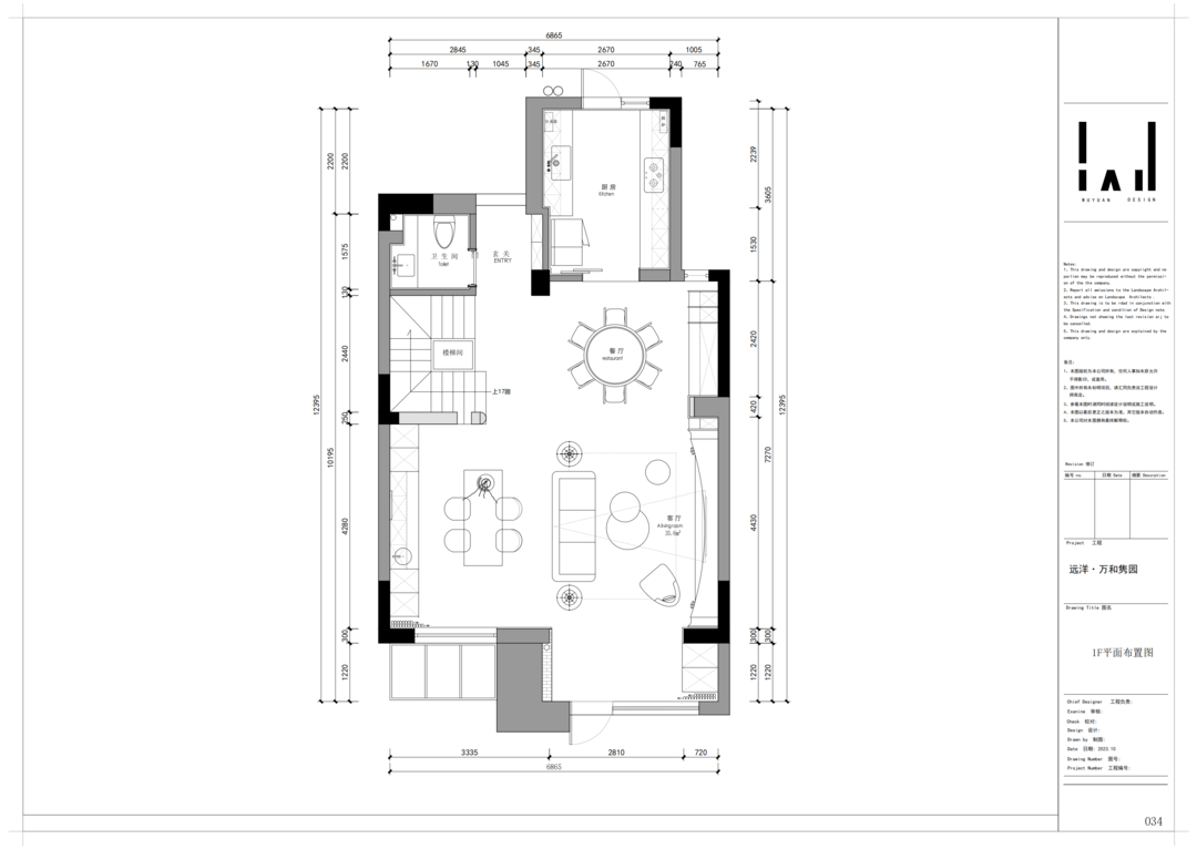
1F平面布置图
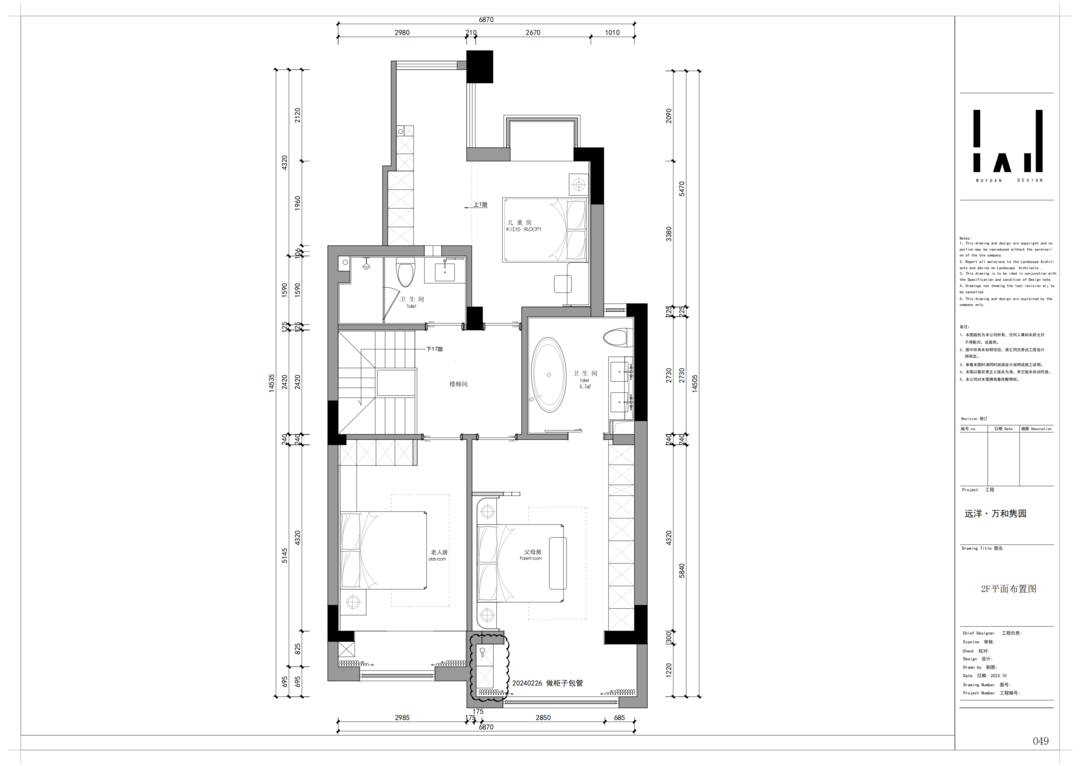
2F平面布置图
在入户动线延伸的地下空间,设计师以冷翡翠石材贯穿水吧及影音区的视觉主线。纹理深远,如同潜藏于地下的暗潮,悄无声息地注入生活的节奏。光线经由层叠穿插,映照在粗粝质感与光泽流动之间,形成一方静默且充满力量感的生活场域。
Extending from the entry sequence, the underground space is defined by Cold Emerald stone, drawing a continuous visual thread through the bar and media area. Its profound textures, like hidden undercurrents, silently infuse the rhythm of daily life. Light filters through layered surfaces, illuminating the interplay between coarse textures and flowing gloss, shaping a space that is both quietly powerful and deeply grounded.
堆叠的灰色石阶串联起四层空间的呼吸节奏,厚重肌理铺展开沉稳有力的行进轨迹。光线在步履之间缓缓下沉与上扬,一盏盏微光垂落,在拾级而上的动线中,时光也在无声中流转。
Stacks of gray stone steps weave together the breathing rhythm across four floors, their textured weight unfolding a steady and grounded path. Light rises and falls with each stride, while small pools of glow descend softly, allowing time to flow quietly along the ascending movement.
在夹层交错的过渡之中,卧室隐匿于柔光与木质肌理之间。倚窗俯瞰天井光影,时间在微光流转中缓缓沉淀,为日常留下一方静默而安定的停泊地。
Amidst the layered transitions, the bedroom is quietly tucked between soft light and the warm grain of wood. Leaning against the window, one gazes into the shifting play of light in the courtyard, where time settles gently, leaving a silent and steady anchorage for daily life.
温润的浅米色墙面与浅灰地砖缓缓铺展,收束出客厅空间轻柔而舒展的节奏。普拉达绿岩板于一隅静默绵延,深色真皮沙发低伏中央,以沉着而有序的线条,在流动的光影中雕刻出家的温度与秩序。
Soft beige walls and light gray stone flooring unfold with a measured calm, shaping a gentle and expansive rhythm for the living space. In one quiet corner, the Prada Green stone stretches in silent continuity, while a deep-toned leather sofa anchors the center, its composed lines carving warmth and order into the shifting light.
金属与石材肌理交错之间,隐隐承载着时间的纹路,克制之下暗藏张力,空间于简净之中凝练出松弛而有厚度的呼吸感。水吧区域顺势延展,浅灰纹理台面与温润木饰面交织呼应,收束出留白的分寸感,让生活在不经意间渗入,光影随步移转,日常的秩序与松弛悄然生长。
Amidst the interplay of metal and stone textures, traces of time are subtly inscribed. Beneath a restrained surface, hidden tensions breathe, giving the space a quiet density and a sense of relaxed depth. The bar area extends naturally along the flow, where light gray veined surfaces meet the warmth of wood, composing a disciplined balance of openness and reserve.
庭院自然融入空间,枝影斑驳之间,光线微微流动,建筑与自然无声对话,让每一次围坐,都与季节的律动悄然交汇。
Beyond, the courtyard weaves seamlessly into the space. Beneath dappled branches, light stirs softly, and in this silent dialogue between architecture and nature, each gathering quietly aligns with the changing rhythms of the seasons.
父母房延续温润基调,米色墙面与浅木地板铺开沉静的气息,硬包床头与玻璃砖细节隐于视线角落,在微光中低调闪烁,叙述着细水长流般的温柔关怀。
The parents' room continues the warm, understated tone, with beige walls and light wood flooring extending a sense of calm throughout the space. The upholstered headboard and discreet glass brick accents nestle quietly into corners of the view, flickering softly in the ambient light, telling a story of enduring and tender care.
窗边留白出一方休憩台,可坐、可读、可思,在光影交错中,生活的节奏缓缓生长,细腻而绵长。
By the window, a reserved alcove offers a place to sit, to read, or to simply reflect. Within the gentle interplay of light and shadow, the rhythms of daily life unfold slowly, delicate and enduring.
相关案例推荐
熹禾筑造
编辑精选

粤公网安备 44010602000156号