前言:
本案是套毛坯房装修的项目,我们根据屋主的生活习惯调整了空间结构,尽可能开放空间布局,在硬朗直线与纯粹平面的碰撞中,在不同材质的混搭中,构建起严谨而丰富,松弛感十足的空间秩序。
在现代摩登气息之中,将现代的简洁与中古的韵味完美融合,让整屋展现出一种不受时间、风格限制的隽永之美。传统与创新交织,古典与现代对话,让家成为一处既能放松身心,又能品味生活的艺术空间。
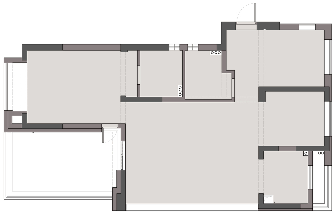
该项目位于义乌市的绣津小区,毛坯房装修,建筑面积111㎡,原户型为3室2厅2卫设计,有一处室外露台。
屋主需求:
1、常住人口为妈妈+女儿;
2、房间上需要主卧+儿童房+学习区;
3、卫生间需要淋浴+浴缸,配置双台盆,还需要洗衣房;
4、风格上喜欢现代复古的混搭风。
我们在布局上进行了如下优化:
1、进门左侧新建墙体,作为独立的女儿房;
2、女儿房与厨房之间的房间作为开放式学习区,放置学习桌,作为孩子平时的活动空间;
3、两个卫生间打通,将洗衣房和卫生间的功能融合,满足了淋浴和泡澡的需求,在两侧都做了开门,女儿和妈妈进出卫生间也更加便利,同时也改善了采光;
4、通过对主卧的墙体改造,增加了一处端景,也使主卧多了一份私密性;
5、露台改造,将一部分面积划入至室内,营造多功能的场景。
玄关处的墙面安装钢琴键的挂钩,黑胡桃的材质尽显原木温润质感,到家后随手把衣物、包包挂起,将收纳美学藏于方寸之间,不挂东西也能成为墙面的一种艺术品。地面放置一款真皮编织换鞋凳,编织的椅面提高了坐感和舒适度,搭配黑胡桃自带的高级感,将自然与中古格调相结合,传达了一种轻松、活泼的氛围。靠墙布置胡桃色的穿衣镜,拱形的柔美线条能够营造出一种复古而优雅的氛围,在进出家门时不自觉地整理自己的仪容,从而提升自信心和心情,大大增加了空间的实用功能。
从玄关进来,就能感受到视觉的延伸,与开放的公区保留了一定的距离。既可以看到硬装上的纯粹与亲近,又可以感受到突破常规的软装搭配。
客餐厅紧邻大面积的窗户,塑造空间尺度感与呼吸感,搭配时尚美观的百叶帘,光影倾泻为室内镀上一层温柔滤镜,使客厅空间又多了一份柔和治愈,给人以安静和谐的感受。角落处的支架电视,以其灵活轻便的设计,满足了不同的观看需求。将经典的黑色皮沙发、米棕色羊毛地毯、岩板小几和纤细的落地灯进行搭配组合,复古和现代主义交织的质感混搭,刚柔并济,感受物品与材质对于情绪的牵动,满满的惬意感。
客厅与露台之间通过玻璃推拉门分隔,延伸了空间的通透感,自然光线与空气自在流通,进一步提升了客厅的采光。引景入室,增强了室内外互动,为客厅增添了一份趣味。
客厅一侧布置开放式格子柜+藤编柜的组合,放置书籍、饰品和茶具再适合不过,储物形式轻松随性,装满着他们对生活的热爱,功能性和情绪感都在这里得到释放,藤编元素还为家居环境增添了一种自然、质朴的气息。萌趣的小马椅作为陪伴孩子的大玩具,布置在此处有助于促进亲子间的互动和沟通,可以为客厅增添一抹活泼和童趣的气息,还能让家庭环境更加温馨和舒适。
客厅大面积留白,将空间释放出来,动线自由灵活。空间在布局上保证着开敞明亮以及视觉交流的通畅性,“一镜到底”的公区毫无保留地彰显着它的温馨干净和深邃柔和,增强各个功能区之间交互性的同时,自由的动线让居者可以在家中释放自我,享受空间带来的舒适与惬意。
美的定格,不仅体现在视觉层面,更是深入生活之中的细枝末节。绿植的装点,让室内释放出跳跃与多姿的形态魅力。映入眼帘的复古玻璃门,成为公区与卧室的动静区分界线,白色木质+格纹玻璃的搭配,自带温暖柔和气息,线条与弧形曲线的交织勾勒出一丝浪漫画卷。
简洁干净的大平顶完美拉升层高,在视觉上极大的放大了空间,结合大片的留白与无主灯设计,细节与整体之间的相互结合,简单又不缺精致感,勾勒出轻松惬意的生活美学。
岩板与木质相结合的岛台+餐桌一体化设计,不仅美观大方,而且实用性强,兼顾操作与收纳储物需求。材质上通过白色岩板、胡桃色木质餐桌、绳编餐椅和藤编条凳的组合搭配,平衡了整体的色彩温度,在视觉上形成了丰富的层次感,创造出一种现代与自然相结合的温馨氛围。岛台侧面做了轨道插座,日常聚餐、火锅、烤肉,以及偶尔办公都很方便。白色的玻璃折叠门作为餐厅与厨房之间的隔断,让厨房既可以开放又能独立,不仅能让功能区的划分更加灵活,也让夹杂着油盐酱醋的日常变得温馨美好。
开放式的格局,节省空间的同时也在视觉上放大了整屋,在屋内形成洄游动线,使空间营造的生活场景拥有无限的想象,抬头就可以与家人交谈,或看书或观景,孩子在游戏玩耍。
通铺浅色的鱼骨拼地板,不仅有一种“放大”空间的作用,也在一定程度上增强了空间的交互性,清新、柔软又治愈,让居家的时光顺着时间的纹理缓缓趋于平静。
冰箱
现代
玻璃移门
混搭
油烟机
瓷砖
橱柜
厨房
嵌入式家电
原木
“U”型的经典布局将厨房空间合理利用,白色系+胡桃色组合的橱柜,形成了鲜明的视觉层次,营造出一种复古与现代结合的混搭美感。地面花砖的点缀,为厨房增添了独特的装饰性和美感,提升烹饪心情与仪式感。
学习区打破传统的闭合形式,巧妙优化,打造开放式多元交互的空间。墙面上沿通过弧度的处理,使相邻的墙面之间实现自然过渡,让空间看起来更加柔和、舒适。紧邻一面大开窗,在通透光线的渲染下,淡淡的暖调中透着温馨,创造出一个更加自然、舒适的学习环境。定制满墙书柜,增加收纳空间,木色的沉稳与白色的明亮相互映衬,在视觉上拓宽空间,波浪纹、藤编、胡桃木不锈钢拉手的加入使整体看起来更加生动、有趣,还为家居空间增添了一份独特的魅力和韵味。
露台通过改造,由室内和室外部分组成,既满足了休憩、阅读的功能,又融入小面积的庭院景观,饭后闲暇之时可以坐在此处看看风景、喝喝茶,享受惬意时光。图案丰富的花砖,增添了独特的视觉效果,营造出复古温馨的空间魅力。浓郁时尚的多功能柜,棕色的木质折叠椅,藤编的屏风、沙发椅和茶几组,这些搭配不仅美观耐用,还能让屋主感受到大自然的气息,增加露台的舒适度和亲近感,享受美好的休闲时光。
将自然的律动巧妙融入空间,绿意不再是装饰,更是一种鲜活向上的生活状态与放松的载体。
将自然的律动巧妙融入空间,绿意不再是装饰,更是一种鲜活向上的生活状态与放松的载体。
在这里,家人可以围坐在一起,泡茶、聊天,享受家庭的温暖和欢乐。一方露台,从容自在,喝茶静心,只生欢喜。
相关案例推荐
可米设计
设计师相关作品

粤公网安备 44010602000156号