前言: 本案在以现代为基底的空间中融入复古元素,带来赏心悦目的精致格调。清雅复古的绿,与现代家居的碰撞,为空间注入活力,传递了一种无法抗拒的优雅与质感。
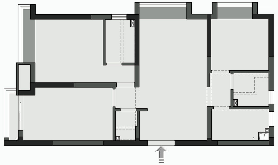
该项目位于南京市鼓楼建宁路的龙湖春江紫宸,建筑面积106㎡,户型为3室2厅2卫,双卧朝南,整个空间采光很好。
屋主需求:
1.夫妻2人常住,需要主卧+次卧+儿童房,父母偶尔过来短住
2.卫生间保留两个,希望有衣帽间,储物空间尽可能的多一些
3.整体风格上喜欢有色彩的些许变化
我们在布局上进行了如下优化:
1.厨房的进门位置改到了南边,原来的进门位置新砌墙体,向西移出一个冰箱的空间,客厅与次卫过道之间墙体拆除
2.衣帽间与儿童房之间的墙体向南平移,增加了衣帽间的储物空间
3.主卧与客厅之间的墙体拆除,分别定制了储物柜和电视柜
4.主卧与儿童房之间的墙体,向南平移,与衣帽间、主卫的墙体在一条动线上,主卧的进门改至北侧
进入屋内首先来到的是餐厅,这里不仅是一个进食的空间,更是爱与关怀传递的所在,吃饭的氛围代表着一个家的氛围。留白的墙面搭配一幅小巧的复古装饰画,升华空间的格调。
几何状的吊灯,简约的线条设计,提升了空间的层次感。餐桌铺上一块米白色的桌布,用柔和亮丽的色彩营造温暖的氛围,正如简单、丰盈、美好的生活时光。
餐厅搭配了一款黑白波浪纹餐边柜,复古摩登,提亮整个空间。墙上的收纳系统,简单直接的收纳方式,利用每寸空间,美貌和实用结合。
客餐厅在主色调上一致,保证了空间和视觉的和谐统一,使得两个功能区又保持了独立性,黑白图案地毯增加了不少亮点 。
客厅空间以白色和绿色为主调,适当加入一点点灰色系,阳光洒进房间,温暖与自然的感觉,营造出现代复古的氛围。
在沙发的选择上,我们选购了一款绿色的丝绒沙发,造型简约大方,色彩给空间带来几分生机。在局部墙面做了线条处理,使空间更具立体感和层次感。
墙面上搭配了一款ins风的镜子,50*80的尺寸,带来一种空间延伸的视觉效果以及简约的气质表现。
烟灰色玻璃+白色柱脚的茶几,为空间营造通透感,也为家居空间增添了质感。午后的罗曼蒂克,电影般柔情的家,将小心思放在每一个角落。
闲暇时,在客厅点上一罐香薰蜡烛,使得空气都变得细致温柔起来,让人感到安静、温暖。
地面铺上一块黑白两色的地毯,带来美观的同时又为居室空间透露出些许温馨。电视背景墙采用嵌入式的,通过一个内凹的造型,把电视机嵌入进去,和整个平面齐平;整面墙定制了白色的柜子,收纳能力不可小觑。
客厅原本的飘窗台拆除,定制了白色地柜和飘窗垫,增加收纳的同时又为家中增添了一处闲暇与休闲。窗户安装了竖百叶窗帘,有利于遮挡从两侧斜射的光线,整齐划一的效果、丰富的线条设计更为室内增色不少,使得空间更富立体感。
立体式设计的落地灯,凸显有层次的柔美感,美而优雅。一款软萌Q弹的小鹿椅,营造温润惬意的休闲一角。
主卧的床头背景墙采用白色与绿色的撞色设计,简约、干净的白色碰撞上诗情画意的绿色,低调的色彩搭配,酝酿出复古雅致的格调。藤与木质结合的双人床,融入了现代、自然的设计感,营造出安静舒适的味道。
床边搭配上一款黑色的边几,经典的造型简约灵动,为家居空间增添了许多格调。
主卧一侧定制了一排白色的衣柜,增加储物的同时又展现出时尚柔美的一面,简单又充满生活感。
次卧延续了白色的主色调,作为父母的居住空间,整体显得平静又美妙。购置了一款黑色铁艺床,轻巧有质感,简洁优雅。
床头背景墙上的极简挂画,也与风格不谋而合,为居室增添了艺术气息。水晶般通透的床头柜,给人一种干净清爽的感觉。
相关案例推荐
可米设计
设计师相关作品

粤公网安备 44010602000156号