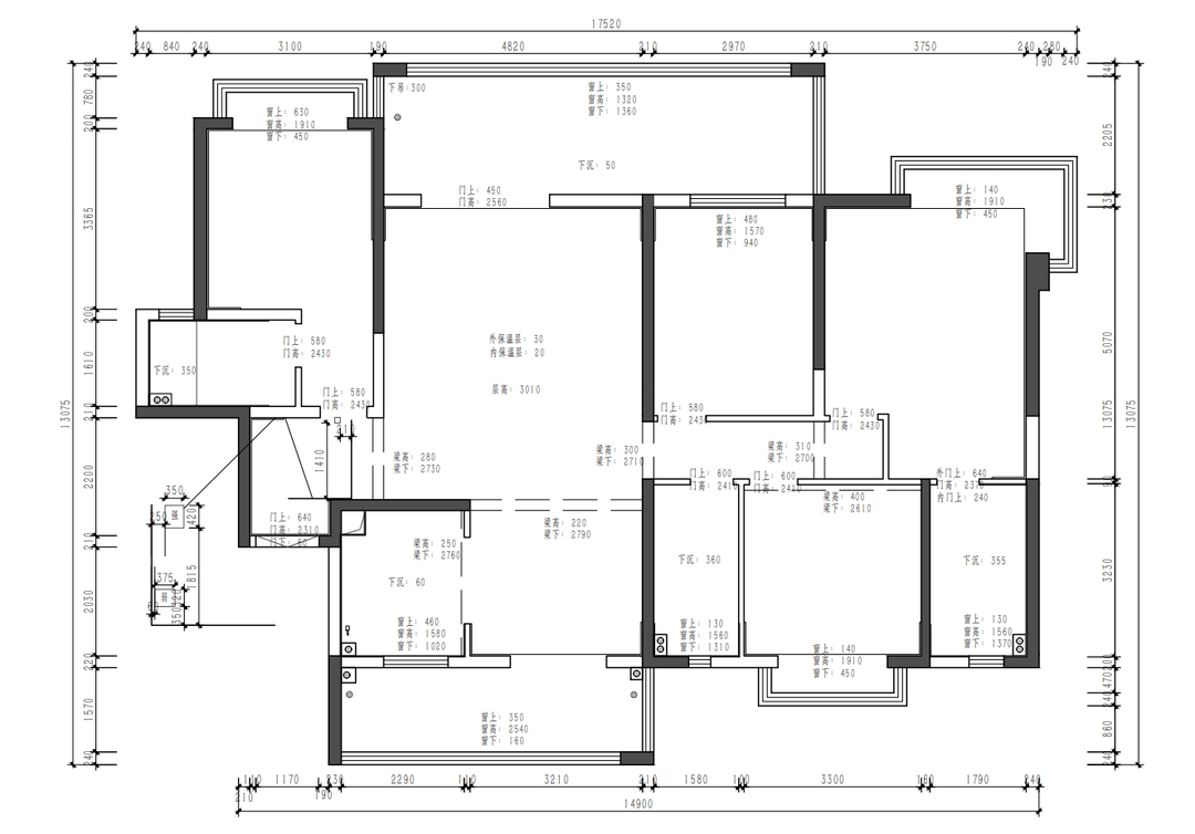
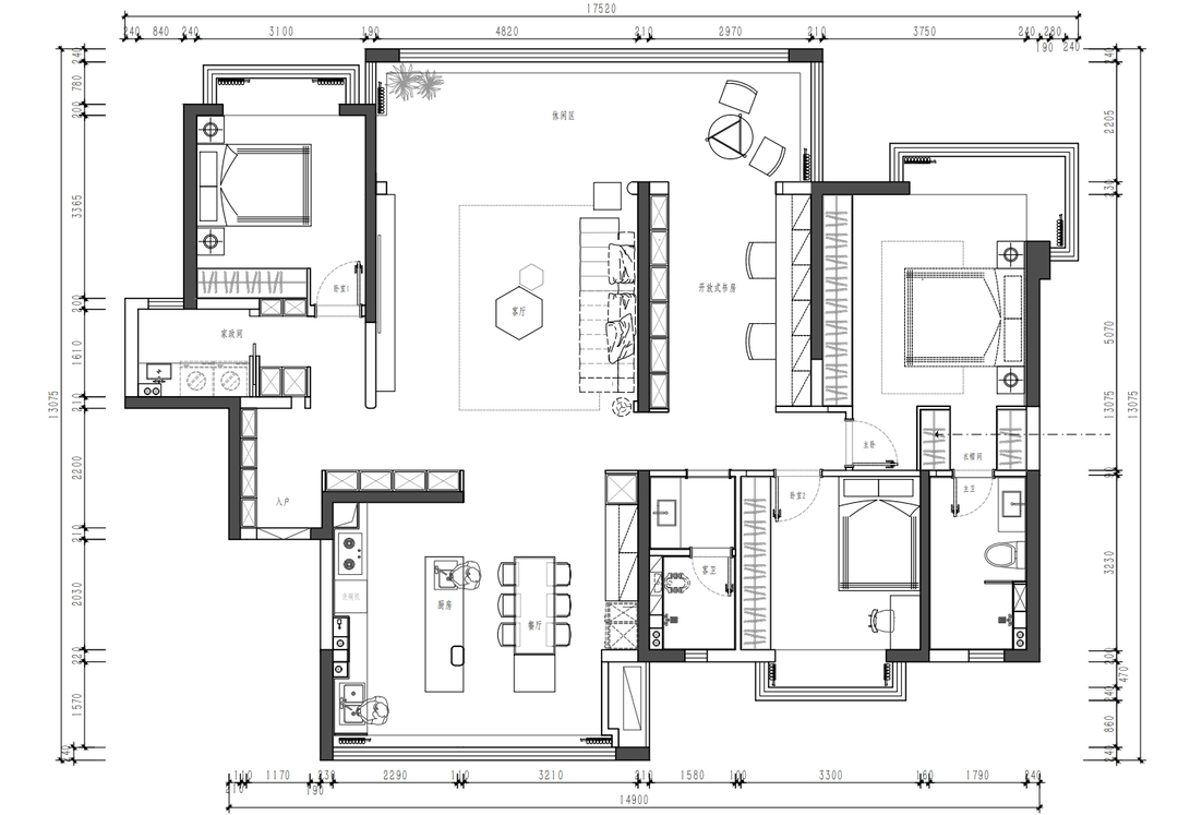
前言: 原始户型是四室两厅三卫,三卧室加一书房,其中书房和厨房空间比较局促。。180的房子我们考虑的是尽量做出大平层的感觉,经过深入沟通后,把书房和厨餐厅及晾晒阳台全部打通和客厅做成环绕动线,这样处理有几点优势,1客厅,厨餐厅,书房空间增大了,2小孩子的活动空间变大,3动静区域区分开来,家庭成员的活动更加密集,原本的晾晒阳台打通后并入厨餐厅使用,景观阳台为是客厅及书房观景使用,所以把客房的卫生间改造成独立的晾晒区,并做了内嵌的口袋门,即美观又保证了隐私。
玄关
进门处增加了一组鞋柜和玄关背景,玄关设计通过狭长窗动切割空间,呼应了诧寂风的内核,强化了视觉纵深感。
入户处的右手边,用水泥构件隔断了客厅与晾晒区,既不影响采光,又具有很强的立体装饰作用,可以增加空间的层次感,让整体空间呈现出的质朴,原始的效果。
厨房
厨房和餐厅中间做了组水吧台,即可供厨房使用,下面的柜体做了嵌入式烘烤箱,能满足烘焙的需求,也能作为传菜台使用,视野范围大大扩大。
厨房上方的梁考虑全部吊顶会降低层高,与客厅高度不一致,所以只吊顶局部,并增加了假立柱形成独特的自然结构。
相关案例推荐
网友评论
哲居设计
设计师相关作品

粤公网安备 44010602000156号