前言:
									屋主日常钟情于听音乐,弹钢琴,网球。屋主衣服大多是冷色,但是家里还是更偏向暖色,温暖干净简单的色调。
推开家门的瞬间,米白色羊羔绒沙发像一团云朵般 inviting,赤脚踩在同色系棉麻地毯上,触觉与视觉的双重温柔瞬间抚平疲惫。
墙面选用燕麦色打底,搭配琥珀色单人椅,既保留冷感爱好者的审美基调,又通过低饱和度暖调营造出恰到好处的温馨感。角落的绿植悄悄生长,让自然气息渗透每个生活场景。
当夜幕降临,暖光从顶面倾泻而下,窝在沙发里听黑胶唱片,空间里流动的不止是音乐,更是被精心设计的生活仪式感。这种 "外冷内热" 的空间哲学,让日常每个平凡时刻都充满电影般的氛围感。
									
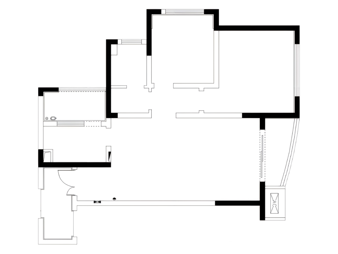
原始结构分析
Original structural analysis
①?布局较为紧凑:从玄关进来,餐厅挨着厨房,做好饭能直接端上桌,日常操作方便。
②?采光不均衡:部分区域采光可能不足。
③?过道空间浪费:通往卧室的过道没有实际功能,无法有效利用,相当于浪费了一部分室内面积。
平面布局规划
Layout Planning
①?LDK一体化:将厨房优化为开放空间,使得公共空间开阔,日常起居活动方便,家庭聚会或朋友来访也不局促。
② 多功能走廊:布局优化卧室书房空间,让走廊尺寸适中,重新规划的隔墙打造为电视墙+洗漱台+家政区域。
③?可变书房:独立书房可办公学习或改客房,满足不同需求。
④ 卫浴优化:将卫生间合并,规划淋浴、浴缸、马桶需求,丰富卫生间的体验感。
相关案例推荐
 
							成都拾光悠然设计
设计师相关作品
 
 
 编辑精选
编辑精选 
												
													
														
															
																 
												
													
														
															
																 
												
													
														
															
																 
												
													
														
															
																 
												
													
														
															
																 
												
													
														
															
																 
												
													
														
															
																 
												
													
														
															
																 
												
													
														
															
																 
												
													
														
															
																 
												
													
														
															
																 
												
													
														
															
																 
												
													
														
															
																 
												
													
														
															
																 
												
													
														
															
																 
												
													
														
															
																 
												
													
														
															
																 
												
													
														
															
																 
												
													
														
															
																 
												
													
														
															
																 
												
													
														
															
																 
												
													
														
															
																 
												
													
														
															
																 
												
													
														
															
																 
												
													
														
															
																 
												
													
														
															
																 
												
													
														
															
																 
												
													
														
															
																 
                                                     
                                                         
                                                     
                                                         
                                                     
                                                         
                                                     
                                                         
                                                     
                                                         
                                                     
											
											
										 
											 
											 
											 
											 
											 
														 
														 
														 
														 
														 
				 
                
 粤公网安备 44010602000156号
粤公网安备 44010602000156号