前言:
11月的一个阴天,我们完成了这套南洋风作品的拍摄。当冬天的干冷一点点剥去这座城市的绿色时,步入这个家,藤编、细腻的木质、这里那里新鲜活泼的绿色,南洋那股子馥郁生动的自然气息依旧浓郁。
项目地址 | 芜湖安展莲台
设计团队 | 研己设计
合作模式 |设计+半包施工
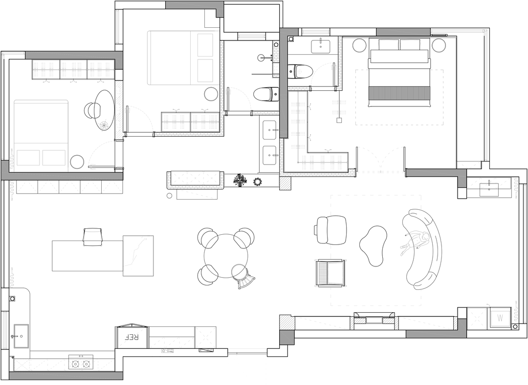
建筑面积 | 160㎡ 3室2厅
项目类型 | 平层
玄关功能整理到门外单独的过道,进门便是餐厅。?我们重新规划了客卫,扩充空间,做双台盆盥洗区,新建墙体,卫生间这面放了一组柜体,餐厅这面做了猫爬架,留出空隙做绿植区,带来空间的错落层次感。
橱柜以外,餐厨还有两组柜体,一组柜子做水吧台,将冰箱、直饮机等电器集中到这里。木框包裹,几面柜门跳色,简洁有趣。
厨房用带有中古感的骨骼线橱柜搭配干净简约的小白砖,清新感迎面而来。
从事服装设计的屋主需要居家工作区,我们在厨房做了一个岛台餐桌,宽大的桌面足以铺展开各种资料,背面做了开放式书架,利用壁纸增添自然意趣。?两只有了年纪的小型犬,小窝直接放在柜子底层,屋主工作时也能照看。
对于软装爱好者来说,南洋风绝对是一种可以让人尽情发挥的风格。两个带有梁托造型的门洞,恰到好处的石膏线与灯盘点缀,有质感的硬装能为软装留出更多发挥空间。
说起南洋风,离不开藤编家具、热带植物,低饱和度的绿色,以及一些中国风元素的点缀。比如壁炉处的唐风壁纸、壁龛背景的绿色小花砖和藤编柜体。两道壁龛,柜体造型、吊顶……空间中柔软的弧形如同植物伸展开的叶片,有一种自然的亲昵感。
阳台内包,一边做洗衣区,一边用定制柜体放下洗烘套装和杂物,圆洞处是猫咪的入口,因为里面还藏着一个猫咪活动区。
我们更改了主卧入口位置,做双开门。南洋风中,搭配进深色木质,突出木材本身的沉稳和馥郁调性,门洞与门扇中的弧形曲线营造慵懒随性之美。
床头用大幅唐风壁纸搭配丰富的软装,营造休闲的南洋氛围。软装适当加入黑色,起到平衡作用,增强视觉冲击的同时让空间更为和谐。
调整主卫布局,利用转角空间设计柜体,增加储物空间。一根黑色挂杆做个明亮又方便的次净衣区。
小空间用鲜明的绿与黄碰撞出“多巴胺”的愉悦氛围。
墙面线条与圆形孔洞造型,用简洁的造型带来秩序感。
相关案例推荐
研己设计
设计师相关作品
编辑精选

粤公网安备 44010602000156号