前言:
									居住成员为非常注重隐私和边界感的夫妇二人及一只极度胆小认生的法斗。于是从买房到装修改造,如何处理动线,实现自己和长辈居住空间的分离,契合狗子的习性,一直是重中之重。
为此,我们对格局进行了大刀阔斧的改造,并为不同空间定制了多达10种不同形式的门,以满足不同空间可以在独立和互通间自由切换。我们希望在简单的美观实用之上,弱化空间边界,强化人际边界,构建更加有秩序感和舒适性的空间。
									
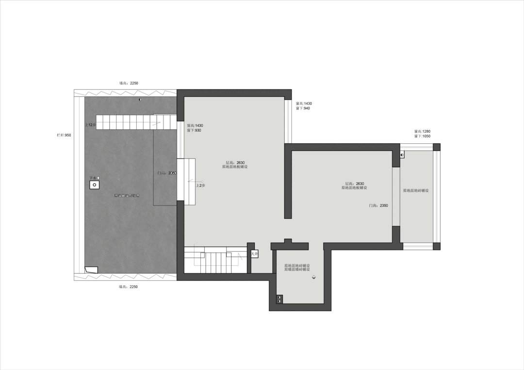
这是一套顶楼复式户型,一楼需要至少预留一间卧室满足长辈常来住的需求,和一间多功能房满足亲朋的偶住需求。
首先,将家中采光视野最好的南卧改成客厅,并和原本的客餐厅区域打通,最大限度的拓宽公共空间尺度。厨房从封闭空间解放出来,和餐厅结合,客餐厨联动的形式延展了视觉通透性,赋予了新的活力和流动感。
其次,将原本的厨房空间改造成多功能房,提高空间的有效利用率。卫生间的布局也重新调整,干湿分离的形式不仅更方便,还让整个动线更加流畅,并增进了南北光线流动。
创建一个专属于两个人的小天地,哪怕有长辈和亲朋来访时也可以各自自在、互不打扰是屋主的首要诉求。于是我们把整个二楼改造成一间带有书房、起居室、衣帽间、卫生间、卧室的大套房,并增加了一间阳光房作为家政间。完备的功能配置不仅是为了代际生活间的分离,也是为了宠物隔离考虑。
首先新增一条直接通往露台的动线,避免需要经过起居室才能去到露台;其次,调整卫生间位置和布局,从狭小局促的暗卫变身分区明确有序的三分离形式,在此基础上增加了浴缸和衣帽间,也方便放下狗狗便盆。
紧邻楼梯和卧室门洞,改造前玄关区域的收纳一直是个难题。下沉式设计,材质上和楼梯踏步结合,不仅界定了空间,阻绝灰尘,视觉上也更和谐统一。
玄关收纳囊括三个部分:
1、触手可及的矮柜,定制成双面开启形式,一面朝入户门放日常换下来的鞋,一面朝室内放干净的家居拖鞋,污净分离。台面还能随手置物。
2、旁边的高柜,是客厅和玄关的共享储物空间,补充玄关收纳还可挂放次净衣。
3、楼梯下的空间设计成小型储物间,可以放推车、行李箱之类杂物。
比轻法式还要更轻更简洁,是屋主在设计之初对风格定位提出的诉求。整体以浅色打底,加入清淡的原木色调和空间气氛,柔和的曲线烘托风格,柔化空间意境。
一重弧形画框,让直愣愣的垭口多了些温柔与和谐,将四季流转和日常生活场景定格成记忆中的温暖留念。
电视背景墙简化,大理石纹地台和玄关呼应,与阳台柜穿插处理,将阳台墙垛隐藏的同时延伸视觉,将阳台也纳入室内。
悬浮开放展示柜增加轻盈感,柔软没固定形状的沙发让家的氛围更加松弛自由。
												 沙发墙
															
														
															
																绿植
															
														
															
																地毯
															
														
															
																装饰画
															
														
															
																客厅
															
														
															
																沙发
															
														
															
																饰品
															
														
															
																瓷砖
															
														
															
																电视墙
															
														
															
																电视柜
															
														
															
																原木
												
													
														
															
																沙发墙
															
														
															
																绿植
															
														
															
																地毯
															
														
															
																装饰画
															
														
															
																客厅
															
														
															
																沙发
															
														
															
																饰品
															
														
															
																瓷砖
															
														
															
																电视墙
															
														
															
																电视柜
															
														
															
																原木
															
														
													
												
											
二楼有露台,并设置了洗衣房,但客厅阳台同样配备了洗衣晾晒功能,长辈居住时不用再特意跑到二楼洗晒。
这也是让二者生活动线彼此分离的一部分。
												 玻璃移门
															
														
															
																置物架
															
														
															
																油烟机
															
														
															
																橱柜
															
														
															
																瓷砖
															
														
															
																厨房
															
														
															
																嵌入式家电
															
														
															
																壁柜
															
														
															
																开放式厨房
															
														
															
																原木
												
													
														
															
																玻璃移门
															
														
															
																置物架
															
														
															
																油烟机
															
														
															
																橱柜
															
														
															
																瓷砖
															
														
															
																厨房
															
														
															
																嵌入式家电
															
														
															
																壁柜
															
														
															
																开放式厨房
															
														
															
																原木
															
														
													
												
											
餐厨的联动是让家变得宽敞明亮的又一秘诀。改造后的厨房收获了更大的操作空间和充足的储物空间,使用体验直线升级。同时增加了中岛,丰富功能和层次感。
												 冰箱
															
														
															
																餐椅
															
														
															
																绿植
															
														
															
																餐厅
															
														
															
																餐桌
															
														
															
																灯具
															
														
															
																餐边柜
															
														
															
																橱柜
															
														
															
																瓷砖
															
														
															
																原木
												
													
														
															
																冰箱
															
														
															
																餐椅
															
														
															
																绿植
															
														
															
																餐厅
															
														
															
																餐桌
															
														
															
																灯具
															
														
															
																餐边柜
															
														
															
																橱柜
															
														
															
																瓷砖
															
														
															
																原木
															
														
													
												
											
值得一提的是,为了能够满足开放和封闭厨房的任意切换,我们有意没有做成餐岛一体形式,而是采用成品餐桌。岛台下方可以双面利用,一边是储物柜,一边留空用来放小推车,用来放刚买回来的蔬菜或者吃火锅时用再方便不过!水槽设置在面窗一侧,并特意将台面加高与窗下齐平,是为了能够更好的契合男主人的身高。
所谓个性定制,绝不仅仅体现在大的风格、功能分区上,很多时候在一些诸如尺寸、收纳规划等细节的拿捏上也不能墨守成规,而是需要根据惯用者的身高、使用习惯等进行调整,才能做到真正的合适、实用。
楼梯上来直接区分两条动线,一条通往露台,一条通往起居室。推门步入起居室,专属于二人的自在天地映入眼帘。
沙发居中摆放,背靠一张大书桌,可以办公、玩游戏。一整面柜子放满了收藏的书籍、手办。水吧台下面藏了一台mini冰箱,兴致来了可以随时小酌一杯
起居室和露台之间局部抬高,巧妙的增加了一个静谧的休闲观景角落,并顺势解决了和露台之间的高度差问题。两扇可以完全180°打开的大玻璃开门,最大限度的将室内外链接起来,让人自然而然的放松下来。
原本局促无采光的卫生间区域,改造成步入式衣帽间,两扇柜门将一切凌乱隐藏。卧室房门采用口袋门,可以完全收在柜体之间,观感更加统一、整洁。卫生间环绕动线设计,既可以从主卧进入,也可以从起居室直接进入,动线灵活流畅。
卧室和卫生间之间采用吊轨移门,节省开门空间,避免卫生死角。因为狗子特别怕生胆小,一旦听到有人上下楼或者其他动静,就容易受惊狂叫。因此一般就让它待在主卧,避免人宠之间互相干扰。平时没人在家,主卧门关上,把这个门打开,方便它可以自由进出浴室上厕所,也不用担心它跑出去。
相关案例推荐
 
							上海直白设计
设计师相关作品
 
 
 编辑精选
编辑精选 
												
													
														
															
																 
												
													
														
															
																 
												
													
														
															
																 
												
													
														
															
																 
												
													
														
															
																 
												
													
														
															
																 
												
													
														
															
																 
												
													
														
															
																 
												
													
														
															
																 
												
													
														
															
																 
												
													
														
															
																 
												
													
														
															
																 
												
													
														
															
																 
												
													
														
															
																 
												
													
														
															
																 
												
													
														
															
																 
												
													
														
															
																 
												
													
														
															
																 
												
													
														
															
																 
												
													
														
															
																 
												
													
														
															
																 
												
													
														
															
																 
												
													
														
															
																 
												
													
														
															
																 
												
													
														
															
																 
												
													
														
															
																 
												
													
														
															
																 
                                                     
                                                         
                                                     
                                                     
                                                         
                                                     
                                                     
                                                         
                                                     
                                                         
											
										 
											 
											 
											 
											 
											 
														 
														 
														 
														 
														 
				 
                
 粤公网安备 44010602000156号
粤公网安备 44010602000156号