前言:
									这是我们老客户的第好几套房子了,从平层、复式到别墅,我们是见证了家里换房速度的,所以再次合作,十分默契。
两个孩子、男女业主、父母同住,这是三代同堂的家,上二下二共600平米,业主希望能够实现想要的专业影音室、和每个成员单独不同的功能室,虽然是豪宅,但是不要豪气,清爽、有品质,更是定义为传承之所。
									
负一层平面布局图
客厅并不在传统布局上的一层空间,而是在负一层,我们根据家里的户型结构、功能需求做了下沉式庭院设计,结合室外空间,负一层成为了家中的正式客厅。
客厅、书房、客卧、西厨、最大的家政间都分布在负一层。
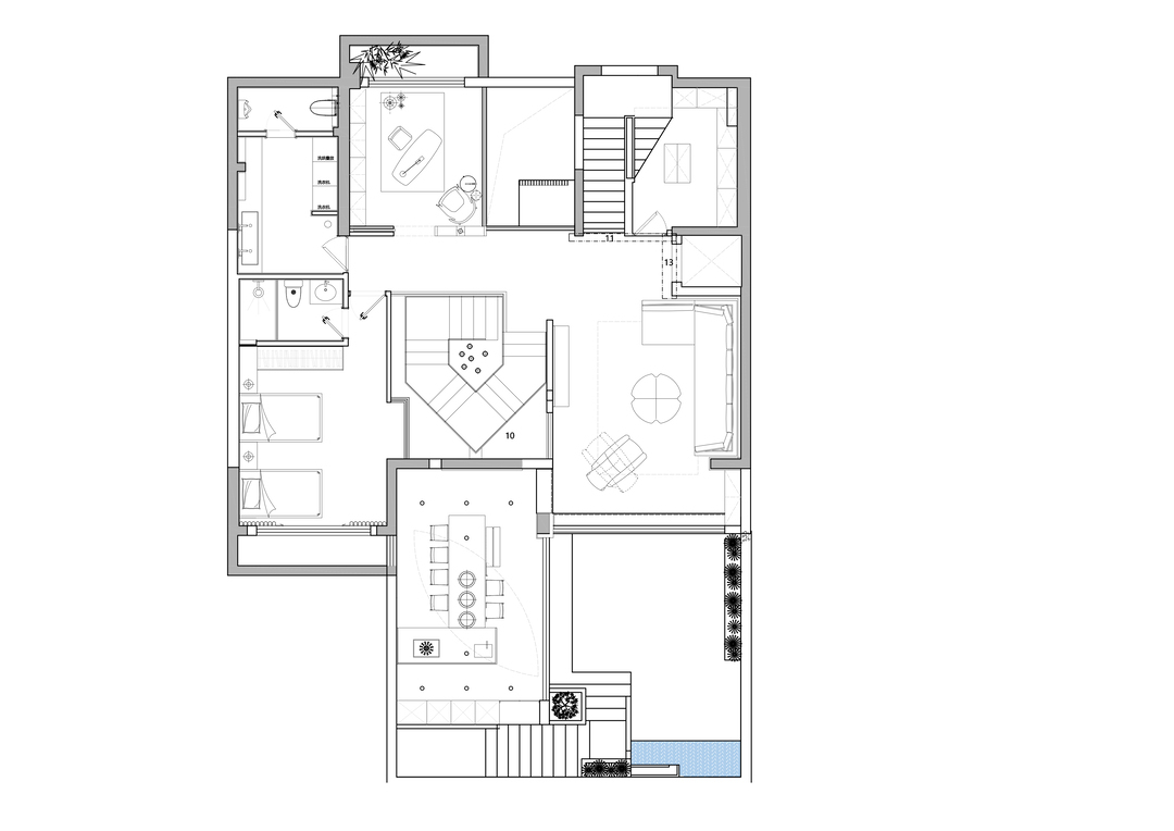
负二层平面布局图
车库是直通负二,所以有家中的第二个玄关、专业级影音室、健身房、设备间、棋牌室、家中第二个客厅也都在负二。
这个空间的定义就是女业主健身、男业主观影、父母打牌的综合区域。
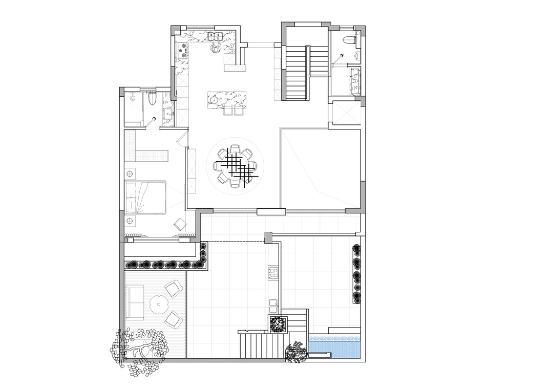
一层平面布局图
原本的客厅空间,我们设计为了更大的餐厨区,整个一层空间都是围绕就餐烹饪,老人房和阳台都在这个区域,更方便使用,特别是对于三代同堂来说,就餐氛围是家庭感体现最重要的空间。
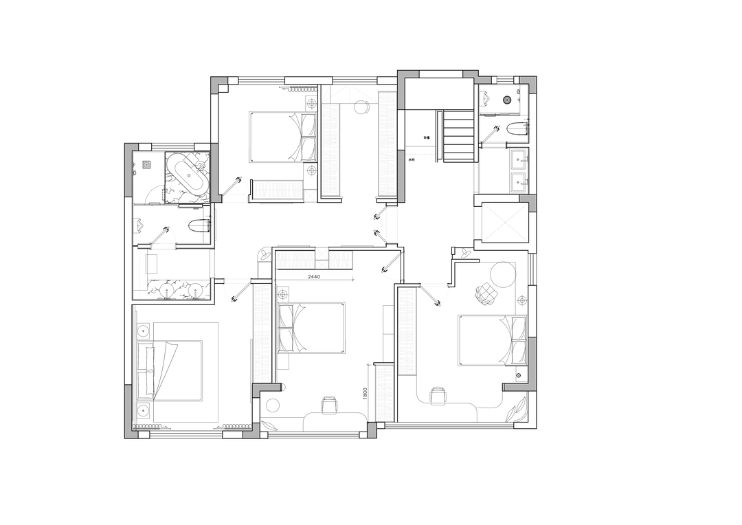
二层平面布局图
四层主要是卧室区域,孩子和父母的套房都集中在这里,把老人房和孩子房分开的原因有考虑到老人的休息习惯,并且露台是在老人房位置,更便于一些种植和打理的爱好。
一层和负一层的外立面夜景,下沉式庭院把别墅的隐私性遮挡的非常足,可以自由享受三代同堂的生活。
下沉式庭院搭配了水景、植物、灯光和室外露台的设计,配色上与室内做了融合,在联排别墅中有了独栋的感受。
客厅背景墙造型的灵感来自于尼亚加拉大瀑布,用定制模具一体成型内聚的曲面,上面的斜面造型微调角度,利用光线与空气的流动性,在同一个时间能展现家里不同的光影。
虽然把客厅放在了负一层,但是整体采光并不受影响,因为这也是和一层的挑空区域,空间视觉感的延伸性,让客厅既有聚拢的视觉中心,又有层次上的悬挑。
负一层的采光强到白天需要用窗帘进行遮挡。
沙发上的视觉感很宽阔,一层餐厨区、庭院、西厨、书房、甚至了客房都可以看到,我们在做设计时,把结构关系,这种互动做了非常多的考虑,以往别墅更注重室内的空间独立,而我们希望每个空间都能产生链接。
男业主希望有独立的西厨,可以给孩子煎牛排、做咖啡,我们拍摄当天也是尝到了男业主亲手冲的咖啡,这个空间还可以聚会,用男业主的话说“吃着火锅看着雪”。
西厨区域的夜景,能够看到楼梯的设计和通向露台的部分场景。
												 
												
													
												
											
												 
												
													
												
											
												 
												
													
												
											
家里的中心位置留给了楼梯,以红白双色的材质折叠,山峦起伏的形态是串联各个空间的流动通道,这也是家中非常大一个设计亮点。
												 
												
													
												
											
山峦起伏的状态,让人更愿意和楼梯产生更多行为互动。
												 
												
													
												
											
负二层是楼梯的终点,它在中心位置把不同功能室做了串联和划分。
超大的餐厨区域是全部开放的状态,极简柜体设计让厨房的秩序感很强,也能够看到一层玄关和部分楼梯。
在做厨房柜子设计时,柜门、抽屉的线条就是造型的一种,都是经过设计的,所以才会有这样的细节品质。
岛台也是厨房和餐桌之间的中转站和小酌一杯的位置。
从餐厅角度看到的就是负一层客厅高区,两个空间是在串联的。
相关案例推荐
 
							以志盛视设计
设计师相关作品
 
 
 
												
													
														
															
																 
												
													
														
															
																 
												
													
														
															
																 
												
													
														
															
																 
												
													
														
															
																 
												
													
														
															
																 
												
													
														
															
																 
												
													
														
															
																 
												
													
														
															
																 
												
													
														
															
																 
												
													
														
															
																 
												
													
														
															
																 
												
													
														
															
																 
												
													
														
															
																 
												
													
														
															
																 
												
													
														
															
																 
												
													
														
															
																 
												
													
														
															
																 
												
													
														
															
																 
												
													
														
															
																 
												
													
														
															
																 
												
													
														
															
																 
												
													
														
															
																 
												
													
														
															
																 
												
													
														
															
																 
												
													
														
															
																 
												
													
														
															
																 
												
													
														
															
																 
												
													
														
															
																 
												
													
														
															
																 
												
													
														
															
																 
												
													
														
															
																 
												
													
														
															
																 
												
													
														
															
																 
												
													
														
															
																 
												
													
														
															
																 
												
													
														
															
																 
												
													
														
															
																 
												
													
														
															
																 
												
													
														
															
																 
                                                     
                                                         
                                                     
                                                     
                                                     
                                                     
                                                     
											
										 
											 
											 
											 
											 
											 
														 
														 
														 
														 
														 
				 
                
 粤公网安备 44010602000156号
粤公网安备 44010602000156号