前言: 以”平行空间“为思考概念,设计将空间视为居住者内心世界的表达,描绘在快节奏都市生活背景下,内心所向往的”另一处平行空间“,时间相错,人物不变,却与外界无关,旨在挖掘内心深处的情感需求。
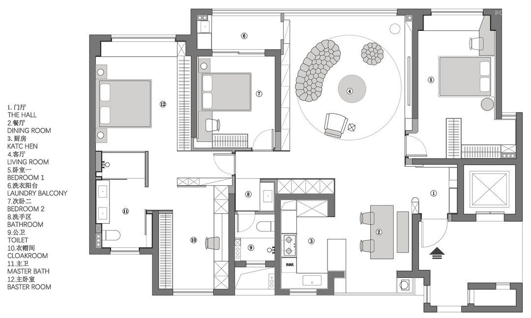
户型图
客厅
考虑到项目业主是一位单身的年轻男士,在未来的生活状态中,可能会面对无限的变化。设计以发展的目光审视空间,同时思考当下的使用感受,意图打造一个进退得宜,攻守兼备的空间状态。
引光而来
暗色物质压低空间明度,于是外来的自然光源更显充沛。设计师希望打造明亮富有质感的生活情景,同时尊重业主对暗色场域的喜好,揉合明与暗间的调和比例,打造一个年轻自由且具有思考深度的感性空间。
纳入阳台,串联餐厅区域后,客厅汲取到来自两边的丰沛光照,但在设计看来,顶面无法避免的梁结构割裂了视觉关系,下一步要做的,是重建场域间的分离结构。
设计通过弧形的线条,以及斜面的处理,带来自然的过渡效果,弱化梁柱的存在感,形成统一开放,明亮宽敞的布局。
走廊
倾向设计
设计,是让世界更接近我们的梦想。来到家装空间,设计师希望能够在实用性的选择之余,尽可能贴近业主的心中所想,于是在最具个人倾向的主卧空间使用大量的暗色元素,并减少不必要的装饰,只通过材质间肌理质感的不同作为层次的区分。
相关案例推荐
网友评论
陈磊

粤公网安备 44010602000156号