前言:
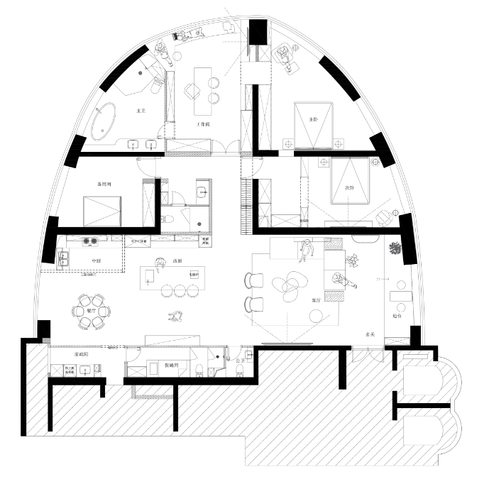
本案,位于王子晶品,300㎡ 弧形玻璃幕墙结构私宅,由于客餐厅纵深较长因素,存在采光不足的问题。三房两厅四卫的户型结构对于一家三口来说存在空间的浪费,基于此,屋主最终决定全拆处理。
风格上偏向于自然复古藤编元素的法式风格,营造出既古典又不失现代感的生活氛围。墙面与天花板做了一体化处理,客厅吊顶全部打开,只保留梁的位置,再使用贴边设计为精致的穹顶造型,进一步强化室内氛围的独特性。
客厅与入户融为一体,创造出既独立又富有特色的入户体验。右侧为父母特设了一方茶室,无论是独自品茗还是与友人相聚,皆可在此享受宁静美好。
为了让整个家的气场更加强大,设计师将保姆间和客卫缩小,餐厅挪至窗户边,改善采光条件,让用餐时光也能沐浴在温暖的日光之中。厨房则整为横向的一个中厨和一个西厨,开放式中西式烹饪区,增强了互动性和使用便利性。
主卧套房是女儿的小世界。设计师将原本占据最佳采光位置的主卫向内挪动,释放空间,并拆除了原来的衣帽间和门厅,将这些区域完全打开,释放的空间则打造了一个工作室。
女儿是手工艺爱好者,这里,不仅有展示她手工娃娃的8扇大面积玻璃橱窗,还有足够宽敞的桌台,让她的灵感自由飞翔。工作间的中心是一个两米二的大板桌,既可作为工作台,也适合朋友来访时一起交流创作。
在大板桌的一侧,设置了隐藏式的衣柜,外观看起来像护墙板,实际上提供了大量的储物空间。沿着窗户边则打造了一个宽敞的卡座,配有软包靠背,增加了舒适度。卡座对面还摆放了一台电视机,无论是独自放松还是与朋友相聚,这里都是一个理想的休闲角落。
主卧调整了床的方向,增加了一整排的衣柜,并设计了阅读角落,为女儿提供了一个安静的休憩空间,让她在书海中遨游,或是在疲惫时小憩片刻。
相关案例推荐
示觉设计
设计师相关作品

粤公网安备 44010602000156号