前言: 每位屋主的家都有属于自己的特点,这次的改造正如梵高的作品《鸢尾花》,色彩丰富,线条细致而多变,洋溢着清新的氛围和生命力。我们使用雾紫色、浅粉、明黄和深黑等颜色,结合了空间中的不同形体结构,以独特的审美和平衡和谐的律动,描绘出属于新一代年轻人的彩色生活。
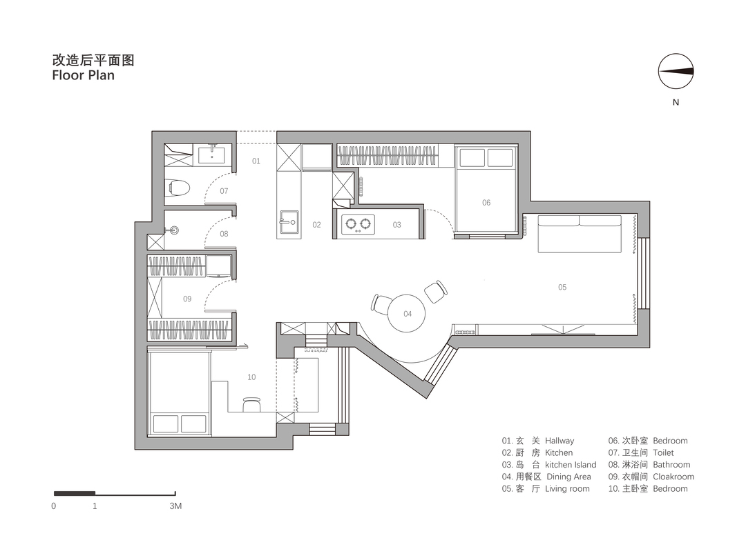
本项目位于北京市东城区天坛旁边,建筑面积约80平米。原始户型两室一厅的格局,客厅面积虽大但利用率较低且光照不足,而封闭的主卧室占据了采光最好的南向大窗户。
设计师在改造时,将所有功能区梳理过后重新布局:把原本封闭局促的厨房释放在开放的公共区域内,分成了水吧台和面向用餐区的灶台岛台,连贯起餐厨区域的动线。采光需求最大的客厅和用餐区排布在南向的两个窗户旁,为开放的动区空间引入充足的自然光照。
业主是一位在校读研的00后明星造型师和艺术家,作为一位艺术和时尚行业从业者,她喜欢各种明亮鲜艳的颜色,尤其是紫色、粉色和黄色,希望打造出一个适合年轻人的时尚先锋艺术化居所。
简约
绿植
现代
地板
装饰画
地毯
客厅
沙发
混搭
现代简约
窗帘
整个空间以黑色实木地板为基底,深沉的重色调包容起所有新鲜亮丽的颜色,又不会显得过于幼稚。
天然材质的粉色纯亚麻窗帘让撒入室内的阳光变得柔和又浪漫,鸢尾花图案的拼色地毯预告着空间的色彩旋律。
四层开放式隔板上摆满了书籍和收藏,其中来自马轲的《找光的人》是屋主很喜欢的一副作品,大胆、前卫的配色与构图给人一种热烈而平静的矛盾感。
一旁的葫芦彩结花器来自喜行乐和ZARA的联名系列,通过对传统瓷器的再创造,表达出新一代年轻人的东方意趣。
客厅旁的次卧空间做了一扇可沿中轴转动的圆形窗户用于日常通风和采光。
这扇圆窗凸起的半球面和银色金属边框融入了Space Age太空时代的设计理念,像一个太空舱,象征着对于未来的探索和想象。
在设计动区中心位置的用餐区时,我们加入了薄雾紫色这种小众、神秘又浪漫的色彩。
以浅紫色的弧形造型墙和圆形吊顶围合起中心的圆桌,还利用上下对称的弧形顺势搭建起一个坐台,供屋主日常与朋友聚餐时灵活使用。
弧形消解了原始户型凸角利用率较低问题的同时,产生一种温暖的包裹感和空间聚合感。
由于原始房屋的层高限制,在中庭上方使用有机玻璃镜面板来反射空间,给普通的平层带来近似于复式挑空的体验,视觉上巧妙地延伸出空间层次。
开放式厨房借用了餐桌旁窗户的采光,浅米色系的玉石大理石和米色墙面相呼应。明快的直线和自由的曲线互相穿插,在方与圆所构成的几何美学中体会艺术和生活的平衡。
相关案例推荐
屋已设计工作室
设计师相关作品

粤公网安备 44010602000156号