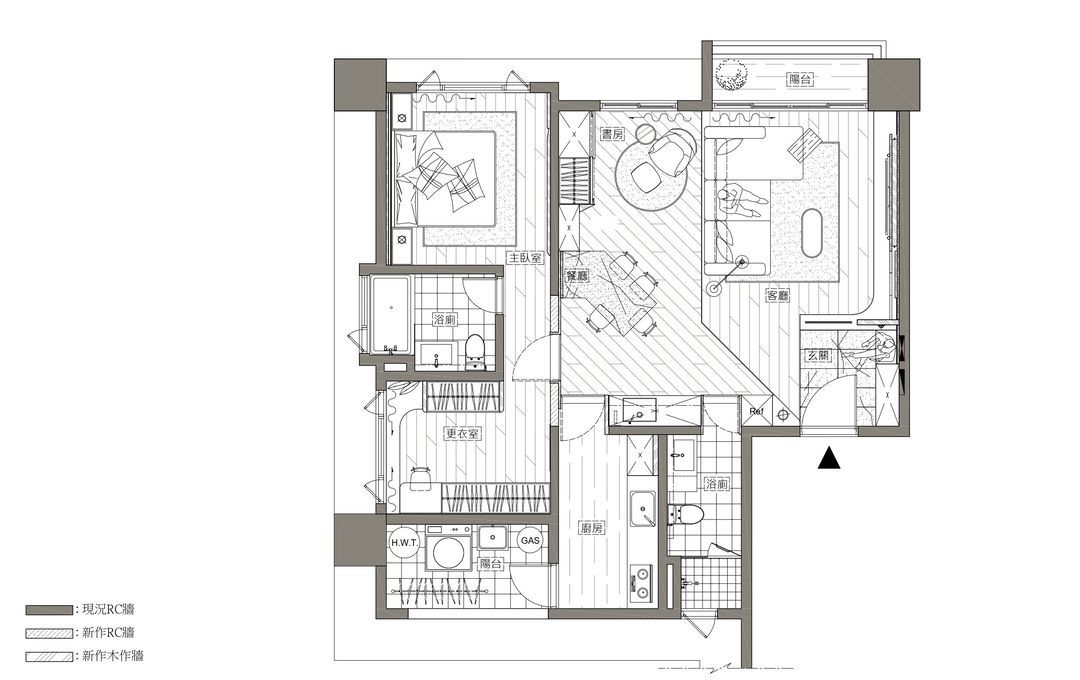
前言: 以新舊交融的設計語彙,將宜蘭在地傳統元素與創新設計思維結合,搭配精挑細選的材質、色調,偕同業主的生活習慣,將空間的採光、動線妥善規劃,營造出奶油色般的輕奢華空間風采,完美呼應業主對生活的態度與獨特格調,隨著時光的堆疊,讓空間與人可以開展出屬於屋子的味道,刻劃夫妻兩人相處的美好生活印記。
其他
相关案例推荐
网友评论
張明昇

粤公网安备 44010602000156号