前言:
一个能愉悦自己的家才是一个温馨舒适的家。
A home that brings joy to oneself is a warm and comfortable home.
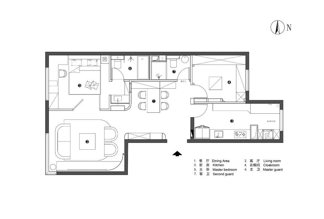
玄关
玫红色的开始,为这入室空间增添了一抹精致,大容积的衣帽柜满足了业主收纳的需求,圆拱型的换鞋凳也融合进了衣柜的一角;不同于常规摆鞋区的尺寸空间不仅容纳格式鞋品的摆放,也便于日后的清洁打扫。
厨房
重新构造的美食殿堂,打造出了一个兼具复古情怀与充满创造的空间,这里不仅可以有美味的料理,也有独特的视觉享受,无论是自家烹饪还是好友聚餐,都是一场味蕾与心灵的美妙盛宴。
卫生间
当对空间风格的统一与空间完整度的需求大于使用需求时,就是”隐形门“的诞生之时。
同样的精致再度延伸,简洁的线条凸显了洗手台的立体感,纤细而典雅。
干湿分离的内部,也清晰明了了功能的分区,提高使用效率的同时也营造出舒适的使用环境,注重整体美观,也满足需求。
卧室
卧松软的床品营造着温馨的氛围,双色墙面简单区分了卧室中的”动与静“。
主卧做了独立的盥洗室,方便主人的日常使用,玫红色的轻复古风格与卧室的温馨融合。
相关案例推荐
网友评论
云深空间设计事务所
设计师相关作品

粤公网安备 44010602000156号