本案位于杭州,边套排屋,结构改造后共5层,地下两层,地上3层,室内面积约520㎡。
2024-10-10
39474
前言: 本案结构经过大刀阔斧的改造,功能全面,材质丰富。拥有水泥浇筑的微水泥踏步,钢板扶手的旋转楼梯,从顶楼垂直采光至负二层的圆形天窗,所有刻意的结构皆服务于功能。顶楼的套房腔调十足,是一个融合多种元素的艺术之家。
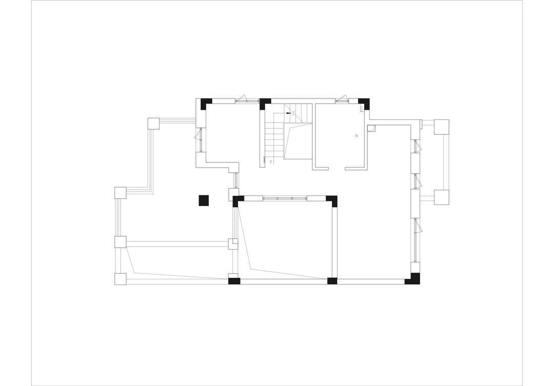
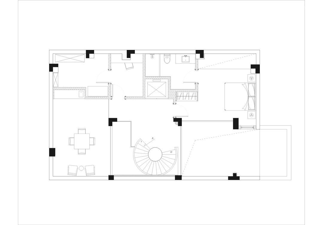
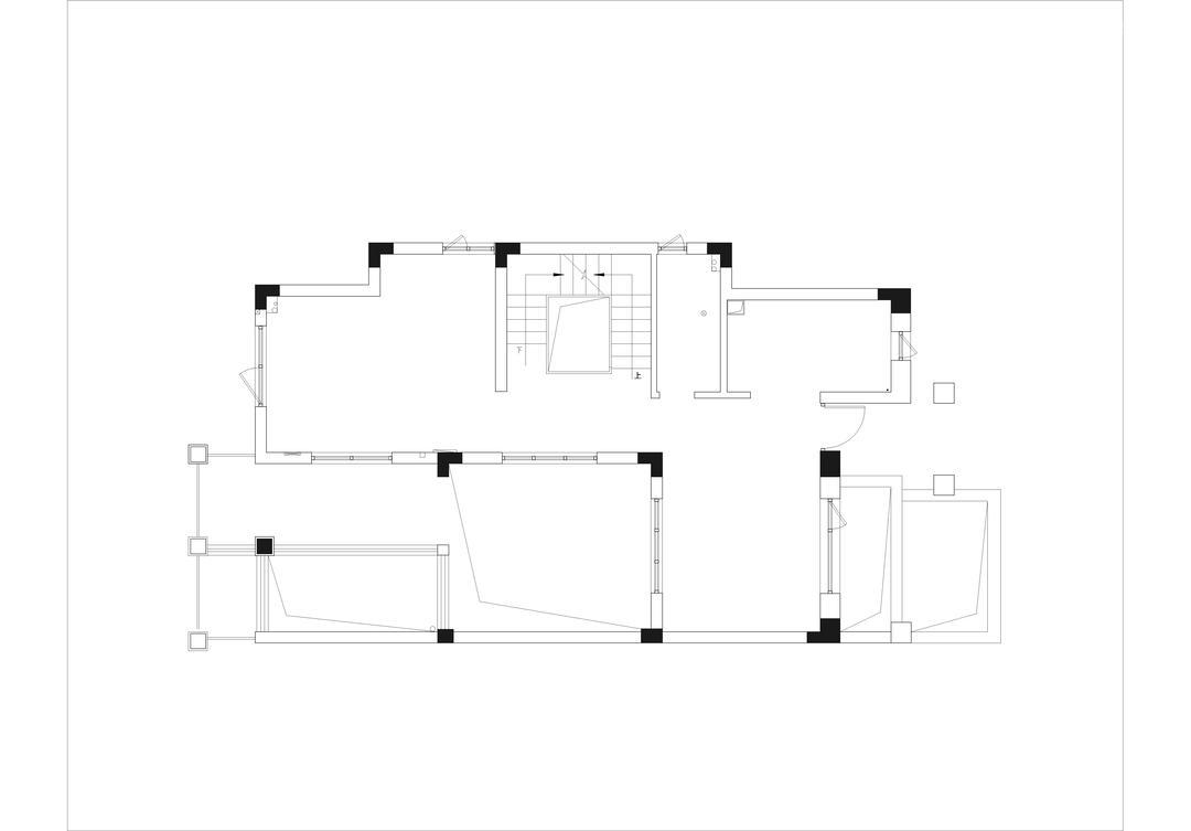
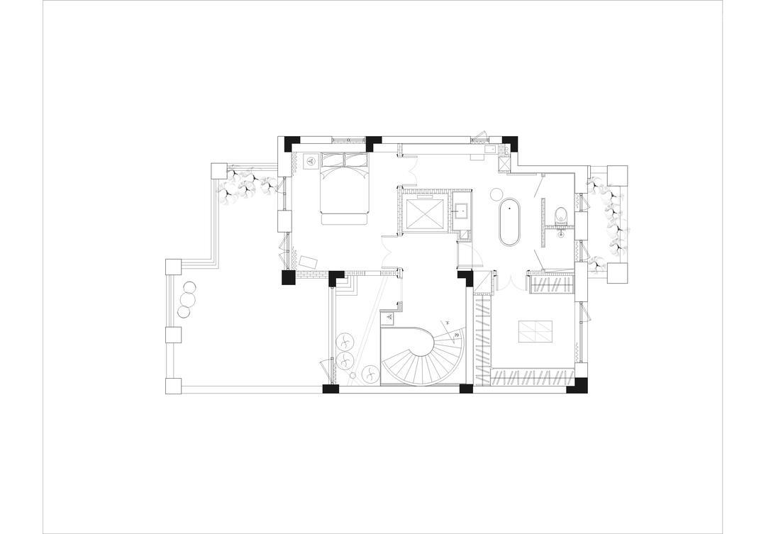
户型图
相关案例推荐
网友评论
王小朋
设计师相关作品

粤公网安备 44010602000156号