前言:
在凡俗的烟火里
愿以素心,阅来日方长
愿晨昏相依
四季欢喜
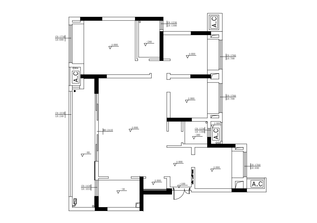
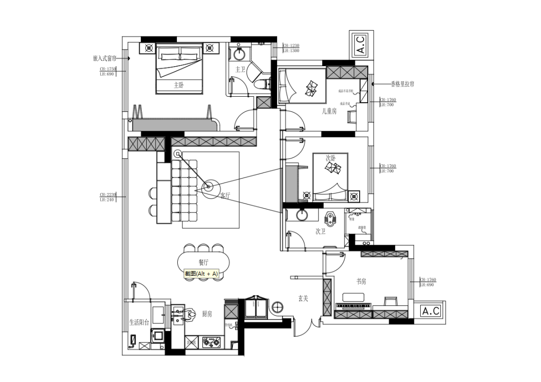
户型图
原始图——
业主需求:
1.一定要封闭式厨房。
2.希望小朋友的房间能有足够多的活动空间。
3.收纳要足够多,以应对未来越来越多的物品。
户型改造——
1.阳台纳入客厅区域、公区宽阔,电视墙做到过道方向把原本的过道区域置换为客厅,原有电视墙位置做满墙收纳。窗边延伸承重墙做开放式书吧,承载办公需求的同时也可以满足孩子上网课的需求。电视大且视距远,能有效保护孩子视力。
2.入户增加解构式玄关,增强空间的私密性和回家的仪式感。
3.厨房做隐形联动滑门、打造出可开放可封闭的厨房。
客厅
摒弃繁杂,拥抱纯粹
这是现代生活的诗意表达
能容纳我们
满溢的思绪和内心
在定制的韵律里
从晨光初照到夜幕低垂
每一刻的流转
都在这专属的诗篇里轻轻吟唱
相关案例推荐
网友评论
素朴设计
设计师相关作品

粤公网安备 44010602000156号