前言: 光线是贯通空间最原始且具有表现力的元素,莫奈说过"一切色彩皆产生于光”。不仅塑造了色彩,也丰富了空间表现。该项目位于城南森林公园附近,业主颇爱大自然给予的氛围感,选了临近山坡的户型,放眼望去,满是绿色山峦。大自然的四季轮换,成为家中变化的风景。我们围绕光线与窗景,优化了户型布局,统一空间色彩和材质,在每个房间都能感受到光线带来的风景。
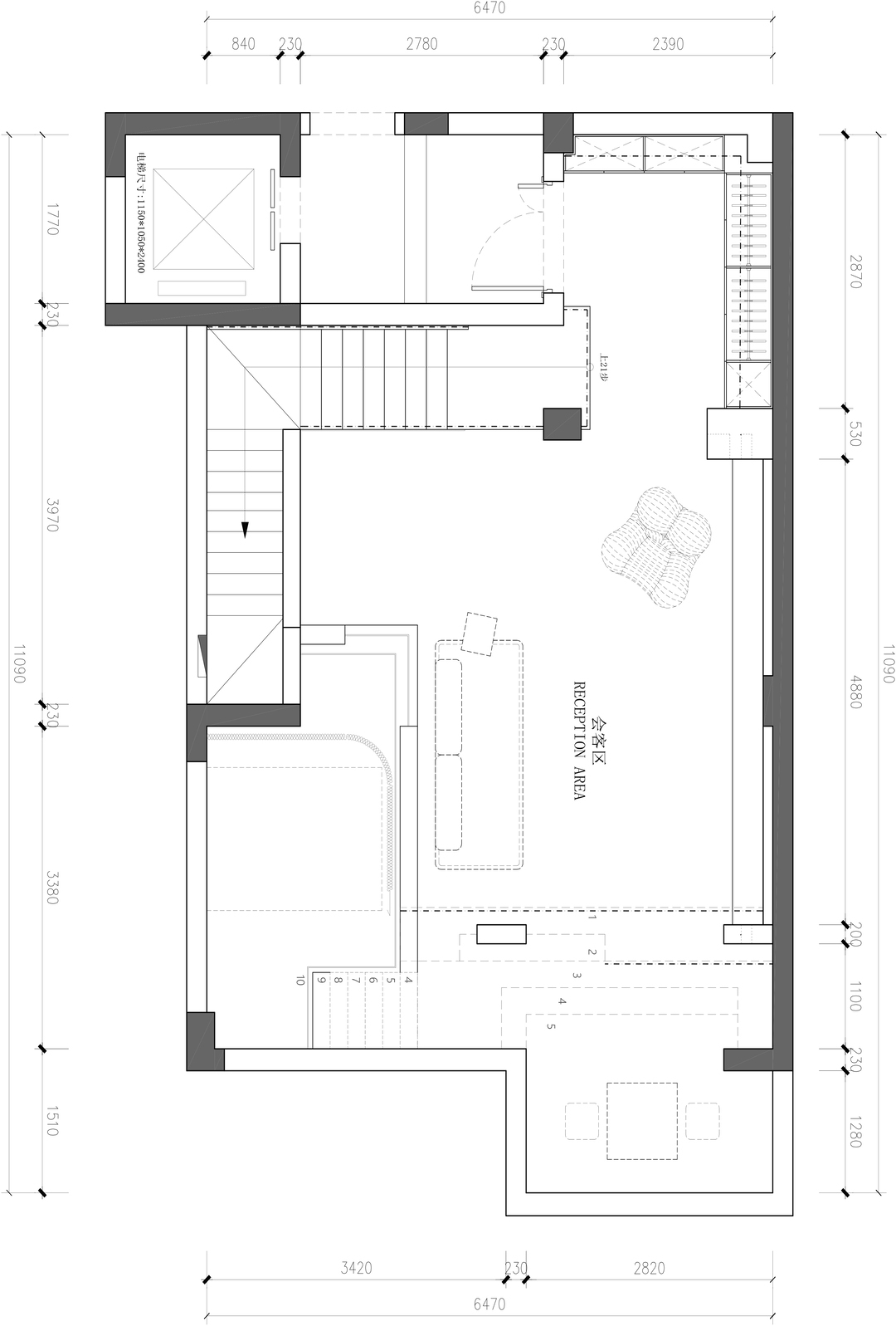
曾几何时,人们都喜欢把客厅的核心认为是电视机和背景,而且一直延续至今,设计师要做的就是打破形式。宜居生活因人、时、地而异,不执着于主墙,只留下一种被围合的空间,人与人面对,聊天说笑,举杯推盏,一切以方便好用为最佳姿态呈现。
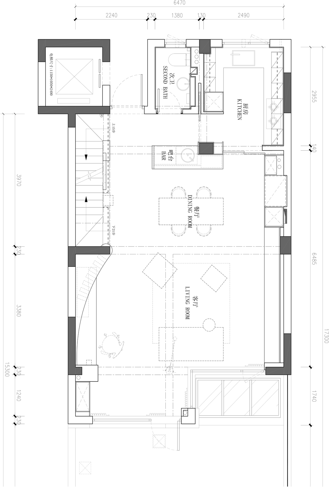
在材质选择上,我们用了低饱和度暖色。墙面与柜体保持一致的颜色,木元素的加入,营造出简约温馨的室内氛围。不仅实现视觉上的连贯性,也增加空间的通透性。局部依靠跳跃色系的软装融入。如同音符,为简约的基调添加柔美的旋律。书房是这个家庭最实用的区域。无论阅读,手作,办公。书架则用建筑的处理方式进行表现。收藏屋主喜欢的器物及书籍。
留白的空间淡出些许呼吸感,内嵌隐形门,无踢脚线等细节使得空间在自然光的照射下愈显高级与一体性。光线,材质,空间之间的融合互动不仅增强室内外视觉连通性,也让生活场景与空间实现交替,并为空间注入生机与活力。
为了上下楼更加舒适便捷,我们优化了楼梯踏步的宽度与高度。调整之楼梯的尺寸更加合理与舒适。楼梯的扶手也用结构的预言去表现。在保证安全的同时,赋予建筑的语言,让餐厅区域的设计更相得益彰。
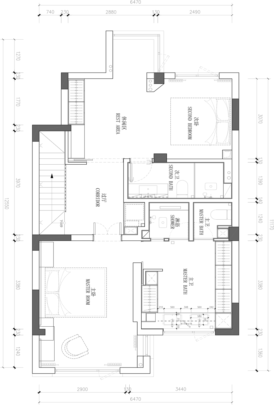
卧室延续整屋的色彩与材质,墨绿色的床头背景满足家庭成员的喜好。主卫与衣帽间的合并,即满足生活的合理性,并在空间效率上进一步的提升
去除符号化的多余装饰,设计师保留利落的线条和简约的构架,挖掘出空间最适当的形态,赋予专属空间的独有气质
相关案例推荐
叁十设计
设计师相关作品

粤公网安备 44010602000156号