前言: 美学是艺术与生活的最终结合。——奥斯卡 · 王尔德
传统的“趋势”一词早已过时,更多的是设计师通过创造去表达个体意义上的自由。
本案业主是一位“精神意大利人”,对其文化情有独钟,无论是意大利的设计风格还是软装品牌,都是他的首选。
在项目中,我们从意式生活方式的高度出发,基于居者的品位志趣、审美偏好等,发掘出生活的丰富性与深度,并注入空间的每个细节之中,完成业主心中关于理想家的设定。
生活的近处,精神的远方,构成了梦想家独一无二的意义。
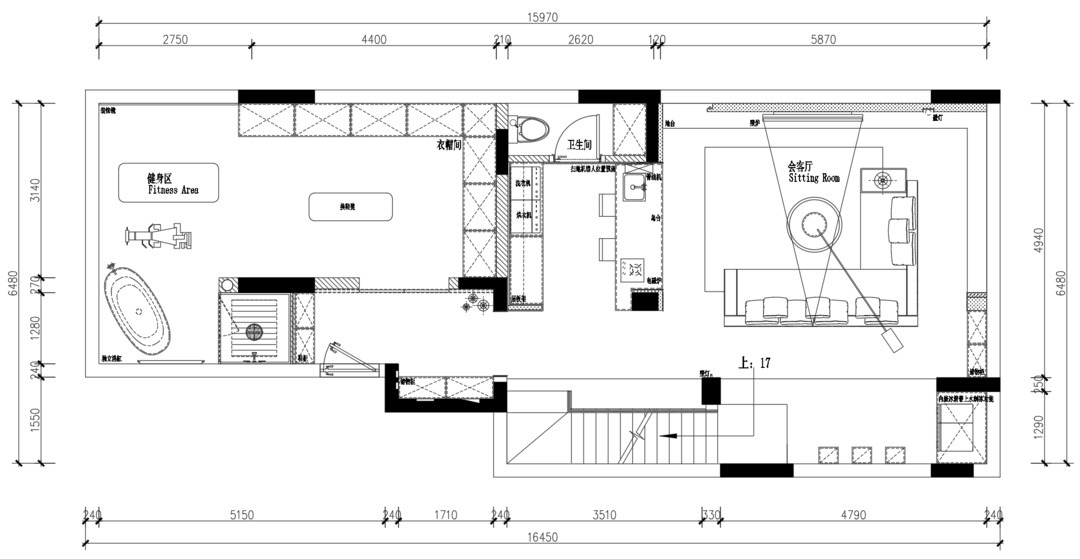
以纯白为基底的会客厅呈现一种极简、柔和之美,Edra的花瓣沙发提供最松弛的生活状态,可以随意躺着、坐着,让空间场景成为有温度的存在,构成托住纷繁人生的核心力量。
小酌慢饮、会友见客,水吧台的功能性随着不同社交情境的转换也会展现出多样化的属性。借由柔和光影打造一个令人放松的场域,朦胧的氛围更加引人入胜。
精心收藏的美酒陈列如艺术品,结合Ella吧椅,色彩美学达到完美平衡,营造出一种完全惬意的空间氛围。
整个地下空间功能规划非常全面,储物、直饮水、休闲吧台等一应俱全,使这里成为一个实用而又充满生活意趣的场所。
每一处细节,都彰显着对品质生活的追求。
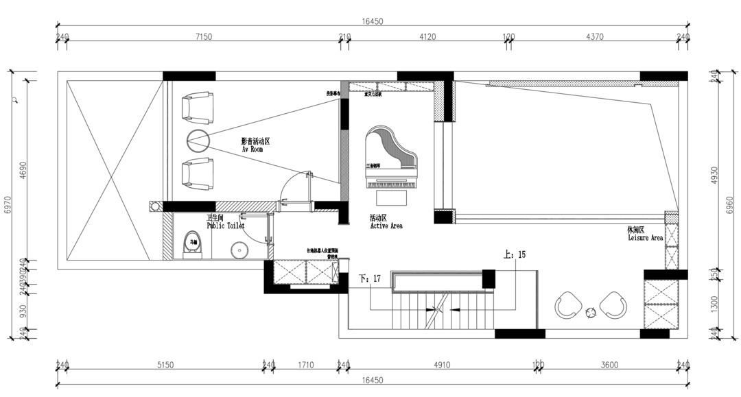
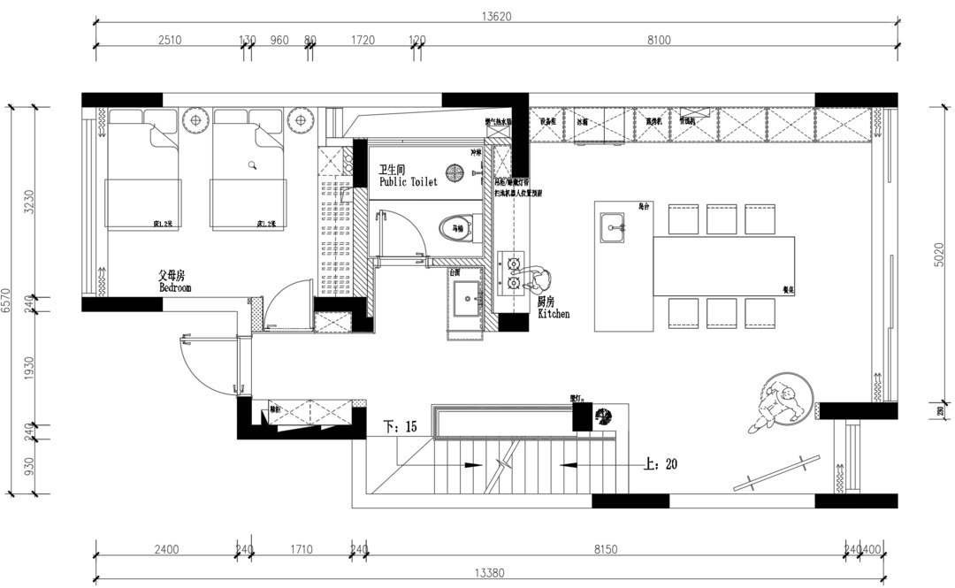
设计中岛台,串联起厨房与餐厅,提升空间的互动性。同时,可以弥补厨房的收纳功能,也提升整个区域的美观度。
在这烹饪,制作甜点或者轻食,细腻精致的意式生活方式也让日子极具仪式感。
L型定制柜体巧妙将各种功能融为一体,既紧凑又全面,平衡空间与艺术、美学的内在关系,使用起来同样得心应手。
简单的空间布局里,一眼可见的都是精雕细琢过的美。大理石材天然的花纹质感带着原始的野趣,打造永不过时的审美力。
空间中的每一抹绿意,都是业主亲自挑选,共同营造一种生机勃勃、和谐共生的美好氛围。
在内外之间,与自然为邻,是最惬意的生活方式。
依托于得天独厚的自然环境,我们特别强调室内外空间的无缝对接,为居住者打造安逸闲悦的都市生活。
采用可移动的玻璃移门,使得内外界限变得模糊,构成值得停留的美。
翠意环绕左右,在四时与三餐的氛围感里,能够更加自由地享受自然带来的舒适与惬意。
主卧展现一种介于简约与轻奢之间的儒雅质感,不同明度的灰调融合,形成静谧而沉稳的能量场。
大幅装饰画是空间的点睛之笔,深邃的墨绿强化了空间的安静氛围,同时带来艺术美感,完美诠释主人对生活品质的追求。
儿童房以浅绿描摹空间轮廓,触发自然想象。摒弃传统厚重窗帘,以半透明的百叶窗帘将日光浅浅过滤,让空间笼罩上一层薄薄的光晕,呵护孩子成长。
定制悬挑书桌,极简、干净、通透,有种不加修饰的美感。不仅可以满足使用需求,也让空间有了更为深刻的记忆点。
晓安设计
设计师相关作品
编辑精选

粤公网安备 44010602000156号