前言:
这是一对90后新婚小夫妻的婚房,外加一只猫主子。他们希望的家是温馨的、有品质的,然后也很喜欢原木的质感,同时希望将一层作为公共区和客房,也有猫猫的活动空间,二层是专属两人的私密空间。
重新构建房屋从艺术到生活的多维空间,基于居者的种种需求,主打温馨舒适的“奶油风”为主,再用设计元素及造型加以辅助,丰富空间层次感,将理想的生活家居呈现空间里。
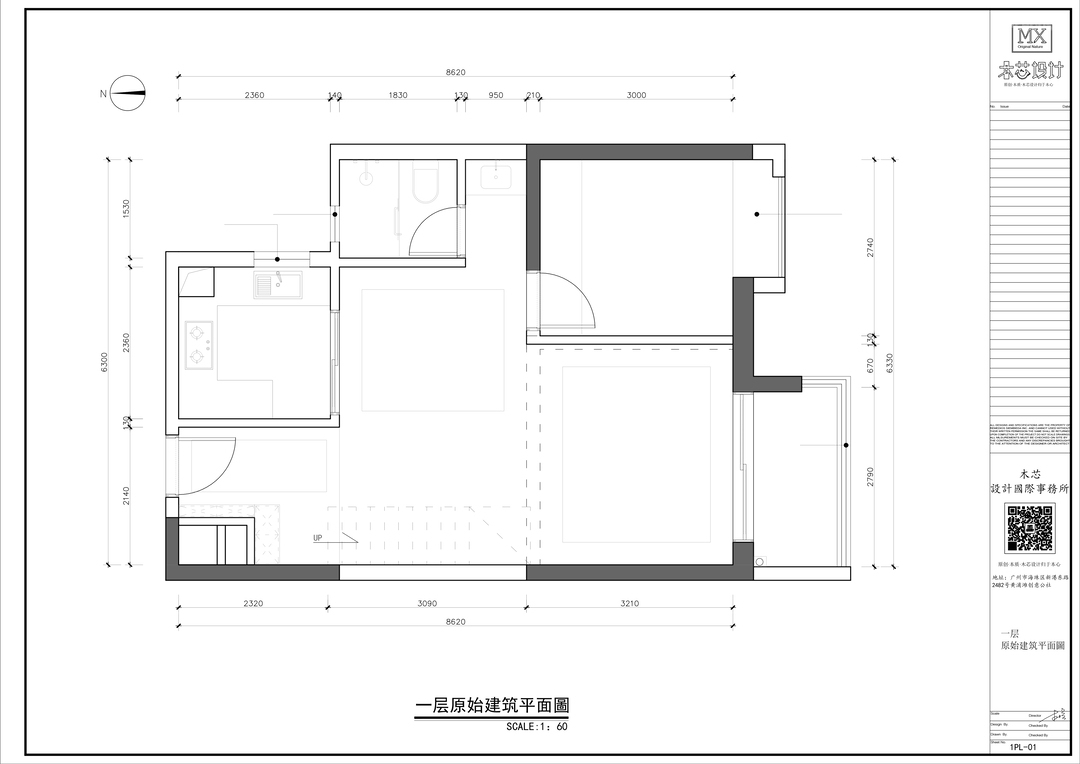
① 拆掉封闭式厨房,打造开放式餐厨一体,得到宽绰的用餐空间与公共区;
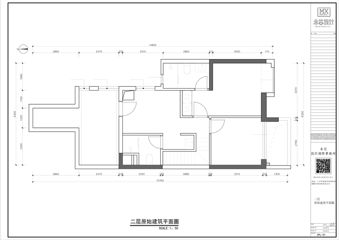
② 在原始户型上做少许拆改,以少量拆改和变换动线轨迹增加各个空间的实用功能;
③ 虽然二人居住,但考虑后期人口增加,各个空间的储物收纳都需提前规划充足;
✔ 注重功能细节设计
✔ 客餐厅要宽敞、休闲、美观性;
✔ 客厅增加猫宠房和活动玩耍空间;
✔ 阳台空间纳入客厅,增加客厅用地面积;
✔ 在外在美的前提下要有充足的储物空间,看起来整体温馨又有调性。
推开门,温馨的鱼骨拼木地板与奶油色的墙面让内心倍感治愈。阳光透过落地窗倾泻而下的温暖,慵懒的氛围肆意蔓延,也把从外界裹挟而来的嘈杂浮尘一股脑地打理干净。
入门右手边就是收纳柜,底部做了悬空设计方便放日常鞋子,将美观与收纳完美的结合在一起,每个角落都充满了幸福感,纯粹内敛,又不失张力。
餐厨空间以小花砖与公共空间区分开,陡然而生的豆绿橱柜成为空间惹眼的点缀,显得清爽而高级;餐桌设计了拱形线条,优美的弧线让精致的氛围感呼之欲出。
依据空间走向规划L型橱柜,进一步提高厨房储物能力;岛台的融入,既能当做操作台,又能承担起西厨的功能,一举两得。流畅的洄游动线,实现美学与功能的双重升级。
餐岛一体,满足多人就餐,岛台加装轨道插座,方便打火锅~靠墙设计了一整排餐边柜电器收纳柜,冰箱、烤箱也被内嵌在这里,构建餐厅的收纳系统,不仅方便了日常餐具的拿取,也增添了不少储藏空间。
在明亮的餐厅和家人共享美食的喜悦。不论是定制的整体橱柜和餐边柜,还是同色系嵌入式冰箱,都能兼具美观与收纳功能。餐具、水壶、咖啡机、杂物、收藏的好酒、零食...都有了合适的安放之处。
生活阳台纳入客厅,客厅面积由此放大,休闲功能得到延伸。阳台以落地窗的形式与客厅连接,借助窗边细长空间,定制壁挂开放格+书桌+地柜,1.5㎡的迷你空间解决书房难题。
拆除原始精装房装饰后,客厅空间都以低饱和的奶油色系为主,构建了客厅的温馨感,总能让人感觉到温暖与自然,整体氛围由简陋转换成慵懒感。
弧形吊顶包裹房梁,弱化房梁的存在感,线条流畅秀气,内嵌灯带增强空间分割和仪式感,也营造了空间的艺术氛围。
楼梯下是超大容量的收纳空间,可以放四季的鞋子和雨伞等杂物。
在靠近沙发区做了猫宠间,锁扣门也方便喂食和铲屎,左边用玻璃代替实木板,可以观察猫咪活动,下方还留了一个活动出口,方便猫猫自由出入。
柔软、温馨、舒适、自在,这些美好的词语都在客厅一一呈现,让电影的质感步入现实空间,角角落落尽是美好与精致。
不做复杂的电视墙,奶油色系的黑板磁吸墙增加空间的趣味性,投影幕布代替传统电视,周末开启家庭影院模式!
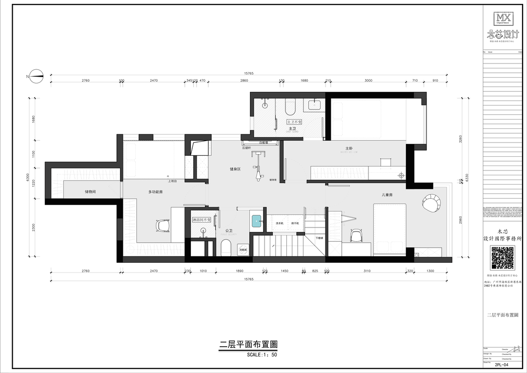
主卧整体以奶油为主,牛油果绿为辅,打造悬浮梳妆台与衣帽组合柜,简约而有设计,贯彻了实用性和舒适性。
地台床简洁大方,给业主提供最舒适的私人休息空间,床下是抽屉式收纳,用业主的话来说,虽然很简单,但是很实用舒适。
弧形造型作为软隔断,提倡空间“去棱角化”,阳台一侧用拱形壁龛打造阅读区,美观大方,成为房间里艺术一角。
明亮轻盈的休息空间,如幻梦境照进现实。去繁存简,设计少而精,保留生活的浪漫氛围,回归家的本真。
整体以奶油色作为基调,法式石膏线的点缀起到对比和突出的视觉效果。衣柜底部延伸出床头柜,实用耐看。复古吊灯暖意蔓延,在功能与氛围感之间取得巧妙平衡。
相关案例推荐
Johnny
设计师相关作品

粤公网安备 44010602000156号