前言:
如何为屋主打造一个既清新又深邃的空间?我给出的答案是“长春花蓝”
本案位于广州荔湾区的一栋复式精装房,屋主是一对80后夫妻,希望可以将这里打造成承载三代同堂的欢乐居所。当然除了一家人的生活空间之外,屋主也想要彰显属于自己的独特品位,于是便有了开篇的提问。
房子本身精装交付的品质就很不错,并且暗藏了全屋有线智能家居系统不适合大规模改动,所以整次设计采用局部改造的方案来完成~
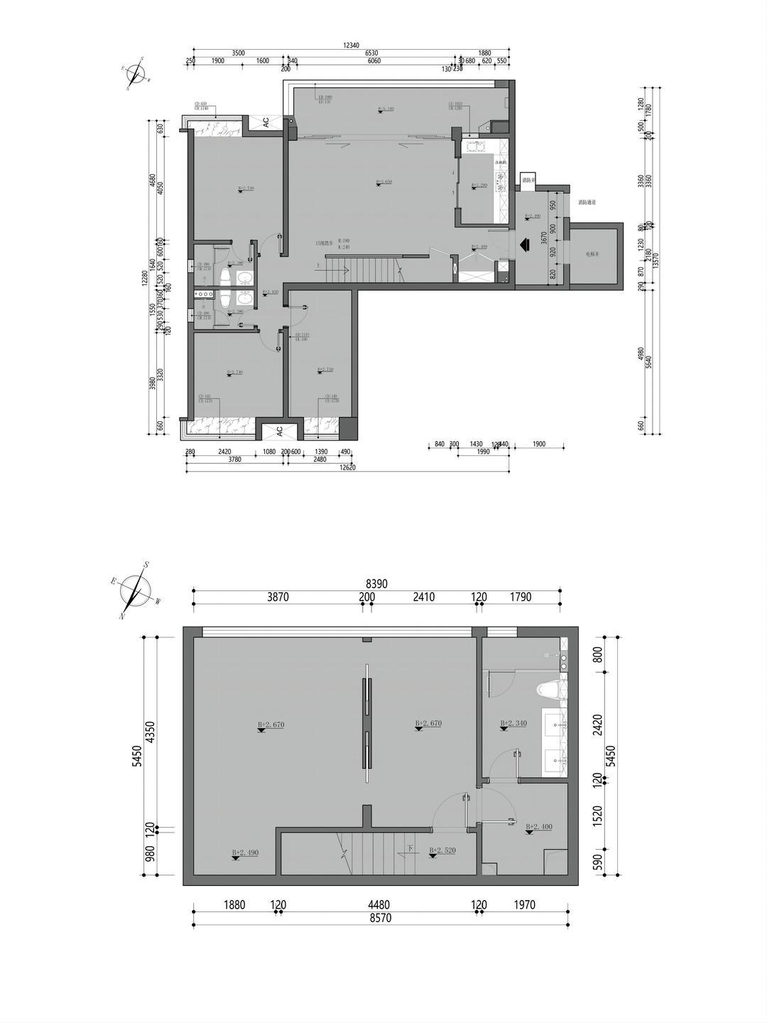
原本的户型结构就很方正,各个空间的利用率也很高。但是我们仔细看看,也会发现两个细节问题:
① 三代同堂需要一起活动的大客厅,却被阳台、厨房、楼梯间过道切开的很碎,造成实际客厅宽度仅有3.36m。
② 户外的风景好看的区域位于平面图左上方,而主卧室的床摆放区域则把视野放到了另外一面。
结合刚才提到的问题,整体的改造思路也就清晰地优化这两点了:
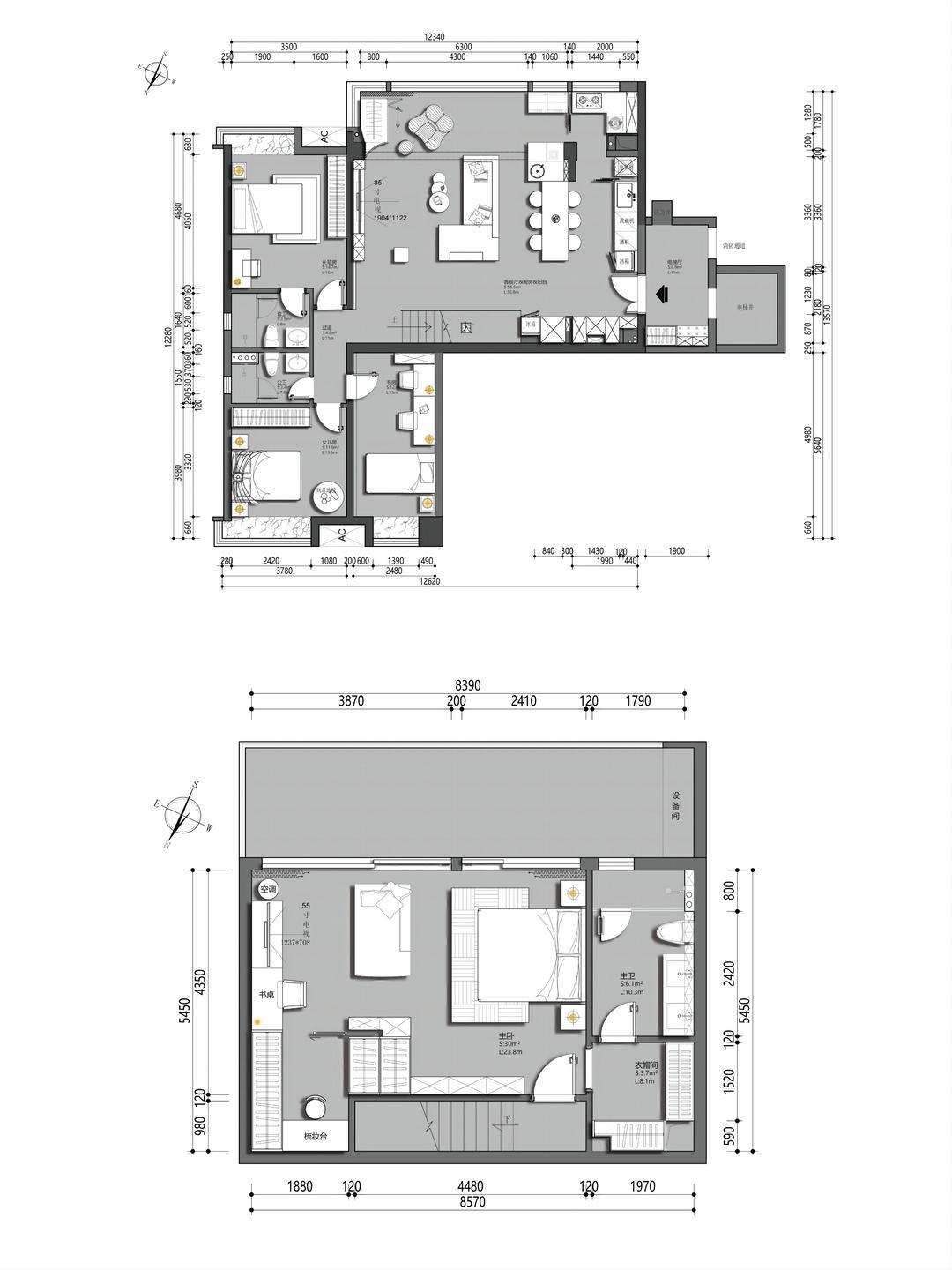
① 整个客厅完全敞开,阳台+客厅+餐厅+厨房全面合并一体化制作。
② 厨房得益于往阳台空间进行延伸扩充了面积,所以可以分成中厨西厨两部分,中厨采用暗藏玻璃门进行分隔。
③ 阳台空间合并进客厅后,客厅沙发区的中轴线整体往上面偏移,可以选择更大的转角沙发组合搭配。
④ 复式空间整个二楼都是主卧室的区域,于是完全调转床的摆放方向,面朝外面最好的风景。
严格意义上来看,一梯一户的电梯间才是真正的玄关,这里是入户随手放包的小区域。
配备开放格方便放置快递或者小物品,轨道插座方便给入户小物件充电。
再往里面走几步,就可以看见拥有四十多平方米的超大客厅。餐桌,沙发,楼梯都采用开放式设计,整体视线毫无遮挡地看见电视墙的最深处。
一整面采光超好的落地玻璃窗,结合窗外的绿植。仿佛窗外的风景也是空间中软装的一部分。
原本精装房的地面就是大家现在看到的这款灰色亮面石纹砖,也是屋主喜欢的颜色材质。
整体配色则在此基础上搭配同样的灰调空间,加入棕色木纹与艺术涂料,让整个空间看起来更加具备沉稳感。
当解决了基础的配色需求之后,屋主又提出了另一个情绪上的诉求:如何让空间中出现既清新又深邃的视觉效果呢?如果没有这一丝情绪点缀,那空间不就完全变成了商务取向吗?
这时,我想到了一个颜色“长春花蓝”~
来源于自然界中的长春花,这种颜色是浅蓝色中带有一点淡紫色。如果用玻璃来呈现的话出现淡雅而神秘的紫色调。正好满足屋主的诉求
楼梯玻璃扶手的面积在空间中占比不大,扶手+餐桌桌腿的位置正好作为长春花蓝粹色玻璃的展示。
成为整个空间中的点缀色
为了完美达成想要的效果,玻璃的颜色我们也是提前打样,反复对比最终敲定的颜色。
现在的梦幻帘遮光效果也比以前好多大,即使这么大的客厅也仅需要设计单层即可。
注意实际选材的过程中需要选择“电动轨道”达到可以调节角度的效果,这样阳光在不同光照条件下也可以找到合适的照射效果。
这是一些改造前后的对比图,仅仅天花局部改动与重新制作柜体软装,也可以获得焕然一新的改造体验。
施工的过程中,不断有同户型的邻居前来参观交流呢。
对于餐厅设计的考虑,我们希望餐厅吧台不仅仅是用餐吃饭的地方,也可以是家人一起生活互动的场景。
靠近沙发一侧设计条凳,方便反向落座与客厅沙发形成互动,轨道插座也为餐桌上的临时办公提供电源
厨房改动到阳台后,采用暗藏轨道门进行功能分区。
爆炒的时候可以遮挡油烟,还符合广州这边燃气开通的法规。
因为灶台面对窗户,选用升降油烟机排烟,下方烟管直接连接到烟道内。
最大程度拓宽窗户的视野。
主卧室最大的变化则是拆除原本中间的隔断墙,整体布局活脱脱一个反方向的客厅。
中置的沙发选用“LIGNE ROSET”家的PRADO沙发,沙发的靠背双边都可以拿取和坐人。
楼梯正上方内部的小空间被改造成了衣帽间,有独立房间门的情况下,内部衣帽间就可以打造全开放式衣帽间了。
天花部分的凸出吊顶也并非空穴来风,而是精准地修复了拆除原本墙体所留下的缝隙
每次改造精装房都需要更加细致化的解决方案,完整记录每一个细节并且被执行才是解决问题的最好方式~
完工后的大合照,感谢施工监理唐工的全力配合
Q&A
Q:装修过程花了多长时间?
A:装修时间花了四个月,精装房的改造并不需要太长的周期,很多工程项目都可以同时推进展开。
Q:你对这套作品最满意的地方在哪里,为什么?
A:最满意的地方在于客厅格局的改造,这个开放空间的打造真正解决了屋主三代同堂一家共同生活的场景。
Q:说说是什么给了你灵感,打造出现在这个作品的?
A:就像前文所说,满足清新又深邃的视觉效果,让空间看起来不再单调。2022年的潘通流行色正好给了我灵感,结合我擅长制作的粹色玻璃做法,才让这个作品得以实现。
Q: 在整个装修设计期间遇到最大的挑战是什么?
A:最大的施工挑战其实来自楼梯,悬空楼梯的制作工艺需要非常精确,每个尺寸细节都要精准地把控好才能衔接、钢架、五金、玻璃等等不同的材料~
相关案例推荐
吴思昊
设计师相关作品

粤公网安备 44010602000156号