前言:
三代同堂改善型住宅
原交付标准不符合业主审美
加上父母并不干涉精装修改造
所以夫妻两决定实现前后院大采光+微水泥满屋+韩系极简风+功能分明的家
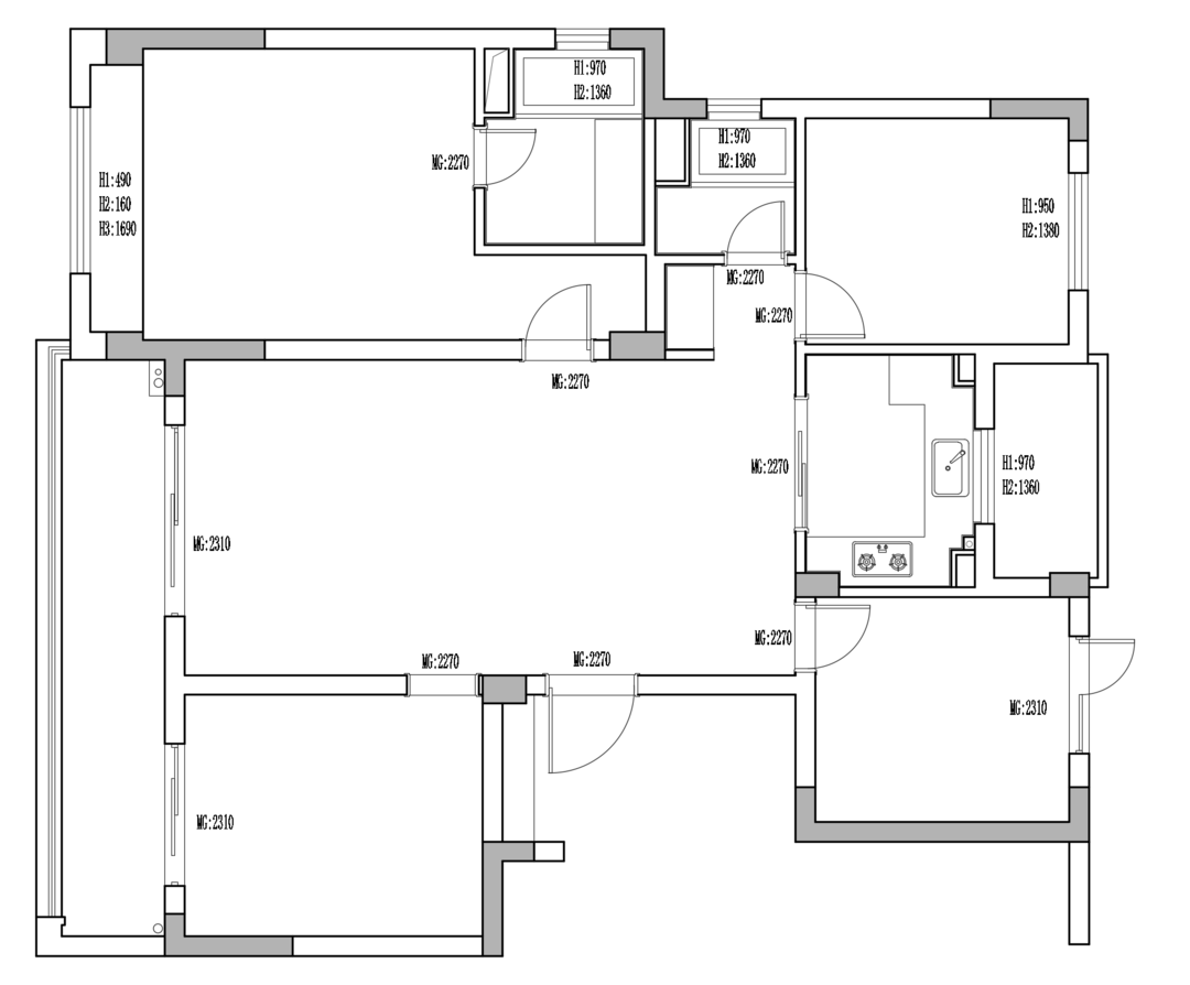
精装修交付户型
1.入户门正对主卧门,于风水和隐私性都不好
2.客厅虽方正,但小,无法满足三代同堂天伦空间的需求
3.餐厅夹在客厅和厨房中间,还需要给通往主卧和儿童房留出过道
改造方案
1.入户门无法调整,那就把主卧门调整方向,利用角度的视觉差打造主卧隐私性
2.拆除阳台门将阳台收入囊中,扩大客厅空间,客厅中心往阳台移动,提升客厅舒适性
3.餐厅采用了圆桌,增加违和感的同时还给主卧和儿童房提供了便利
入户首先进入视野的就是横贯的客餐厅
沙发墙
简约
绿植
灯具
地毯
客厅
自然风
沙发
艺术漆
电视柜
电视墙
窗帘
电视背景墙及沙发背景墙都是极简的风格
没有过多的装饰
电视背景墙与老人房共享一堵墙,精简了墙面收纳,用一组成品收纳柜代替
电视直接上墙,墙面微水泥肌理分明
电视背景墙及沙发背景墙都是极简的风格
没有过多的装饰
电视背景墙与老人房共享一堵墙,精简了墙面收纳,用一组成品收纳柜代替
电视直接上墙,墙面微水泥肌理分明
沙发背景墙同样微水泥打底
配以科技布沙发,与壁灯、地毯、茶几组合成温润十足的亲子空间
原阳台隔断拆除后剩下的墙体刚好是一组收纳柜的深度,延伸至落地窗前
极简干净的客厅哪怕放上一个体型颇大的按摩椅都清清爽爽,满足身心愉悦感
沙发墙
简约
绿植
灯具
客厅
自然风
沙发
艺术漆
电视柜
电视墙
沙发背景墙同样微水泥打底
配以科技布沙发,与壁灯、地毯、茶几组合成温润十足的亲子空间
原阳台隔断拆除后剩下的墙体刚好是一组收纳柜的深度,延伸至落地窗前
极简干净的客厅哪怕放上一个体型颇大的按摩椅都清清爽爽,满足身心愉悦感
餐厅更多营造是围合感和亲密感
圆形餐桌和带有各种“圆”元素的餐椅
家具与硬装自然融洽
餐厅更多营造是围合感和亲密感
圆形餐桌和带有各种“圆”元素的餐椅
家具与硬装自然融洽
借用了部分客卫空间的餐边柜
与餐桌搭配的天衣无缝
开放式置物架和收纳柜相辅相成,完美收纳餐厅所需
借用了部分客卫空间的餐边柜
与餐桌搭配的天衣无缝
开放式置物架和收纳柜相辅相成,完美收纳餐厅所需
借用了部分客卫空间的餐边柜
与餐桌搭配的天衣无缝
开放式置物架和收纳柜相辅相成,完美收纳餐厅所需
客卫改造了弧形门洞,做了干湿分离
原交付也是干湿分离的,但为了拓展餐边柜的空间,将干区重建
并且延续了公区的微水泥色系
客卫改造了弧形门洞,做了干湿分离
原交付也是干湿分离的,但为了拓展餐边柜的空间,将干区重建
并且延续了公区的微水泥色系
主卧在调整了门洞角度以后自然形成了一个内凹空间
这个空间除了安排了隐藏收纳外
也是一个端景
入户之后目之所及有美景
主卧在调整了门洞角度以后自然形成了一个内凹空间
这个空间除了安排了隐藏收纳外
也是一个端景
入户之后目之所及有美景
主卧没有做大的调整
而是在精装基础上增加了收纳体系
沿用的仍是公区的微水泥,柜门板按微水泥的色号进行烤漆处理,以达到视觉的统一性
沿墙两大组收纳柜足以收纳日常衣物及换季物品
主卧配套卫生间,便于小夫妻及小朋友日常使用
主卧没有做大的调整
而是在精装基础上增加了收纳体系
沿用的仍是公区的微水泥,柜门板按微水泥的色号进行烤漆处理,以达到视觉的统一性
沿墙两大组收纳柜足以收纳日常衣物及换季物品
主卧配套卫生间,便于小夫妻及小朋友日常使用
主卧没有做大的调整
而是在精装基础上增加了收纳体系
沿用的仍是公区的微水泥,柜门板按微水泥的色号进行烤漆处理,以达到视觉的统一性
沿墙两大组收纳柜足以收纳日常衣物及换季物品
主卧配套卫生间,便于小夫妻及小朋友日常使用
主卧没有做大的调整
而是在精装基础上增加了收纳体系
沿用的仍是公区的微水泥,柜门板按微水泥的色号进行烤漆处理,以达到视觉的统一性
沿墙两大组收纳柜足以收纳日常衣物及换季物品
主卧配套卫生间,便于小夫妻及小朋友日常使用
书房挨着餐厅
玻璃移门作为隔断,隐私性十足却不闭塞
自然光穿透引入餐厅空间,为餐厅补充光源
书房挨着餐厅
玻璃移门作为隔断,隐私性十足却不闭塞
自然光穿透引入餐厅空间,为餐厅补充光源
大长桌的写字台,可以满足2人同时办公
顶面吊柜和写字台抽屉满足日常藏书或者设备存放
万一有客来访需要住下也是一个可利用的空间
大长桌的写字台,可以满足2人同时办公
顶面吊柜和写字台抽屉满足日常藏书或者设备存放
万一有客来访需要住下也是一个可利用的空间
相关案例推荐
意森空间 YES DESIGN
设计师相关作品

粤公网安备 44010602000156号