前言:
房屋信息:
地址 LOCATION / 江苏南通
户型 HOUSE TYPE /复式
完工时间 COMPLETION / 2023年06月
设计 DESIGN / 木泽设计
面积 AREA /120㎡
费用COST/30W
-家的简介-
这是位于江苏南通老城区的的顶楼复式,虽然房龄已经将近30年,各种配套设施也已经老旧,但是屋主在这里出生成长,经历了人生中的前三十年,对这个老宅有着深厚的情感,但是日益衰旧的装修设施对他们的生活造成了一定的困扰,他们决定将老宅进行翻新改造,为此我们从整体空间设计入手对这个顶楼复式老宅进行了改造,赋予它新的生命力。
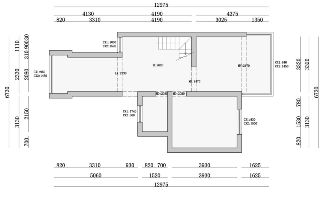
原始结构图
1:入户缺少玄关收纳,无法满足屋主日常收纳需求。
2:厨房南北进深长,使得门厅空间占比缩小,空间略显拥挤。
3:客厅与餐厅之间的隔墙不仅阻碍了南侧的采光,还使得整个客餐厅空间异常压抑且逼仄。
4.二层卫生间空间占比偏大,公区空间狭小且采光不佳。
一层平面布置图
1:厨房移门向北内缩,给门厅预留了操作空间,冰箱柜的外侧作为入户鞋柜使用,既满足了屋主的功能需求,又放大了空间的视觉。
2. 拆除客厅与餐厅之间的隔墙,使客餐厅南北空间相连接,将南面的采光毫无保留的引入室内,而且增加南北的通风性。
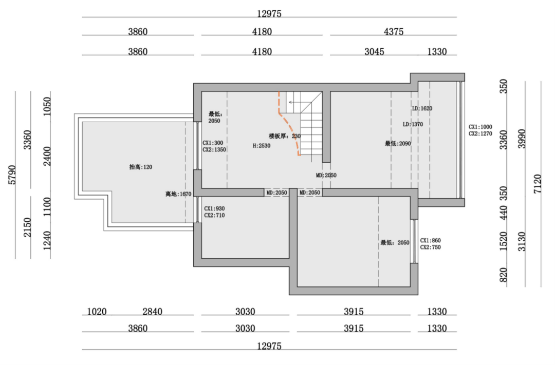
二层平面布置图
1:卫生间向南内缩,缩小湿区的空间占比,将干区洗漱功能移至卫生间北墙,在靠窗处还放置了洗烘机套装。干区与洗衣区共用了过道空间,而且使其功能更具备灵活性,采光也得到了很好的改善。
2:楼梯北侧作为屋主的茶空间,我们将靠近扶手的地面局部抬高,使其与过道地面形成一个分界,强化了区域的划分,也让整个空间富有层次感。
3.考虑到书房的层高问题,我们将书桌设置在书房的北墙,书桌面向北侧的墙体局部拆除,预留了一个窗洞,不但提升空间的通透感而且提升了办公学习的体验感。
⬆️改造前
⬆️改造后
我们把门厅和厨房之间采用一组通高的鞋柜来隐藏冰箱的位置,让整个门厅看起来更加清爽整洁。同时,厨房门洞也做了整体内缩设计,再加上全玻璃推拉门,南面的阳光就可以轻松涌入厨房,让空间更明亮起来
我们专门在对门厅的角落处设置了一个简餐区,方便屋主和家人一起享受美食。而厨房延伸到门厅的地柜不仅可以提供充足的收纳空间,还给餐区增添了一份美感哦!而餐区的独立窗更是为屋主创造了极致舒适的用餐体验。
⬆️改造前
⬆️改造后
客厅顶面的木饰面与卡座材质相呼应,让整个客厅空间更具包裹感。南侧大面的窗户让客厅空间得到更持久的光照。
餐厅的卡座一直延伸至客厅,卡座下方预留了部分开放格设计,这里可以放置屋主平时爱看的书籍。靠窗处搭配了绿色的毛呢沙发,让屋主拥有一个惬意舒适的休闲区。
屋主可以坐在软软的沙发上享受着自己的独处时光。
从餐厅看向客厅,阳光透过白色的布百叶帘给室内带来有趣的光影变化。布百叶赋予阳光独特的气质,让屋主感受家的温柔。
客厅一角
沙发东侧紧靠着卡座,卡座也可以充当沙发的边几使用,下方预留了收纳空间。
⬆️改造前
改造之前的厨房收纳能力差,设备也老旧,真是让人头痛。
现代
洗碗机
玻璃移门
储物隔板
油烟机
瓷砖
橱柜
厨房
嵌入式家电
⬆️改造后
我们使用屋主喜爱的绿色地柜和白色吊柜,打造了一个清新欢快的厨房空间!墙面白色哑光面砖搭配白色石材台面,让整个厨房更加明亮清爽
现代
洗碗机
玻璃移门
储物隔板
置物架
油烟机
烤箱
瓷砖
橱柜
厨房
嵌入式家电
我们采用了U型橱柜布局,让厨房的实用性更加出众。丰富的操作台面和储藏空间,让屋主的日常使用需求得到更好的满足。烹饪、备餐,一切都变得方便又得心应手!
⬆️改造前
⬆️改造后
我们将屋主心爱的鱼缸设置在餐桌北侧,餐桌与鱼缸相连接增加了整个餐厅空间进深
楼梯踏步延伸至餐厅空间作为餐凳使用,从而释放了更多的空间给过道。这样的设计不仅实用,还增添了点点小惊喜哦!
餐厅的卡座与楼梯相结合的设计使得餐厅空间更具趣味性。再也不用担心用餐时索然无味,餐厅丰富了感官享受!
餐厅平时除了用餐之外还可以为屋主提供随时办公的需要。
餐厅的南侧紧靠着客厅,南边的采光能够更好的引入到餐厅,明亮的空间给予屋主更好的体验感。
⬆️改造前
⬆️改造后
卧室用原木色的半高护墙作为床靠背,护墙上方的暗装灯带提升了空间氛围感。
床头采用了白色的悬浮床头柜,轻量化的设计让原本紧凑的空间在视觉上得到放大,床头柜与衣柜相互连接,使得整体空间更加协调。
儿童房墙面采用了局部跳脱的橄榄绿作为整个空间色彩的点缀。
儿童房的设置在靠窗处,这样可以让桌面具备更好的采光条件。
⬆️改造前
⬆️改造后
二楼书房西侧用一排书柜布满整面墙,错落有致的开放层板减轻整面的书柜带来的体量感,层板上的灯光提供书房空间的层次感。
书房靠窗一角
我们在书房北侧墙面上打开一个采光口,更好地让南面的采光可以引入到楼梯间和茶室区域,而且让二楼空间更加开阔。入口的玻璃偏轴门的设计弱化室内外空间的界限。
⬆️改造后
楼梯相比较原来并没有做大的变动,考虑到楼梯原本的位置相对合理,而且原本楼梯的结构是埋入墙体内,钢材的用料也很厚实,不同于现在做的钢构梯的微震现象,这个踏步走上去非常稳,跟现浇踏步体验感很接近。我们保留了原楼梯的主体框架,将表面的钢板翻新上漆,更换了新的实木踏板,栏杆采用外挂的方式进行安装。拆除了之前楼梯间与客厅的隔墙,让整个一楼的采光得到很大的提升。
站在一楼看向楼梯间
楼梯的南北两侧分别是书房和茶室的功能区
我们在楼梯的平台处的墙面放置了一个壁灯,作为小夜灯使用,踏步的南侧用方管既作为装饰隔断,也可以作为楼梯护栏减少不必要的安全隐患。
⬆️改造后
⬆️改造后
我们用半高砌筑实墙取代玻璃扶手作为二楼的平台围栏,实墙增加了茶室空间的围合感和私密性,茶室地面整体做抬高处理,与过道形成更好的区域划分
从茶室可以透过玻璃看到书房空间
茶室的储物柜与地台下方设置了隐藏灯带,为屋主饮茶提供了更好的空间氛围感。
茶室是一个能够让人安静放松的场域。
相关案例推荐
木泽空间设计
设计师相关作品

粤公网安备 44010602000156号