前言:
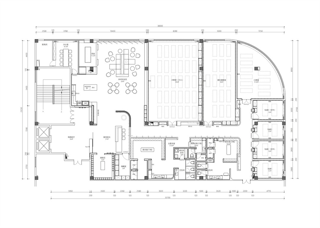
该项目为梵悦瑜伽奥南店,是该品牌在南京的第三家店。从一店的自然侘寂到二店的工业硬朗,三店在场所设计上显然更加趋向于表达一种宏观空间叙事和微观精神之地的叠合。
设计选取“月”的意象作为造物的记忆痕迹,留存在万象洪荒与日常隔阂的设计场景里——这些现象由诗性的想象连接,并带来跨越时空的隔绝感。进入店中,随着脚步深入,所有情绪在松弛的材质语言下变得平缓而悠扬,引导人们从热闹都市抽离,转而进入梵我合一的瑜伽世界。
夜如何其
粝石、枯枝、砖墙、粗陶花瓶,温润复古的暗色调包裹出一个沉静场域,铺陈下东方韵味的禅意基调。以“皓月当空”作为空间演绎和推进的介质,前厅形成自然灵动的主体背景,其后置入半透式片墙形成围合感,粗粝的质感与分明的块垒如同历史风尘下的颓垣,萧索却风骨犹存,仿佛时间长河中的一帧就此定格,联结起不同时空的感官并列和置换。
和光同尘
接待洽谈区设置在场地西侧,不同于前厅的弇敛翳暝,这里宽敞明亮、平和静气。设计打破原始建筑空间的限制,大量引入自然光线,旋转格栅门扇让光影透过缝隙不停游走变换,虚与实、明与暗、隐与现之间,实现“以无形造有形,以有形载无形”的空间艺术解读。
整体色系以大地色为主,营造亲和氛围,在保持个人边界的前提下可以以不同方式产生联系与交流。
阴翳礼赞
西厨及茶室作为接待区的附属空间,放置在了接待区南侧,自然的内退形成两个既独立又统一的“盒子”,穿插的体块不仅丰富了空间层次,也为客人提供更多可供选择的体验形式和功能分区。
“盒子”以间接照明为主导,内部干净的表皮消除一切冗杂装饰,沉伏于薄暗的光线里,承载着微茫天光的反射,沉浸在冥想之中。
东方既白
教室沿窗布置,白天光线穿过市井繁华,通过透明玻璃温和地渗透而入,空间光影互生、变化无穷,在光明与暗淡之中催发自然神性。私教室放置在空间更深处,功能空间集中于场地东侧,两个组团之间形成空间的主要通道。
至此,空间从入口、前厅、过道到教室,整体完成了一场循序无声的心境转变:由广阔到微渺,由外放到向内,由悸动到平和,由晦冥到光明……这个过程犹如从夜至昼的片段推演,也如人们走进这座瑜伽馆,突破身心藩篱找寻真实自我的体验。
- 图文提供:TINTA金邸奖、梵池设计 -
相关案例推荐
TINTA金邸奖
设计师相关作品
【2023TINTA金邸奖-获奖作品】小户型銅獎:小户型的无限可能 / 北京七巧天工装饰设计有限公司-王冰洁设计师
三室 | 46㎡ | 北京北京
【2023TINTA金邸奖-获奖作品】小户型金奖:居家办公 / CREASIME·匠坊-张书源 设计师
一室 | 54㎡ | 江苏南京
【2023TINTA金邸奖-获奖作品】零售类金奖:SKYPEOPLE 冰冻广场 / 泛域设计 Fununit Design
303㎡ | 上海上海
【2023TINTA金邸奖-获奖作品】休憩类銅奖:月伴栖峰民宿 / 独立设计师-毛善武
900㎡ | 浙江衢州
【2023TINTA金邸奖-获奖作品】零售类银奖:梨吧制所 / 十幸制作-设计师团队 赵玗, 蔡昀修, 林宛蓁, 戴绍安
160㎡ | 台湾台湾

粤公网安备 44010602000156号