前言:
本次的设计方案是由思量空间团队从建筑设计,到室内设计,园林设计等一体化全案设计的民宿空间。将位于北京京郊的原址300㎡民房整体拆除后,重新规划设计的建筑空间。
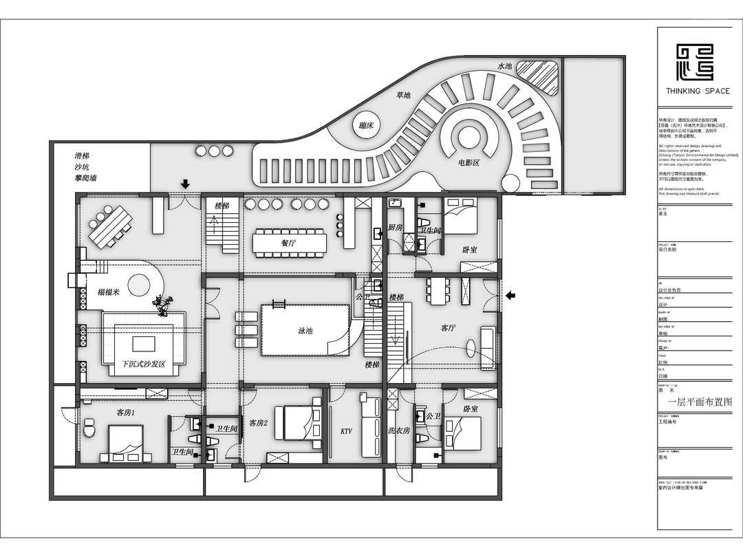
原四合院使用面积300平米,整体一层的围合式院落,原址拆除后,我们设计团队重新规划建筑设计,利用高低落差感,设计围合式渐变斜坡式的屋顶,坡度由北面的高度逐渐降低至南面,最后北面设计出一层+二层loft的客房。总层高既达到了建筑要求,内部也增加了楼层数。使最后建成后,总使用 面积达到了500平米,在原来直接增加200平米使用面积。
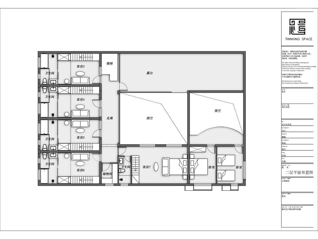
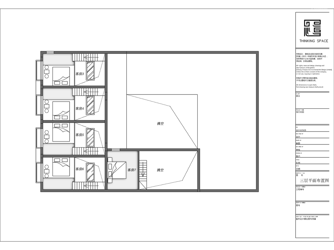
平面户型布局图:北侧是一层休闲空间加二层loft客房的设计。房屋建筑的北侧最高点达8米多高,南侧最低点只有3米高,这样就形成了围合式的破面屋顶的设计。
以北方四合院建筑特色为切入点,设计从南至北由高到低围合式的建筑,使整体建筑成回字形,从而在不同的朝向望向建筑,形成不同的坡面屋顶。
利用高度之差,形成不同的空间,南面一层餐厅加二层loft客房,东侧楼下影音室二楼loft客房,北侧高挑空的套房空间,西侧为单层休闲餐厅空间。一层至二层的顶面落差之处设计成露台户外空间。让建筑因旋转式的坡面屋顶高度形态而有了层次变化之美。
民宿设置了茶室-儿童娱乐空间-下沉式沙发-图书阅读区,将空间合理规划,丰富空间属性。 入口处线性拱门的设计,营造出曲径通幽之美感,辅之榻榻米的设计以及吊灯设计的加持,将点线面三者充分的融合在一起,空间的艺术感,层次感,灵动感大大提升。利用圆弧金属网格围合出亲子娱乐空间,增加空间功能性。
客人进入到民宿后,会发现整个空间分为了左右两侧。一侧是餐厅空间,作为自助餐厅来使用。另一侧是下沉沙发以及儿童玩乐区。
木质下沉式沙发的设计,犹如一个巨大的臂膀,给予工作繁忙背后的人们以温暖的怀抱。墙面挂了100寸的投影幕布,作为影视墙来使用。
利用金属拱形造型设计,作为儿童区的虚拟隔断,规划出儿童区。利用地台作为分界线,让儿童区和休闲茶空间作分隔。
餐厅是自助式的,配置了冰箱开放式厨房等。民宿的客人都可以自助做饭炒菜来使用。两面通透的落地玻璃,使空间通透性非常强。水泥质感的吊灯,简朴自然,与整体空间相融合。
设计的拱形门洞,是金属烤漆材质的,作为儿童区与休闲空间的分隔。拱形元素也增加了空间的趣味性!
地面下挖了60公分,作为下沉围合式沙发区,增加了私密性与安全感。木作的卡座式沙发,制作软垫和靠枕,让舒适性增强,而且造价也是非常节省的。皮质的线条吊灯从顶面垂下来,空间显得很柔和唯美。
白色的纱幔窗帘,空间温柔且浪漫!
客房的设计,质朴的白墙,原木色的肌理,加上灯带的映射,温和亲切感油然而生。复式小二层的设计更是现代年轻人所心驰神往的居家设计,天窗的设计更是别出心裁,既显得空间布局合理,采光方面也更胜一筹,能够彰显出年轻慵懒轻奢风。
极简的颜色与极简的造型,将落地窗视作空间媒介,让室内拥有现代气息,也让室内外的空间衔接更加无缝自然,也更加靠近自然,原始的材质肌理也为休息区增添了几分宁静的艺术美感。
框架床真的很有艺术感。落地式的投影幕布,可以在夜晚的时候播放电影。床头背后挂的是设计师手绘的挂画
在做loft设计的时候,顶面的坡面顶开了天窗,作为采光使用。阳光在午后倾泻而下,空间里采光就非常充足。墙面挂的是设计师亲自手绘的挂画,与沙发的颜色都是非常搭配的。
每个房间一个主题,一幅挂画,突出个性化。
二楼的loft阁楼,直接在地面放了2米的超大床垫,不需要放床架,直接落地床垫。窗外是绿意盎然的景色,在这里睡一晚是非常惬意的。
四周建筑围合式的设计,中间设计泳池休闲区,露台的透明旋转滑梯从天空倾斜而下,满足民宿休闲娱乐空间需求,即与建筑设计融为一体。夜空下的灯光明媚,万家灯火中人间烟火萦绕于山野之中。
相关案例推荐
思量空间
设计师相关作品

粤公网安备 44010602000156号