前言:
极简原木搭配白色,简直太治愈解压了
📃
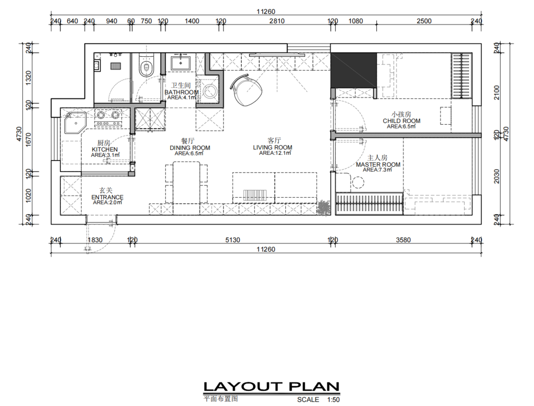
本次分享了两个案例的效果图,是老破小改造
不到60㎡的家,也能实现空间和收纳自由
🌸
整体极简白+原木设计
空间变得通透又自然宁静
🌸
家的设计还注重色彩的搭配
明亮的色彩总能让人感到愉悦和舒适
采用白色、浅黄色、淡绿色等浅色调
从而营造出明亮、宽敞、舒适的氛围
🌱
一些现代设计还会采用具有反射性质的材质
如镜面、金属等,增强整个空间的明亮感
相关案例推荐
网友评论
启呈设计
设计师相关作品

粤公网安备 44010602000156号