前言:
适当放慢生活节奏
散散心赏赏月
细细品尝生活的味道
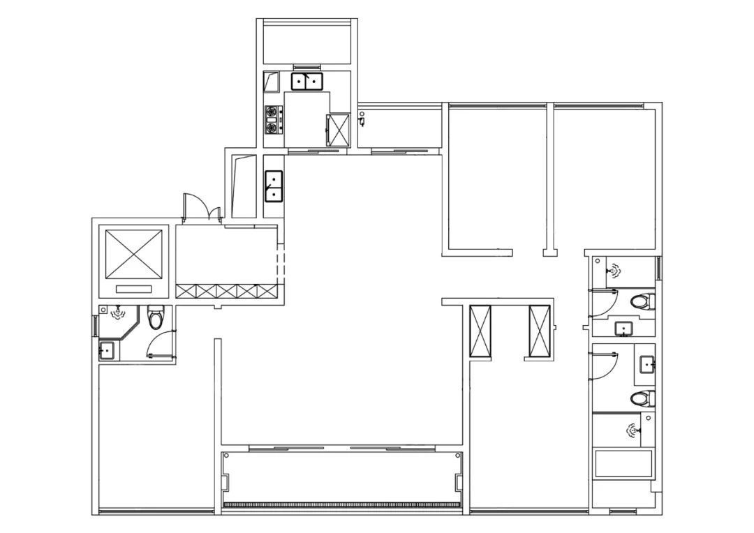
户型图
原始结构图——
原始户型缺点:
Original house type disadvantage
1、原有的电视背景墙和卧室背景墙较为老气不高级
2、厨房的操作台面较少
原始结构改造图——
户型改动:
Family changes
1、在餐厅处设置岛台增加餐厅的操作台面,并且将岛台与西厨结合
2、在现有的硬装设计的基础上做出调整和修改,将现代轻奢的调性更加深入的变现出来
客厅
从入户门厅进入后映入眼帘的即是明亮的客厅,客厅空间将原先的电视背景墙拆除后用石材做出造型并且分割,在原木色装饰面的衬托下,赋予了电视背景墙沉稳的仪式感;吊顶的金属元素更加提升了空间的时尚格调。
餐厅
餐厅延续了客厅的整体色调,在餐桌旁设置了岛台,大大提升了餐厨的操作台面,并且岛台也有储物功能,解决了收纳的问题;通过材质上的奢华,不着痕迹地透露着精致和生活的追求。
卧室
卧室的暖棕背景墙给空间带来恰到好处的沉静感,注重美和仪式感,有造型的灯具、舒适柔软的床品,使空间更加丰富了生活感情;吊顶的金属元素与灯具的金边恰好相互呼应,在整个空间里调和出一种大气优雅的氛围
相关案例推荐
网友评论
素朴设计
设计师相关作品

粤公网安备 44010602000156号