前言:
小舍-设计说明
业主要求:
房屋地处徐汇学区房,年青夫妇为了孩子的读书,在老破小的小区置业。业主夫妇从事投资工作,对艺术和生活有自己的理解和认知。夫妇希望在生活中能将自己对艺术的理解和喜好在室内设计和室内陈设中得意提现。需要简洁的空间但不能失去功能和美观。
现场环境条件:
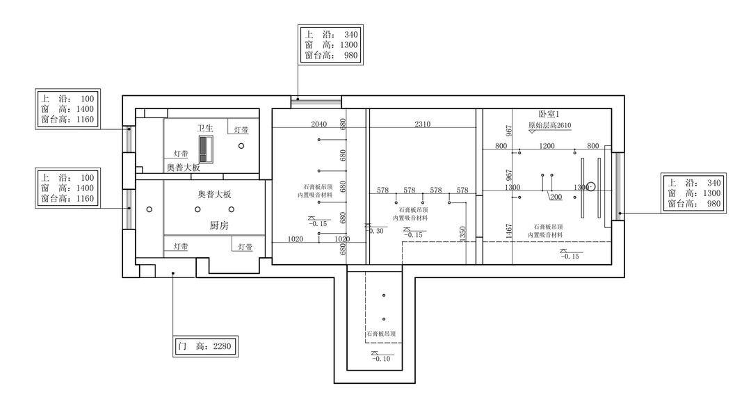
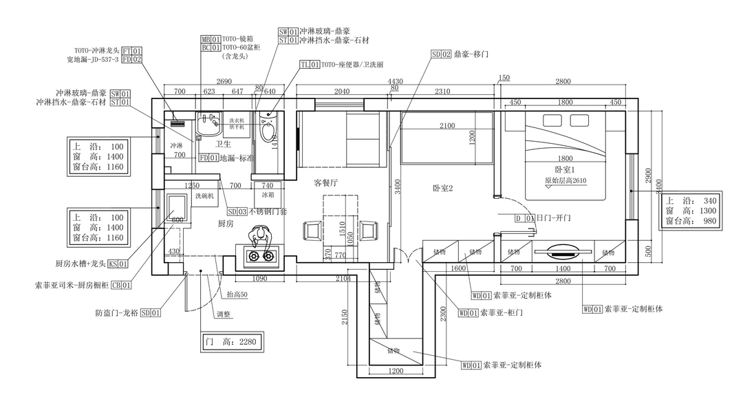
吉宅地处徐汇地区,是老破小小区。房屋40平方,厨房+卫生的空间很小。一个过道厅和卧室。早期木梁结构房屋。隔音保温比较差。
设计方案立意:
业主夫妇从事投资作,对艺术有这者自己的理解和认知。夫妇希望在生活中能将自己对艺术的理解和喜好在室内设计和室内陈设中得意提现。需要简洁的空间但不能失去功能和美观。
整个空间需要入住三代四人,孩子+夫妻+外婆。整个空间比较小,需要重新规划空间设计。厨房和卫生根据业主的需要重新设计和调整。卫生需要做到三分离,卫生+冲淋+台盆(洗衣机+烘干机)。孩子需要打架子鼓训练,对建筑本身的隔音需要重新设计。孩子和外婆的睡觉需要动静结合。
整套设计中灯光设计尤为重要,灯光设计采用了非主光源照明设计,采用间接照明设计。光源采用定制光源,保证色温和明度无明显变化。
整个空间的规划,符合业主自身需求和喜好,通过设计来满足业主需求。
主材选择理由:
材料:(橱柜-衣柜:索菲亚)、(室内门:日门)、(日本进口地板)、(费罗娜瓷砖)、(蔚合乳胶漆-希腊进口)、(龙头-五金:TOTO)、(TOTO洁具)、(灯具:定制)等
技术层面的特殊考虑和做法:
灯光设计:取消主灯设计,以间接光源为主,达到柔和照明需求。
多材料的收边施工。预埋瓷砖收边金属阳角。
业主评价:
达到业主的预设需求,业主很满意。
相关案例推荐
莫依其

粤公网安备 44010602000156号