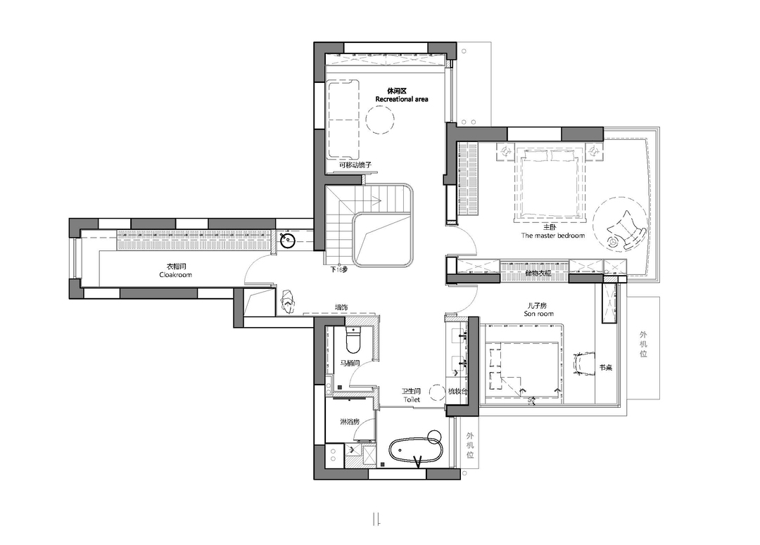
前言: 我们相信,空间会影响家庭的关系。一家五口人的生活里,总有欢乐相聚的时候,家庭休闲活动空间必不可少。但三代人生活在一起,希望分开睡的奶奶和爷爷,正在青春期的儿子,需要在家办公的夫妻……难免会有摩擦。所以,除了相聚,家里有自己独立的空间,也十分重要。在这个206m²的案子里,要让三代人都在享受相聚之后安然独处,要让有不同爱好的六个人都能自得其乐,总是需要考虑得再多些。私宅设计,不光是设计空间结构,更多的是设计家人间的生活方式和相互关系。
相关案例推荐
史鹏巍
设计师相关作品

粤公网安备 44010602000156号