前言:
业主是个从事IT行业的90后小姑娘,养育了一只焦虑、社恐的肥猫和一只稳重、社牛的老狗。希望通过设计改造,让新家成为一个简单、快乐、轻松、治愈的生活空间。这次我们的设计便围绕“猫与狗的生活哲学”展开。
“躺平”、“修复”、“疗愈”和“自由”,这些关于生活中很常见的哲理,值得我们每个人去细细品味与耐心揣摩。希望我们的设计可以诠释出这些生活中的细节与需求,让业主可以感受到生活的点点滴滴,用一种全新的方式看待生活!
陪伴是最长情的告白,我们尝试为业主找到一个好的倾听者,鼓励业主谈论自己的感受,让家成为一个包容和喘息的空间。
在家中设计了很多的镜子,希望业主在家休息的时间里能更多的看到自己,与自己对视,与自己对话,去调整自己的状态。
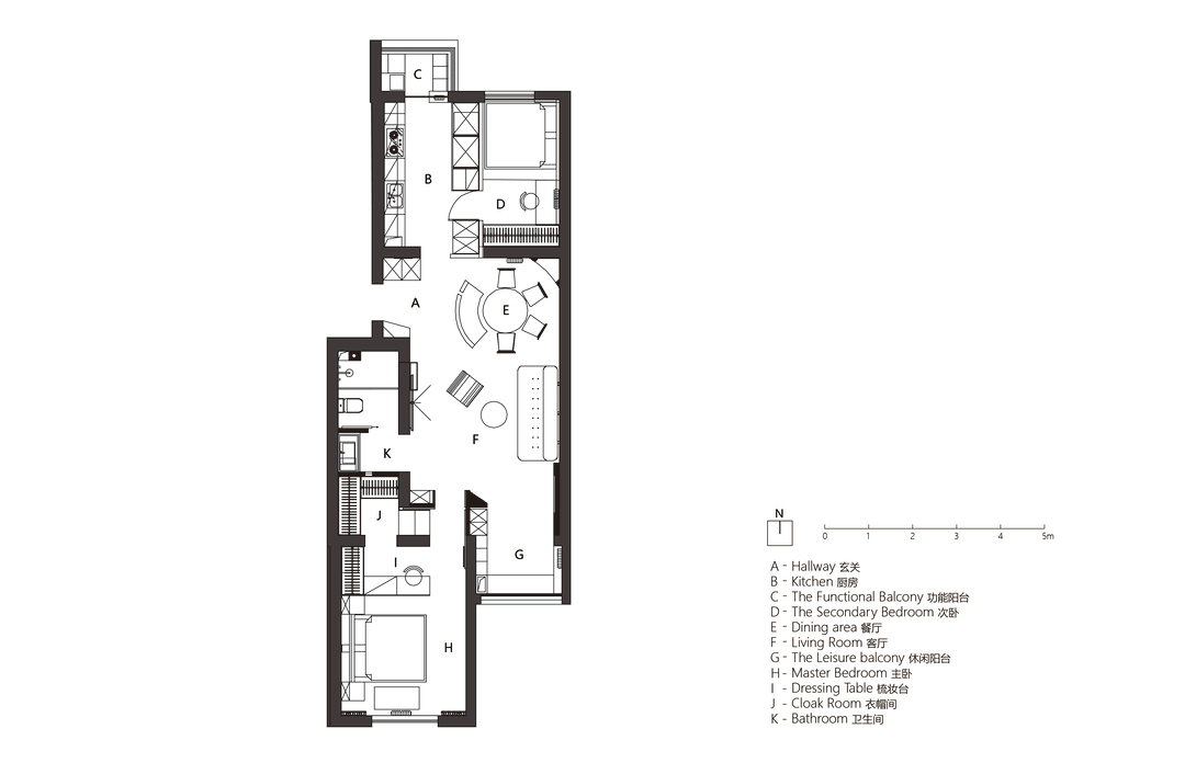
我们设计了一个高靠背卡座,是入户的屏风,同时在餐厅位置营造了一个半遮挡、有隐私的空间。
结合建筑主体红砖材质的特性,我们建议业主保留一些红砖表面的肌理,搭配墙面和卡座造型的破碎感,营造出一个人为的不完美感空间,让其以某种方式未完成,具有微妙的不完整特征。
餐桌餐椅选择了非常俏皮的拟人造型,围在桌前,让空间变得热闹起来,它们是业主回到家很好的倾诉对象。
因为狗狗会去吃猫猫的实物,所以业主要求有一个较高的猫猫用餐区,于是我们把餐厅这个角落利用起来设计了这个这个悬浮龛。
厨房墙面选用了模仿红砖截面样式的瓷砖,与绿色的橱柜形成对比色,搭配木纹的柜体,让整个厨房的氛围自然亲近。上班已经凑活过那么多顿外卖了,多花点时间在享受美食吧,不要仅为了果腹而草草了事,错失了体验生活的美好。
厨房对面是业主在家办公的书房,偶尔中午打个盹,也是客卧。
设计上,利用材料、颜色的延伸,书房和厨房被规划为业主白天休息“充电”的空间。置身于绿色调的空间环境可以让人放松,缓解疲劳。
“好累啊,我不想动了。”榻榻米的设计满足了业主的“丧”,几秒钟完成拽出被子就能睡,随便一塞就整洁,原来“躺平”可以如此简单。
我们在空间隔墙上开了大量的窗,把衣帽间,卫生间等相对自闭的暗空间打通,有光可以互通,使业主能够长时间独处在某一封闭空间的状态下不会感到不适。
趣味横生的洗手池。金属线条搭配拱形镜柜,让这个空间出其不意,难以形容的蓝色木纹推拉门,和业主独特的个性相符。
业主希望宠物可以自由进入自己的卧室,我们在主卧门上设计了一个宠物门帘,当业主忙完一天工作,摊到在床上,只要呼唤一声,她的爱宠就会立马到位。
床头靠背是定制的海绵翻毛皮,满足业主晚上靠在床头工作的需求。
相关案例推荐
什作设计 | TEN DESIGN
设计师相关作品

粤公网安备 44010602000156号