前言:
本案户型为叠墅下叠,目前常住人口是业主夫妇,女儿在国外读书,偶尔会小住。业主一家对空间有着明确的喜好,追求简约舒适的生活方式,因此我们将风格定位为现代简约。本次改造的重点是解决楼梯和电梯的合理舒适性,以及地下室的采光通风的问题。
构筑业主审美和对美好生活状态的一切构思,成为我们设计之初达成的共识。同时结合我们的设计理念:让空间保持一些简单纯粹的留白,创造一个宁静的氛围,让居住者能够在这个空间中聆听内心深处的声音。整体设计我们比较注重细节,会尽量选择一些具有温暖感和舒适感的材质和家具,以营造一个简约、舒适的居住环境。
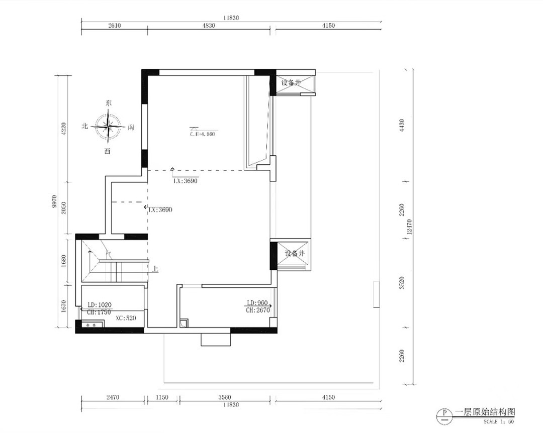
改造前:
1.地下室空间是没有直接采光的,原来室内的采光井又在客厅中间,会占用空间
2.原来楼梯又窄又陡,原来电梯放置位置比较浪费空间,会出现很多狭小空间,不好利用
改造后:
1.直接把采光井的位置靠墙,既达到采光需求又增大客厅视觉效果
2.现在改用观光电梯,楼梯围绕电梯,呈U字型围绕,一方面延伸了空间的视觉感,另一方面很好的解决了原有楼梯又窄又陡,和电梯浪费空间的问题
整体空间大面积留白,摒弃一些复杂的元素,以简洁的点线面为主。通过增加一些弧形元素的设计,让室内添加了些“圆润”的美,而沙发背景墙原来是有梁位,现在利用梁位做了线面的造型,丰富空间的层次感。
整个空间硬装没有过多的色彩,中空背景墙黑白纹的冷翡翠,让整个简洁的空间丰富起来,更增加了艺术张力。在陈设中增加一些装饰艺术品,点缀其中,让大白墙也不显单调。
中空天花是平梁4520MM,这里做弧形天花转上去 200MM,衔接夹层天花更自然。
青花瓷摆件,可以起到装饰的效果,带来雅致的意境,让空间更富有质感。
以灰白为基调,在利落的线条下,现代极简风孕育出最纯粹、最干净、最惬意的生活方式。大门对景以一副装饰画和配饰来搭配整个空间,以带动整个空间的整体氛围感。
在灰色地面砖的空间内,背景用干净素然的雅白提亮空间,黑色百页和开放格从穿插其中,让空间显得更加简雅大气。餐厅的弧形灯搭配客厅的圆形灯及沙发旁的落地灯,增添了空间柔和感。
主卧采用了现代无主灯设计,辅以线条灯带,让整个空间沉静慵懒。为了贴合整体设计,采用大面积的白色加上木色以及高级灰作搭配,再增添一些暖色调的木色,让整个空间一下子就放松下来。
主卧采用悬空书桌+悬空床头柜一体设计延伸,视觉上更加轻盈,使用起来也更加开阔,同时提高空间利用率。
闲暇时,女主人也会在此看看书,窗外,微风拂过,树叶轻声摇曳,为她的阅读时光增添了一份恬静的伴奏,给予她内心暂时的宁静和超凡的意境体验。
相关案例推荐
博睿设计
设计师相关作品

粤公网安备 44010602000156号