前言:
“道生一 ,一生二 ,二生三,三生万物 ”
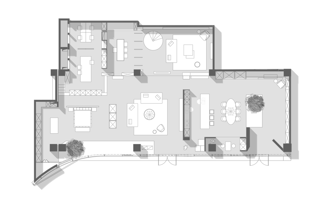
《壹》空间的流线
展厅分三块区分布局考虑:
“道生一”:《道一园》
书房区域顶高的装饰书柜背景下,与玻璃内自然装置的呼应,自然趣味的引进,植物空间的穿插连贯,顶上太阳光的灯光设计,即增加了植物的光照又拉伸了空间了高度,又让区域与区域之间起到分割,同样又是追寻的主题,道的根源就是自然与生活的统一。
餐厅区域的厨房和大岛台以开放式的设计为中心点,按照生活方式去进行思考设计,3.6米的岛台开放厨房,与奢石餐桌的互动,餐厅大岛台的空间布局旨在为您提供一个舒适、宜人和互动的用餐体验。无论是与家人共进晚餐还是与朋友聚会,这里都会给您留下美好的回忆,品尝精心准备的美食,并享受愉悦的用餐时光,为您提供了一种交流互动的用餐体验。
另外餐厅大岛台还设有一个舒适的休息区域,供您在用餐之余放松身心。休息区域配有禅味的茶桌,围炉煮茶,不单单是自行的心灵修行,更是强调与他人的分享与交流,让您可以在用餐后与家人朋友一起聊天,享受品一杯茶的生活乐趣。
”一生二“:《二元生活》
年轻时尚法式区域:整个区域给客户的体验是小资情调的客厅,不规则个性的主沙发,搭配跳跃酒红色的担任椅子相得益彰,后面弧形楼梯的搭配既起到样品展示,向上的踏步,以及顶上圆形的对应设计,和餐厅区域的调性不同,但是又是同一体系,点缀自然味的海岛树分割出来一生二的多维度空间区域,墙壁弧度的向上牵引力,同样为外空间的融入做铺垫。
地台上下错位的空间穿透和一地做垫,台阶下口灯带的连贯,更增减了餐厅岛台区域和客厅区域以及茶室区域的连贯,又增加空间错位的穿透感。
“二生三”:三度空间
大客厅的大视角与卧室衣帽间的互通,设计宗旨在考究是套房的概念设计,客厅与卧室中间用一个玻璃开放衣帽柜做隔断,顶上用一根无线的灯带贯穿,两边即互通光影视角穿透,又能相对独立,保证每个区域的完整性,衣帽间与卧室空间来说,两根毛胚原生态柱子和衣帽岛台,即分割了区域,又是同一个区域,衣帽间顶面空间高度做了一个拉伸,增加了空间上升,又能显得我们衣帽间磅礴大气。
卧室边上休闲橱窗区域,低垂的小叶植物,和弧度柔合的浴缸左右搭配,一高一低,空间错层视角延伸,把室外的视角同样贯穿辐射室内,床后面的吊挂式墙壁和侧面的楼梯样品灯光区,踏步和平板的错位连贯,也同样让空间有更多的穿透延伸性。
“三生万
相关案例推荐
徐丽

粤公网安备 44010602000156号